Eladó Ház- házrész
Hirdetéskód: 9217134
OTP Ingatlanpont Siófok
Felújításhoz személyi kölcsönt keres? Kalkuláljon itt! →
Ez a hirdetés megfelelhet a FIX 3%-os programnak.
Tudj meg többet a részletekről itt.
139.00 m2
ALAPTERÜLET4
SZOBASZÁMnincs megadva
ÉPÍTÉSGáz (cirkó)
FŰTÉS- CSOK igénybe vehető nem
- Tetőtér beépíthető nem
- Építés éve 2025
- Fűtés Gáz (cirkó)
- Klíma nem
- Szigetelt nem
A+++
A++
A+
A
B
C
D
E
F
G
H
I
Az ingatlan leírása
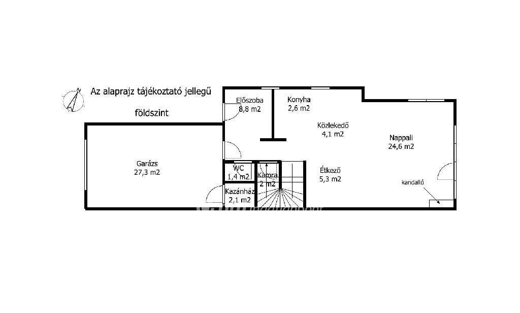
Siófok kedvelt Foki-hegy városrészében kínálom megvételre ezt az új építésű, igényes kivitelezésű ikerházfelet, amely a Balaton déli partjának egyik dinamikusan fejlődő környezetében helyezkedik el, 432 nm-es, saját használatú telekrészen, befejezett állapotban. Az ingatlan földszintjén tágas, amerikai konyhás nappali, emellett háztartási helyiség és éléskamra szolgálja a mindennapi kényelmet, míg az emeleti szinten három különálló hálószoba és három, magas műszaki tartalommal megvalósított fürdőszoba került kialakításra, továbbá lehetőség nyílik egy különálló, teljes értékű lakrész kialakítására is, akár kétgenerációs felhasználás céljából.
Az épület megtervezése során a kivitelező nagy hangsúlyt fektetett a minőségi alapanyagokra, amelyet a duplasoros SILKA hangszigetelő falazat, a porotherm 30-as külső falazat 15 cm hőszigeteléssel, valamint a háromrétegű üvegezésű nyílászárók is bizonyítanak. Az otthon komfortját a gázkazános padlófűtés, a négy darab hőszivattyús hűtő-fűtő klíma, a nappaliban található exkluzív, fatüzelésű kandalló, továbbá az elektromos redőnyökkel felszerelt nyílászárók, illetve az elektromos működtetésű garázs- és kertkapuk biztosítják, miközben a földszinti garázs mellett külön második gépkocsi-beállási lehetőség is rendelkezésre áll.
A három terasz - a Balatonra néző nyugati emeleti terasz, a hátsó emeleti pihenőrész, valamint a földszinti kertkapcsolatos terasz - kivételes lehetőséget nyújt a pihenésre és a balatoni hangulat mindennapos megélésére. Az ingatlan rendelkezik használatbavételi engedéllyel, tehermentes, azonnal birtokba vehető, így akár állandó lakhatásra, akár nyaralóként is ideális választás lehet, ráadásul az ikerház másik fele szintén elérhető azon érdeklődők számára, akik nagyobb családi vagy befektetési célban gondolkodnak. A közelben általános iskola és hipermarket is megtalálható, ami tovább növeli a lokáció értékét. Az OTP Bank stabil hátterének köszönhetően kollégáink díjmentes, személyre szabott hitel- és támogatási tanácsadással és ügyintézéssel állnak rendelkezésére.
Megtekintés egyeztetéséhez várom megtisztelő hívását.
Az energetikai tanúsítvány készítése folyamatban van, amint rendelkezésre áll, úgy azzal a hirdetés frissítésre kerül.
Az épület megtervezése során a kivitelező nagy hangsúlyt fektetett a minőségi alapanyagokra, amelyet a duplasoros SILKA hangszigetelő falazat, a porotherm 30-as külső falazat 15 cm hőszigeteléssel, valamint a háromrétegű üvegezésű nyílászárók is bizonyítanak. Az otthon komfortját a gázkazános padlófűtés, a négy darab hőszivattyús hűtő-fűtő klíma, a nappaliban található exkluzív, fatüzelésű kandalló, továbbá az elektromos redőnyökkel felszerelt nyílászárók, illetve az elektromos működtetésű garázs- és kertkapuk biztosítják, miközben a földszinti garázs mellett külön második gépkocsi-beállási lehetőség is rendelkezésre áll.
A három terasz - a Balatonra néző nyugati emeleti terasz, a hátsó emeleti pihenőrész, valamint a földszinti kertkapcsolatos terasz - kivételes lehetőséget nyújt a pihenésre és a balatoni hangulat mindennapos megélésére. Az ingatlan rendelkezik használatbavételi engedéllyel, tehermentes, azonnal birtokba vehető, így akár állandó lakhatásra, akár nyaralóként is ideális választás lehet, ráadásul az ikerház másik fele szintén elérhető azon érdeklődők számára, akik nagyobb családi vagy befektetési célban gondolkodnak. A közelben általános iskola és hipermarket is megtalálható, ami tovább növeli a lokáció értékét. Az OTP Bank stabil hátterének köszönhetően kollégáink díjmentes, személyre szabott hitel- és támogatási tanácsadással és ügyintézéssel állnak rendelkezésére.
Megtekintés egyeztetéséhez várom megtisztelő hívását.
Az energetikai tanúsítvány készítése folyamatban van, amint rendelkezésre áll, úgy azzal a hirdetés frissítésre kerül.