Eladó Ház- házrész
Hirdetéskód: 9190255
Pécs Rákóczi út 19 - OTP Ingatlanpont Iroda
Ez a hirdetés megfelelhet a FIX 3%-os programnak.
Tudj meg többet a részletekről itt.
160 m2
ALAPTERÜLET3
SZOBASZÁMnincs megadva
ÉPÍTÉSnincs megadva
FŰTÉS- CSOK igénybe vehető nem
- Tetőtér beépíthető nem
- Építés éve 1980
- Klíma nem
- Szigetelt nem
A+++
A++
A+
A
B
C
D
E
F
G
H
I
Az ingatlan leírása
Eladó Kétszintes Ház Siklós, Családi Házas Övezetében!
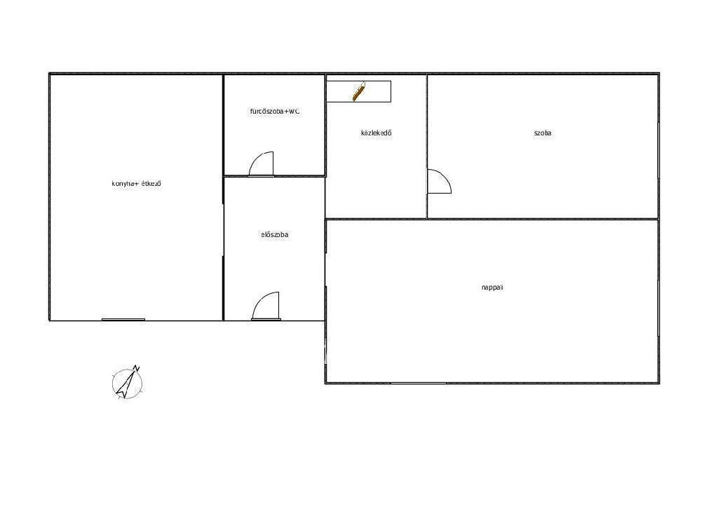
A város egyik csendes részén ajánljuk figyelmébe ezt a 70-es években épült, kétszintes, 80 m2 alapterületű, összesen 160 m2-es lakóterű, önálló családi házat.
Az alsó szint teljesen felújított: nappali + 1 hálószoba, tágas konyha étkezővel, fürdőszoba WC-vel és előtér található, ahol a víz- és villanyvezetékek, gépészet teljes cseréje megtörtént.
A felső szint 80 négyzetméter, ahol minden nyílászáró korszerűsítve, a válaszfalak és betonozás előkészítve, így az új tulajdonos saját elképzelése szerint alakíthatja ki a fürdőszobát, WC-t, konyhát, burkolatokat.
Az ingatlan új tetővel és teljes körű szigeteléssel rendelkezik. Fedett, három gépkocsi számára alkalmas beálló, a 619 négyzetméteres, teljesen sík telken. Kiválóan alkalmas két generáció együttélésére!
A közelben minden megtalálható: iskola, óvoda, boltok, buszmegálló.
További információért forduljon hozzám bizalommal!
Referenciaszám: M309056
A város egyik csendes részén ajánljuk figyelmébe ezt a 70-es években épült, kétszintes, 80 m2 alapterületű, összesen 160 m2-es lakóterű, önálló családi házat.
Az alsó szint teljesen felújított: nappali + 1 hálószoba, tágas konyha étkezővel, fürdőszoba WC-vel és előtér található, ahol a víz- és villanyvezetékek, gépészet teljes cseréje megtörtént.
A felső szint 80 négyzetméter, ahol minden nyílászáró korszerűsítve, a válaszfalak és betonozás előkészítve, így az új tulajdonos saját elképzelése szerint alakíthatja ki a fürdőszobát, WC-t, konyhát, burkolatokat.
Az ingatlan új tetővel és teljes körű szigeteléssel rendelkezik. Fedett, három gépkocsi számára alkalmas beálló, a 619 négyzetméteres, teljesen sík telken. Kiválóan alkalmas két generáció együttélésére!
A közelben minden megtalálható: iskola, óvoda, boltok, buszmegálló.
További információért forduljon hozzám bizalommal!
Referenciaszám: M309056