Eladó Ház- házrész
Hirdetéskód: 9229183

Great Home - Pécs

Felújításhoz személyi kölcsönt keres? Kalkuláljon itt! →
FIX 3% Program

Ez a hirdetés megfelelhet a FIX 3%-os programnak.
Tudj meg többet a részletekről itt.

120.00 m2
ALAPTERÜLET
4
SZOBASZÁM
nincs megadva
ÉPÍTÉS
Egyéb fűtés
FŰTÉS
  • CSOK igénybe vehető nem
  • Tetőtér beépíthető nem
  • Fűtés Egyéb fűtés
  • Klíma nem
  • Szigetelt nem
Energetikai besorolás: Nincs meghatározva
A+++
A++
A+
A
B
C
D
E
F
G
H
I

Az MBH Bank személyi kölcsön ajánlata

Fizetett hirdetés
1 millió Ft
6 évre
20 585 Ft/hó
THM: 14.5%
Részletek →
2 millió Ft
6 évre
41 169 Ft/hó
THM: 14.5%
Részletek →
3 millió Ft
6 évre
61 754 Ft/hó
THM: 14.5%
Részletek →

A tájékoztatás nem teljes körű és nem minősül ajánlattételnek.

Az ingatlan leírása

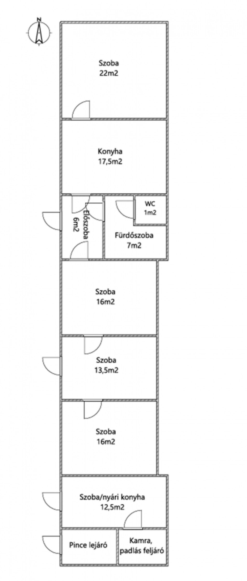
Eladásra kínálok Siklóson, a Kanizsai Dorottya utcában, egy felújítandó, 120m2 alapterületű, 4 szobás családi házat, garázzsal az udvarban.

A családi házról:
Az ingatlan vegyes falazatú, stabil szerkezetű ház. Szobái alapvetően egybe nyílóak, de kívülről, kulcsos ajtón keresztül is megközelíthetőek. A ház első fele lakható, konyha-étkező, fürdőszoba és két szobája azonnal költözhető. A ház hátsó fele felújításra szorul. Ajánlott: festés, hőszigetelés, aljzatkiegyenlítés, új padló. Rengeteg lehetőség, akár nyári konyha kialakítása is alkalmas. Az ingatlanhoz tartozik pince és garázs is. A hátsó udvarban pedig egy kisebb melléképület kapott helyet.

Siklós kedvelt részén, csendes környéken, mégis közel a központhoz található. Boltok, parkok, autóbusz állomás 10 perc sétára az ingatlantól.

Különösen ajánlom nagy családosoknak, fiatal pároknak, nagyobb társaságoknak.

Ha felkeltette érdeklődését, keressen bizalommal!

Térkép

Ingatlan adásvétel ügyvédi díja
184 050 Ft
a hirdetésben szereplő ár alapján
  • A vételár 0,45%-a
  • Szerződéscsomag teljeskörű képviselettel
  • Ingyenes tulajdoni lap ellenőrzés
  • Az ÁFA-t már tartalmazza
Érdekel az ajánlat →
A tájékoztatás nem teljes körű és nem minősül ajánlattételnek. Minimum díj: 150 000 Ft, maximum díj: 600 000 Ft. A díj kizárólag lakóingatlan adásvételére vonatkozik.

A hirdető elérhetősége

Great Home - Pécs

Ferencz Gyula
+36 30 429