Eladó Ház- házrész
Hirdetéskód: 9181218

Velence Tópart utca 47 - OTP Ingatlanpont Iroda

470 m2
ALAPTERÜLET
4
SZOBASZÁM
nincs megadva
ÉPÍTÉS
nincs megadva
FŰTÉS
  • CSOK igénybe vehető nem
  • Tetőtér beépíthető nem
  • Építés éve 2024
  • Klíma nem
  • Szigetelt nem
Energetikai besorolás: Nincs meghatározva
A+++
A++
A+
A
B
C
D
E
F
G
H
I

Az ingatlan leírása

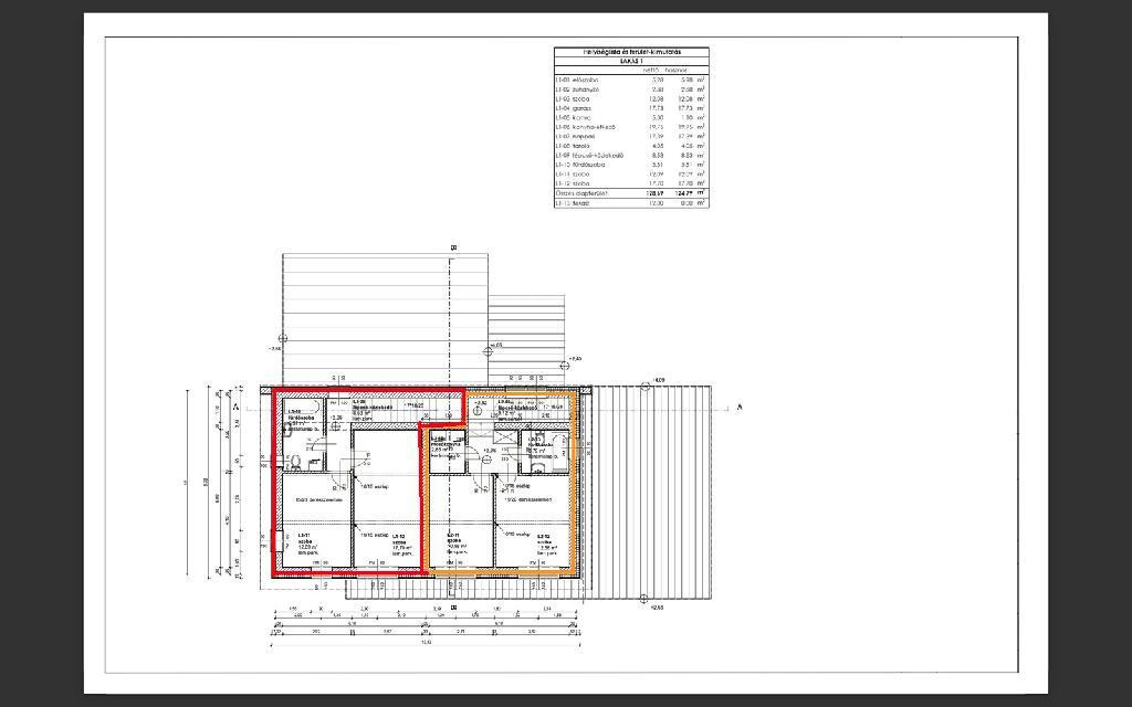
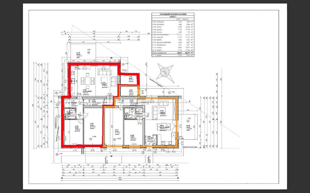
Fejér megye, Seregélyes 107 nm-es új építésű ikerház 1-es lakása eladó. Az ingatlan kulcsrakész állapotban 2025. október végén kerül átadásra. A belső kétszintes 107 nm hasznos alapterületű ingatlanhoz 470nm-es saját kert, 17,73 nm-es garázs, ezenfelül két autó számára kocsibeálló, 4 nm-es tároló és 12 nm-es terasz tartozik. A lakóegységek a garázsnál csatlakoznak. A meghirdetett ingatlan az alaprajzon a pirossal jelölt. A tégla (B30) építésű, szigetelt ingatlanban tágas amerikai konyhás nappali, 3 szoba, 2 fürdőszoba és kamra található. Beszerelésre került az új és modern konyhabútor és az előszoba bútor is. Az ikerház 15 cm-es külső, a födém 25 cm-es szigetelést kapott. A külső nyílászárók 3 rétegű műanyagok elektromos redőnnyel és szúnyoghálóval felszereltek. A házban még minden belső falszín választható. Fűtése környezetbarát,energiatakarékos hőszivattyús rendszer, padlófűtéses hőleadással, valamint minden hálószobába és a nappaliba hűtő fűtő klíma kerül. A vételár tartalmazza a külső-belső vakolást, külső-belső ablakpárkányokat, belső fehér készre festést, villany alapszerelést, padlófűtést, gépészeti alapszereléseket, az elektromos kaput, kerítést, a riasztó és a kamera rendszert, konyhabútort, előszobabútort, belső dekorfóliás ajtókat tokkal, kilinccsel, kapcsolók és dugaljakat, burkolást, szanitereket, alumínium redőnyöket,térkövezést, tereprendezést, parkosítást és a füvesítést is. A meghirdetett ingatlan az alaprajzon a pirossal jelölt.Jól átgondolt, élhető terekkel megálmodott, a legújabb rendszerek felhasználásával készülő ingatlan megvásárlásával egyszerre teremthet egy igényes, stílusos és barátságos otthont. Teljes körű ügyintézésben segítjük ügyfeleinket díjtalanul: Falusi CSOK, CSOK igénylése, kedvezményes hitel mobil bankári szolgáltatással, adásvétel teljes lebonyolításával. Bővebb információkért, kérem keressen bizalommal, akár hétvégén is.

94900000 Ft

Térkép

A hirdető elérhetősége

Velence Tópart utca 47 - OTP Ingatlanpont Iroda

Lepsényi Kornél
+36 70 884