Eladó Ház- házrész
Hirdetéskód: 9194718
Székesfehérvár és Velencei-tó környéki Franchise iroda
Felújításhoz személyi kölcsönt keres? Kalkuláljon itt! →
Ez a hirdetés megfelelhet a FIX 3%-os programnak.
Tudj meg többet a részletekről itt.
200.00 m2
ALAPTERÜLET5
SZOBASZÁMnincs megadva
ÉPÍTÉSEgyéb fűtés
FŰTÉS- CSOK igénybe vehető nem
- Tetőtér beépíthető nem
- Építés éve 2014
- Fűtés Egyéb fűtés
- Klíma nem
- Szigetelt nem
A+++
A++
A+
A
B
C
D
E
F
G
H
I
Az ingatlan leírása
Seregélyesen eladó egy nappali 4 szobás, nagyon jó állapotú családi ház, HŐSZIVATTYÚS FŰTÉSSEL, dupla garázzsal.
Egyedülállóan energiahatékony megoldás!
Havi rezsi (víz, villany gáz) CSAK 15 000,-Ft/hó.
A szomszédos telek is megvásárolható (8M Ft), így akár 2069 nm-es telekkel is megvásárolható az ingatlan!
A házat világos tágas terek jellemzik.
A ház 2014-ben épült Porotherm 38-as téglából 10 cm-es szigeteléssel, Baramac cserép fedéssel.
Az építkezés fotókkal dokumentálták, folyamatos felügyelet alatt készült gondos kivitelezéssel!
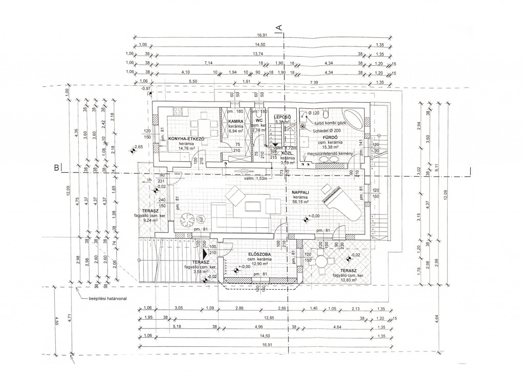
Az első szinten található a nagy nappali étkező konyha kamrával egy hálószoba és egy fürdőszoba.
A nappalihoz kapcsolódik egy hangulatos nagyméretű fedett terasz is.
Az emeleten pedig 4 szoba és egy fürdőszoba van.
A pice szinten kapott helyet a dupla garázs, illetve további tároló rész ahol akár műhely vagy iroda is kialakítható
Ez az ingatlan minden kényelmével, ideális otthon lehet nagyobb családoknak, de vállalkozásnak is kiváló választás.
A mellette lévő telek is megvásárolható opcionális jelleggel 8 M Ft-ért.(1054 m2)
Az ingatlan jellemzői:
- elektromos kapu és garázskapu
- napelem 10,2 KW-os (szaldós elszámolás 2032-ig! az inverter 10 KW-os
-az éves villanyszámla 98 e Ft
- a fűtést egy hőszivattyú biztosítja elektromos rásegítéssel, radiátoros hőleadással (-15 C-ig fűt)
-hűtő fűtő klíma
-gázkazán + vegyestüzelésű kazán
-fúrt kút
-parkosított környezet
Egyedülállóan energiahatékony megoldás!
Havi rezsi (víz, villany gáz) CSAK 15 000,-Ft/hó.
A szomszédos telek is megvásárolható (8M Ft), így akár 2069 nm-es telekkel is megvásárolható az ingatlan!
A házat világos tágas terek jellemzik.
A ház 2014-ben épült Porotherm 38-as téglából 10 cm-es szigeteléssel, Baramac cserép fedéssel.
Az építkezés fotókkal dokumentálták, folyamatos felügyelet alatt készült gondos kivitelezéssel!
Az első szinten található a nagy nappali étkező konyha kamrával egy hálószoba és egy fürdőszoba.
A nappalihoz kapcsolódik egy hangulatos nagyméretű fedett terasz is.
Az emeleten pedig 4 szoba és egy fürdőszoba van.
A pice szinten kapott helyet a dupla garázs, illetve további tároló rész ahol akár műhely vagy iroda is kialakítható
Ez az ingatlan minden kényelmével, ideális otthon lehet nagyobb családoknak, de vállalkozásnak is kiváló választás.
A mellette lévő telek is megvásárolható opcionális jelleggel 8 M Ft-ért.(1054 m2)
Az ingatlan jellemzői:
- elektromos kapu és garázskapu
- napelem 10,2 KW-os (szaldós elszámolás 2032-ig! az inverter 10 KW-os
-az éves villanyszámla 98 e Ft
- a fűtést egy hőszivattyú biztosítja elektromos rásegítéssel, radiátoros hőleadással (-15 C-ig fűt)
-hűtő fűtő klíma
-gázkazán + vegyestüzelésű kazán
-fúrt kút
-parkosított környezet