Eladó Ház- házrész
Hirdetéskód: 9208459

Született Fészekrakó Ingatlaniroda

Felújításhoz személyi kölcsönt keres? Kalkuláljon itt! →
FIX 3% Program

Ez a hirdetés megfelelhet a FIX 3%-os programnak.
Tudj meg többet a részletekről itt.

83.00 m2
ALAPTERÜLET
1
SZOBASZÁM
Tégla
ÉPÍTÉS
Hőszivattyú
FŰTÉS
  • CSOK igénybe vehető igen
  • Belső szintek 1
  • Tetőtér beépíthető nem
  • Kilátás Udvari
  • Parkolási lehetőség Udvari beálló
  • Építés éve 2026
  • Fűtés Hőszivattyú
  • Építőanyag Tégla
  • Erkély, terasz Terasz 18.00m2
  • Szigetelt igen
  • Bútorozott nem

Energetikai besorolás: A+

A+++
A++
A+
A
B
C
D
E
F
G
H
I

Az MBH Bank személyi kölcsön ajánlata

Fizetett hirdetés
1 millió Ft
6 évre
20 585 Ft/hó
THM: 14.5%
Részletek →
2 millió Ft
6 évre
41 169 Ft/hó
THM: 14.5%
Részletek →
3 millió Ft
6 évre
61 754 Ft/hó
THM: 14.5%
Részletek →

A tájékoztatás nem teljes körű és nem minősül ajánlattételnek.

Az ingatlan leírása

Új építésű ikerház Sében – modern otthon, nyugodt környezetben.
Sé egyik legkedveltebb, újonnan beépülő részén valósul meg ez a modern, téglaépítésű ikerház, amely 2026-ban költözhető.
A két ház egymáshoz csak a garázsoknál kapcsolódik, így a lakóterek között nincs közös fal, a nyugalom és a privát szféra teljesen biztosított.
A két ikerház közül a hátsó már gazdára talált, az utcafronti egység még elérhető –
ugyanazzal a gondos kivitelezéssel és modern felszereltséggel, amit a vevők már az előző háznál is megkedveltek.

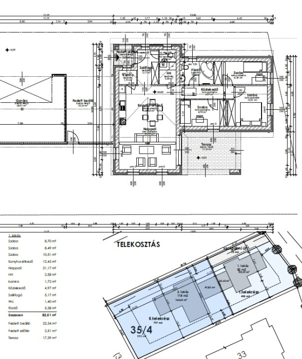
A 83 m²-es (nettó) otthonban nappali és három hálószoba kapott helyet, amit 18 m²-es terasz, fedett előtér és 23 m²-es autóbeálló egészít ki. A 420 m²-es saját telek kényelmes méretű kertet kínál, ahol bőven jut hely pihenésre és játékra is.
A ház modern hőszivattyús fűtésrendszerrel és padlófűtéssel készül, így a rezsi alacsony, a komfort pedig maximális lesz. A háromrétegű nyílászárók, a 15 cm vastag homlokzati hőszigetelés és a 30 cm tetőszigetelés tovább növelik az energiahatékonyságot.
A Terrán tetőcserép, az antracit színű bádogozás és a gondosan megválasztott burkolatok időtálló, modern megjelenést biztosítanak.
A vevők igénye szerint választhatók a burkolatok és a beltéri ajtók, így minden apró részletben személyre szabható az otthon.
Ha egy nyugodt, zöldövezeti környezetben épülő, modern otthont keresel Sében, ahol a minőség és a kényelem is kézzel fogható, ez a ház tökéletes választás lehet.
Bővebb információt a megadott telefonszámon kérhet!

Térkép

A hirdető elérhetősége

Mészáros Dóra e.v.

Gombás Enikő
+36 20 414