Eladó Ház- házrész
Hirdetéskód: 9186811
OC-Balaton
2278 m2
ALAPTERÜLET4
SZOBASZÁMnincs megadva
ÉPÍTÉSnincs megadva
FŰTÉS- CSOK igénybe vehető nem
- Tetőtér beépíthető nem
- Építés éve 1960
- Klíma nem
- Szigetelt nem
A+++
A++
A+
A
B
C
D
E
F
G
H
I
Az ingatlan leírása
ELADÓ SÁVOLYON, A BALATON ÉS A KIS-BALATON VONZÁSKÖRZETÉBEN BÁJOS FALUSI HÁZ NAGY TELEKKEL, SZERKEZETKÉSZ APARTMANNAL.
Az ingatlan főbb jellemzői:
- Nyugodt, zöld környezetben, park mellett helyezkedik el a saroktelek, amely két helyrajzi számon nyilvántartott. ( 1566 és 712 m2 ) A bekerített udvaron kis halastó, szaletli, úszómedence gépházzal, állólámpákkal, melléképületek, fatároló, néhány gyümölcsfa és málnabokrok vannak. A telek hátsó része füves, jelenleg használatlan terület.
- A ház tégla és vegyes falazatú, cserép tetővel.
- Közművek : Víz, villany, csatorna, a gázvezeték telken belül .
- Fűtés cserépkályhával, kandallóval és elektromos fűtőtesttel történik, bojler melegíti a vizet.
A korábban felújított lakóházban nemrég megtörtént a villanyvezetékek teljes cseréje, új zuhanykabint építettek be, kisebb változtatásokkal komfortosabbá tették a lakóteret. A télikert még felújításra szorul.
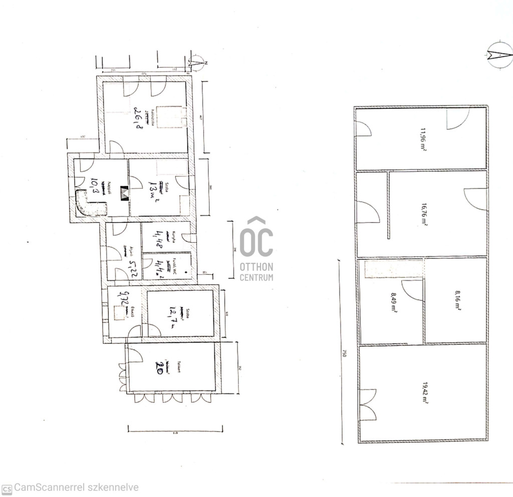
Helyiségek: télikert, egy nagy, két kisebb hálószoba, nappali, konyha, étkező, közlekedő, fürdőszoba toalettel.
Egy különálló épületben lévő kisebb apartman teljes felújítása, átalakítása megkezdődött, befejezése igény szerint az új tulajdonos feladata lehet.
Mind állandó tartózkodásra, mind nyaralónak ajánlható az ingatlan.
A település földrajzi elhelyezkedése kiváló. A Balaton mindössze 15 km, Keszthely 23, Nagykanizsa 30 km-en belül elérhető. Békés környezetre vágyó bel- és külföldiek előszeretettel vásárolnak itt ingatlanokat : mintegy 40 családi ház került német és osztrák tulajdonba. Óvoda, iskola, bolt és egészségügyi ellátás van.
Ha a fentiek alapján érdekli az ingatlan, további kérdései merültek fel vagy megtekintené, kérem, hívjon/ írjon a megadott elérhetőségeken. Rugalmasan állunk rendelkezésre időpont egyeztetéshez.
Az ingatlan főbb jellemzői:
- Nyugodt, zöld környezetben, park mellett helyezkedik el a saroktelek, amely két helyrajzi számon nyilvántartott. ( 1566 és 712 m2 ) A bekerített udvaron kis halastó, szaletli, úszómedence gépházzal, állólámpákkal, melléképületek, fatároló, néhány gyümölcsfa és málnabokrok vannak. A telek hátsó része füves, jelenleg használatlan terület.
- A ház tégla és vegyes falazatú, cserép tetővel.
- Közművek : Víz, villany, csatorna, a gázvezeték telken belül .
- Fűtés cserépkályhával, kandallóval és elektromos fűtőtesttel történik, bojler melegíti a vizet.
A korábban felújított lakóházban nemrég megtörtént a villanyvezetékek teljes cseréje, új zuhanykabint építettek be, kisebb változtatásokkal komfortosabbá tették a lakóteret. A télikert még felújításra szorul.
Helyiségek: télikert, egy nagy, két kisebb hálószoba, nappali, konyha, étkező, közlekedő, fürdőszoba toalettel.
Egy különálló épületben lévő kisebb apartman teljes felújítása, átalakítása megkezdődött, befejezése igény szerint az új tulajdonos feladata lehet.
Mind állandó tartózkodásra, mind nyaralónak ajánlható az ingatlan.
A település földrajzi elhelyezkedése kiváló. A Balaton mindössze 15 km, Keszthely 23, Nagykanizsa 30 km-en belül elérhető. Békés környezetre vágyó bel- és külföldiek előszeretettel vásárolnak itt ingatlanokat : mintegy 40 családi ház került német és osztrák tulajdonba. Óvoda, iskola, bolt és egészségügyi ellátás van.
Ha a fentiek alapján érdekli az ingatlan, további kérdései merültek fel vagy megtekintené, kérem, hívjon/ írjon a megadott elérhetőségeken. Rugalmasan állunk rendelkezésre időpont egyeztetéshez.