Eladó Ház- házrész
Hirdetéskód: 9236557

-

Felújításhoz személyi kölcsönt keres? Kalkuláljon itt! →
FIX 3% Program

Ez a hirdetés megfelelhet a FIX 3%-os programnak.
Tudj meg többet a részletekről itt.

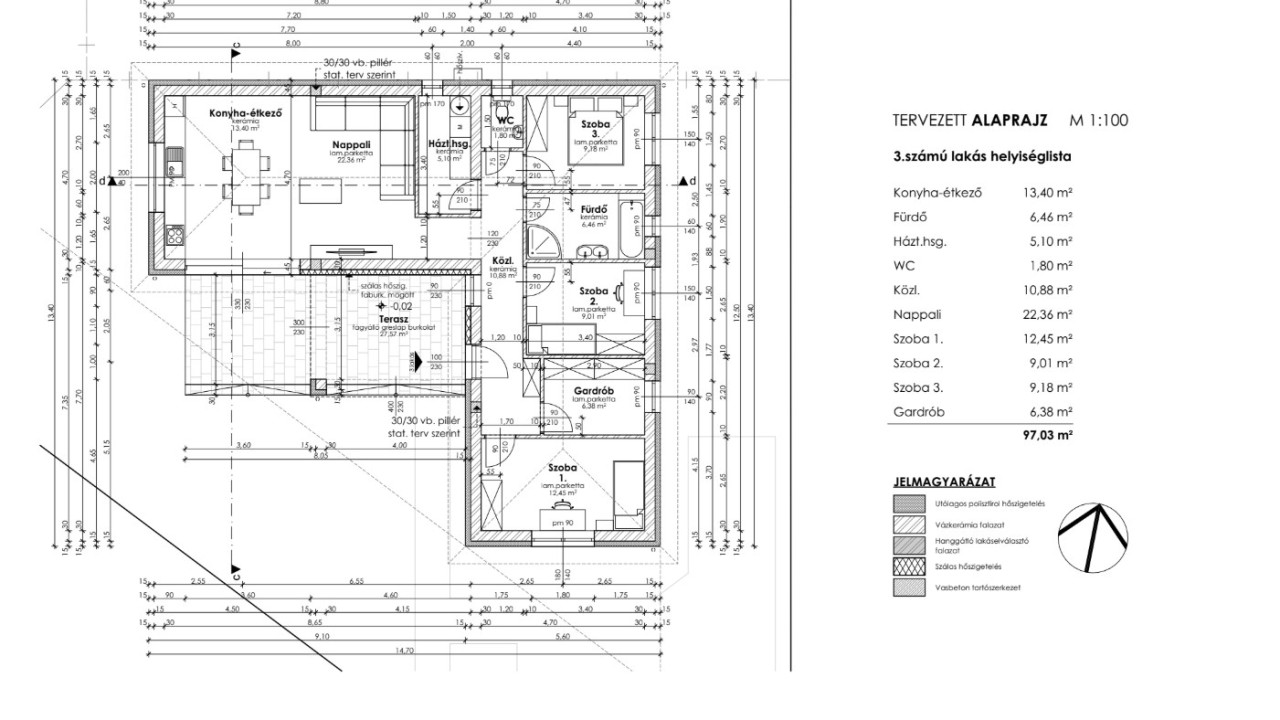
97.00 m2
ALAPTERÜLET
3
SZOBASZÁM
Tégla
ÉPÍTÉS
Gáz (cirkó)
FŰTÉS
  • CSOK igénybe vehető igen
  • Tetőtér beépíthető nem
  • Kilátás Utcai
  • Tájolás Délnyugat
  • Ingatlan komfort Összkomfortos
  • Parkolási lehetőség Udvari beálló
  • Építés éve 2026
  • Fűtés Gáz (cirkó)
  • Építőanyag Tégla
  • Erkély, terasz Terasz 27.00m2
  • Klíma nem
  • Szigetelt igen
  • Bútorozott nem
  • Víz telken belül
  • Csatorna telken belül
  • Gáz telken belül
  • Villany telken belül

Energetikai besorolás: B

A+++
A++
A+
A
B
C
D
E
F
G
H
I

Az MBH Bank személyi kölcsön ajánlata

Fizetett hirdetés
1 millió Ft
6 évre
20 585 Ft/hó
THM: 14.5%
Részletek →
2 millió Ft
6 évre
41 169 Ft/hó
THM: 14.5%
Részletek →
3 millió Ft
6 évre
61 754 Ft/hó
THM: 14.5%
Részletek →

A tájékoztatás nem teljes körű és nem minősül ajánlattételnek.

Az ingatlan leírása


Új építésű, 3 szobás, 97m2-es,családi ház! Sárvár új zöldövezeti utcájában, a Krisztina lakóparkban, 3 szobás, nappali-konyha étkezős, újépítésű, BB energetikával rendelkező, teraszos, (27,3m2) kertkapcsolatos (427,6m2), 2026 novemberi kulcsrakész átadással eladó!


Az ingatlan fűtéséről  gáz-cirkó rendszer gondoskodik padlófűtéssel.
Választható hideg-meleg burkolatokkal, szaniterekkel.

(5% áfával,mely CSOK támogatás igénybevételével visszaigényelhető!)

További részletekért forduljon hozzám bizalommal.
Kérdéseivel kapcsolatban irodai konzultáció keretében, illetve telefonon állok szíves rendelkezésére.

Teljeskörű Otthon Start Hitel, Csok, Csok Hitel, Piaci Hitel ügyintézéssel! Ne feledje, amennyiben Csok-ot igényel, az ingatlanvásárlása illetékmentes!

 

Térkép

Ingatlan adásvétel ügyvédi díja
472 500 Ft
a hirdetésben szereplő ár alapján
  • A vételár 0,45%-a
  • Szerződéscsomag teljeskörű képviselettel
  • Ingyenes tulajdoni lap ellenőrzés
  • Az ÁFA-t már tartalmazza
Érdekel az ajánlat →
A tájékoztatás nem teljes körű és nem minősül ajánlattételnek. Minimum díj: 150 000 Ft, maximum díj: 600 000 Ft. A díj kizárólag lakóingatlan adásvételére vonatkozik.

A hirdető elérhetősége

S1Ingatlan

Csuka Milán
+36 30 217