Eladó Ház- házrész
Hirdetéskód: 9180262
Velence Tópart utca 47 - OTP Ingatlanpont Iroda
Ez a hirdetés megfelelhet a FIX 3%-os programnak.
Tudj meg többet a részletekről itt.
141 m2
ALAPTERÜLET4
SZOBASZÁMnincs megadva
ÉPÍTÉSnincs megadva
FŰTÉS- CSOK igénybe vehető nem
- Tetőtér beépíthető nem
- Építés éve 1988
- Klíma nem
- Szigetelt nem
A+++
A++
A+
A
B
C
D
E
F
G
H
I
Az ingatlan leírása
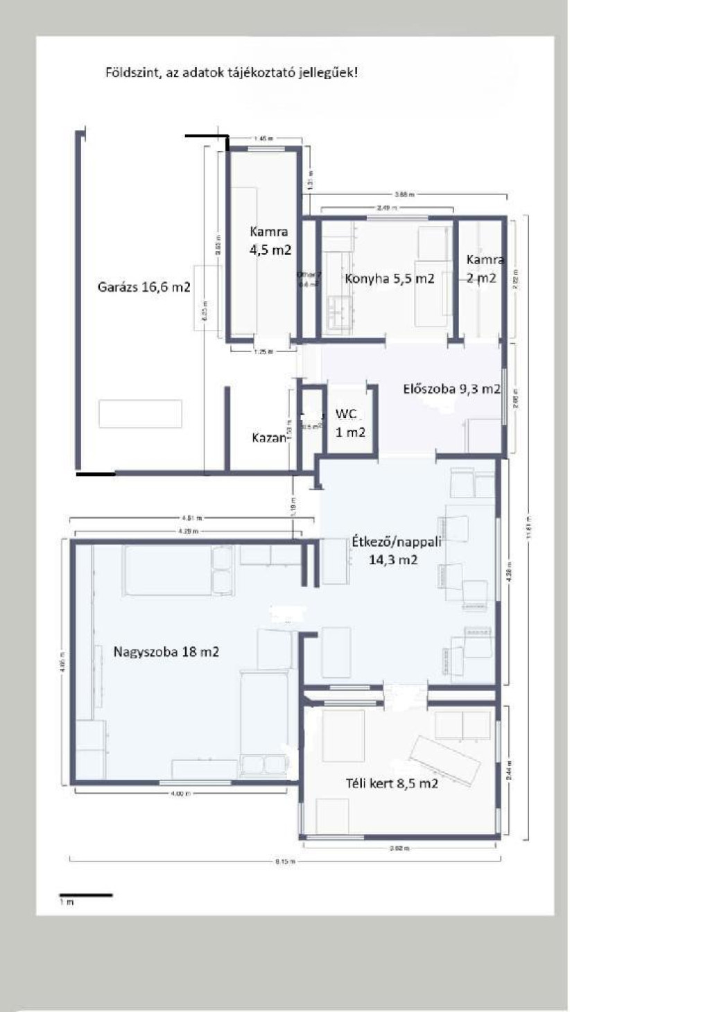
Sárszentmihály csendes részén eladó egy 141 m?-es, kétszintes családi ház, amely egy 966 m?-es telken helyezkedik el. Az épület betonblokkból épült, 2025-ben 10 cm-es hungarocell szigetelést kapott, 2023-ban nyílászáróit cserélték, a kisebbik szoba pedig 2024-ben új parkettát kapott. Kívülről felújított, belül részben felújítandó állapotú.
A ház 4+1 szobával és összkomfortos kialakítással kínál kényelmes, világos tereket. Fűtését gázcirkó kazán és radiátoros rendszer biztosítja, déli-keleti tájolása miatt a helyiségek napfényesek. Parkolás zárt és nyílt kocsibeállón, illetve közterületen is megoldható.
Tágas belső tere és sok szobája révén ez az ingatlan ideális választás lehet nagyobb családok, több generáció együttélése vagy otthoni munkavégzés esetén is.
73000000 Ft
A ház 4+1 szobával és összkomfortos kialakítással kínál kényelmes, világos tereket. Fűtését gázcirkó kazán és radiátoros rendszer biztosítja, déli-keleti tájolása miatt a helyiségek napfényesek. Parkolás zárt és nyílt kocsibeállón, illetve közterületen is megoldható.
Tágas belső tere és sok szobája révén ez az ingatlan ideális választás lehet nagyobb családok, több generáció együttélése vagy otthoni munkavégzés esetén is.
73000000 Ft