Eladó Ház- házrész
Hirdetéskód: 9303698
Velence Tópart utca 47 - OTP Ingatlanpont Iroda
Felújításhoz személyi kölcsönt keres? Kalkuláljon itt! →
Ez a hirdetés megfelelhet a FIX 3%-os programnak.
Tudj meg többet a részletekről itt.
102.00 m2
ALAPTERÜLET3
SZOBASZÁMnincs megadva
ÉPÍTÉSEgyéb fűtés
FŰTÉS- CSOK igénybe vehető nem
- Tetőtér beépíthető nem
- Építés éve 2026
- Fűtés Egyéb fűtés
- Klíma nem
- Szigetelt nem
A+++
A++
A+
A
B
C
D
E
F
G
H
I
Az ingatlan leírása
Új építésű, személyre szabható álom otthon - már az építkezés megkezdése előtt foglalható!
Fejér megyében, Sárbogárdon, látványtervek alapján kínálunk megvételre egy új építésű, 102 m2-es családi házat, amely már az építkezés megkezdése előtt lefoglalható.
A legnagyobb előnye, hogy a tervek teljes mértékben variálhatók a vevő igényei szerint, így valóban olyan otthon születhet, ami az Ön életstílusához és elképzeléseihez igazodik - egyedi, személyre szabott megoldásokkal.
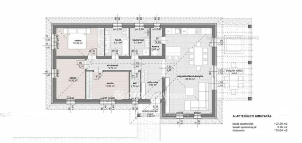
A jelenlegi alaprajz szerint az ingatlanban:
- 3 külön nyíló szoba
- tágas, amerikai konyhás nappali-étkező
- valamint egy fedett terasz kap helyet, ami tökéletes a nyári estékhez, pihenéshez, beszélgetésekhez.
A ház egy 800 m2-es telken épül, így bőven marad tér kertnek, játszótérnek, kocsibeállónak vagy akár egy későbbi medencének is.
Ideális választás családoknak, akik modern, új otthont szeretnének, és azoknak is, akik most alakítanák ki az igényeikre szabott álomházukat.
Érdeklődjön bizalommal!
69000000 Ft
Fejér megyében, Sárbogárdon, látványtervek alapján kínálunk megvételre egy új építésű, 102 m2-es családi házat, amely már az építkezés megkezdése előtt lefoglalható.
A legnagyobb előnye, hogy a tervek teljes mértékben variálhatók a vevő igényei szerint, így valóban olyan otthon születhet, ami az Ön életstílusához és elképzeléseihez igazodik - egyedi, személyre szabott megoldásokkal.
A jelenlegi alaprajz szerint az ingatlanban:
- 3 külön nyíló szoba
- tágas, amerikai konyhás nappali-étkező
- valamint egy fedett terasz kap helyet, ami tökéletes a nyári estékhez, pihenéshez, beszélgetésekhez.
A ház egy 800 m2-es telken épül, így bőven marad tér kertnek, játszótérnek, kocsibeállónak vagy akár egy későbbi medencének is.
Ideális választás családoknak, akik modern, új otthont szeretnének, és azoknak is, akik most alakítanák ki az igényeikre szabott álomházukat.
Érdeklődjön bizalommal!
69000000 Ft