Eladó Ház- házrész
Hirdetéskód: 9230535

Miskolc - OTP Ingatlanpont Iroda

FIX 3% Program

Ez a hirdetés megfelelhet a FIX 3%-os programnak.
Tudj meg többet a részletekről itt.

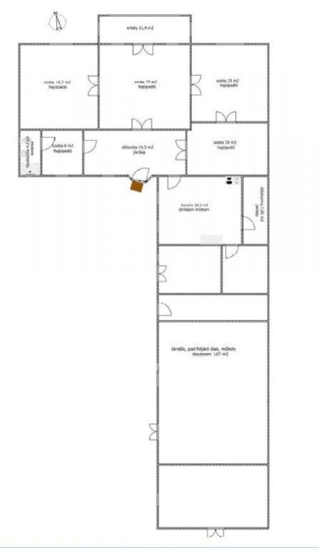
162 m2
ALAPTERÜLET
4
SZOBASZÁM
nincs megadva
ÉPÍTÉS
nincs megadva
FŰTÉS
  • CSOK igénybe vehető nem
  • Tetőtér beépíthető nem
  • Építés éve 1920
  • Klíma nem
  • Szigetelt nem
Energetikai besorolás: Nincs meghatározva
A+++
A++
A+
A
B
C
D
E
F
G
H
I

Az ingatlan leírása

Sajópüspöki községben, közel a szlovák határhoz eladó egy 1920-as években épült, kúria jellegű, teljeskörűen felújítandó, 162 nm-es családi ház, 3841 nm telken. Alkalmas vállalkozásra, horgászoknak, túrázóknak nyaralónak, gyerek táboroztatásra. A kedves falut hegyek, dombok, erdők tarkítják, na és persze a Sajó folyó! A terep kiválóan alkalmas gyalogtúrára, vízitúrára egyaránt, de a horgászok is gazdagodhatnak a folyó által kínált élményekkel. M302930

Térkép

A hirdető elérhetősége

Miskolc - OTP Ingatlanpont Iroda

Czugh Péter
+36 70 393