Eladó Ház- házrész
Hirdetéskód: 9255229
Gyöngyös Kossuth Lajos utca 22 - OTP Ingatlanpont Iroda
82.00 m2
ALAPTERÜLET3
SZOBASZÁMnincs megadva
ÉPÍTÉSnincs megadva
FŰTÉS- CSOK igénybe vehető nem
- Tetőtér beépíthető nem
- Építés éve 1950
- Klíma nem
- Szigetelt nem
A+++
A++
A+
A
B
C
D
E
F
G
H
I
Az ingatlan leírása
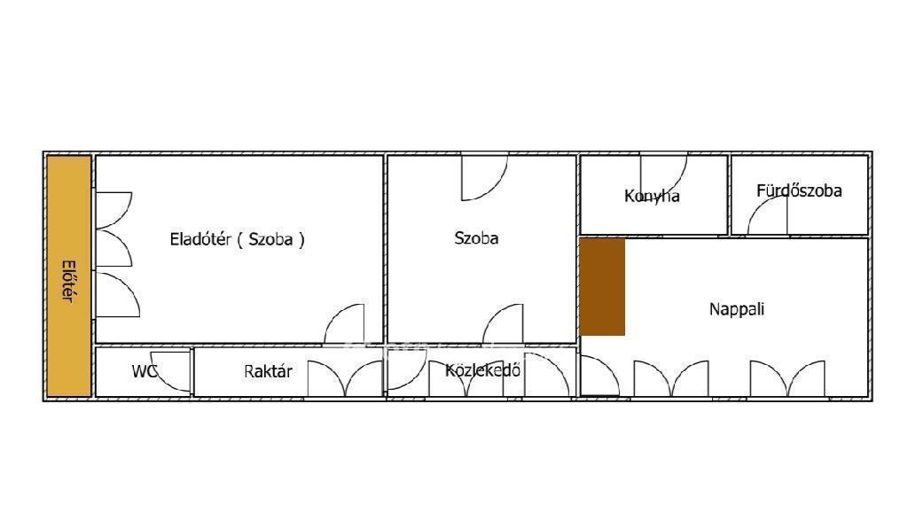
Eladásra kínálunk Recsk központjában, kiváló infrastruktúrával rendelkező részen kínálunk megvételre egy 82 m? alapterületű, kis családi házat, amely nemcsak otthonként, hanem vállalkozási célra is kitűnő lehetőségeket rejt magában.
Az ingatlan tetőszerkezetének teljes körű cseréje mintegy 10 évvel ezelőtt megtörtént, így ezen szerkezeti elem korszerű, stabil és jó állapotban van. A ház fűtését gázkonvektorok biztosítják, míg a melegvíz-ellátást villanybojler szolgálja, ami gazdaságos fenntartást tesz lehetővé.
Az épület hátsó részében egy nappalival és étkezővel egybenyitott tér, egy különálló szoba, egy főzőfülke, egy fürdőszoba, valamint egy tetőtéri szoba került kialakításra, ezáltal a lakótér jól tagolt, és kényelmes elhelyezkedést biztosít akár kisebb család számára is.
Az utcafronti rész külön figyelmet érdemel, hiszen ott egy több mint 30 éve működő, bejáratott üzlethelyiség található, amely kiváló lehetőséget kínál azok számára, akik vállalkozásukat otthonuk közvetlen közelében szeretnék működtetni, vagy befektetési céllal keresnek ingatlant.
Az udvar rendezett, az autó tárolása telken belül megoldott, de az épület előtti parkolás is biztosított, ami tovább növeli az ingatlan praktikus értékét. A központi elhelyezkedésből adódóan az üzlet könnyen elérhető a helyiek és az átutazók számára egyaránt, így hosszú távon is stabil bevételi forrást biztosíthat új tulajdonosának.
Irodánk teljes körű ügyintézéssel, pénzügyi tanácsadással, ügyvédi háttérrel, valamint CSOK és Babaváró támogatási lehetőségekkel , áll ügyfeleink rendelkezésére.
Keressen bizalommal, a megtekintés rugalmasan megoldható!
Az ingatlan tetőszerkezetének teljes körű cseréje mintegy 10 évvel ezelőtt megtörtént, így ezen szerkezeti elem korszerű, stabil és jó állapotban van. A ház fűtését gázkonvektorok biztosítják, míg a melegvíz-ellátást villanybojler szolgálja, ami gazdaságos fenntartást tesz lehetővé.
Az épület hátsó részében egy nappalival és étkezővel egybenyitott tér, egy különálló szoba, egy főzőfülke, egy fürdőszoba, valamint egy tetőtéri szoba került kialakításra, ezáltal a lakótér jól tagolt, és kényelmes elhelyezkedést biztosít akár kisebb család számára is.
Az utcafronti rész külön figyelmet érdemel, hiszen ott egy több mint 30 éve működő, bejáratott üzlethelyiség található, amely kiváló lehetőséget kínál azok számára, akik vállalkozásukat otthonuk közvetlen közelében szeretnék működtetni, vagy befektetési céllal keresnek ingatlant.
Az udvar rendezett, az autó tárolása telken belül megoldott, de az épület előtti parkolás is biztosított, ami tovább növeli az ingatlan praktikus értékét. A központi elhelyezkedésből adódóan az üzlet könnyen elérhető a helyiek és az átutazók számára egyaránt, így hosszú távon is stabil bevételi forrást biztosíthat új tulajdonosának.
Irodánk teljes körű ügyintézéssel, pénzügyi tanácsadással, ügyvédi háttérrel, valamint CSOK és Babaváró támogatási lehetőségekkel , áll ügyfeleink rendelkezésére.
Keressen bizalommal, a megtekintés rugalmasan megoldható!