Eladó Ház- házrész
Hirdetéskód: 9251098

-

Felújításhoz személyi kölcsönt keres? Kalkuláljon itt! →
FIX 3% Program

Ez a hirdetés megfelelhet a FIX 3%-os programnak.
Tudj meg többet a részletekről itt.

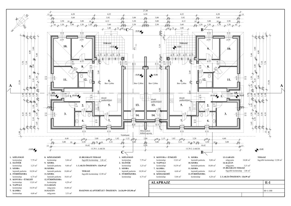
127.00 m2
ALAPTERÜLET
5
SZOBASZÁM
Tégla
ÉPÍTÉS
Hőszivattyú
FŰTÉS
  • CSOK igénybe vehető igen
  • Belső szintek 1
  • Kilátás Udvari
  • Tájolás Délnyugat
  • Ingatlan komfort Duplakomfortos
  • Parkolási lehetőség Önálló garázs
  • Építés éve 2026
  • Fűtés Hőszivattyú
  • Építőanyag Tégla
  • Szigetelt igen
  • Bútorozott nem
  • Víz telken belül
  • Csatorna telken belül
  • Gáz utcában
  • Villany telken belül

Energetikai besorolás: A

A+++
A++
A+
A
B
C
D
E
F
G
H
I

Az MBH Bank személyi kölcsön ajánlata

Fizetett hirdetés
1 millió Ft
6 évre
20 585 Ft/hó
THM: 14.5%
Részletek →
2 millió Ft
6 évre
41 169 Ft/hó
THM: 14.5%
Részletek →
3 millió Ft
6 évre
61 754 Ft/hó
THM: 14.5%
Részletek →

A tájékoztatás nem teljes körű és nem minősül ajánlattételnek.

Az ingatlan leírása

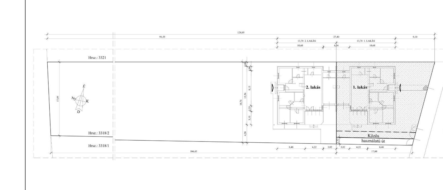
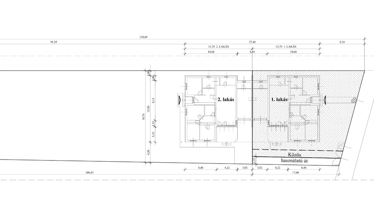
Megvételre kínálok Ráckevén 2db új építésű társas családiházat. Az ingatlanok Ráckeve kedvelt új építési övezetében vannak, közel a Dunaparthoz és a Strandhoz, Termálfürdőhöz.


1-es lakás ára: 99 000 000 Ft


127m2 360 m2 telekrésszel.


2-es lakás ára: 108 000 000 Ft


127m2 2 300 m2 telekrésszel.


Mindkét lakás tartalmaz 4 szobát, amerikai konyhás nappalit, 2 fürdőszobát, spejzt, gardróbot, garázst. Akár 3 gyermekes család kényelmes lakhatását is biztosítja. Az épületek minőségi kivitelezéssel, prémium kategóriájú anyagok felhasználásával készülnek. Az ingatlanok 30 cm-es Porotherm téglából épülnek, 15 cm-es grafitos dryvit szigeteléssel, műanyag 7 légkamrás nyílászárókkal, valamint a tető Bramac beton cserépfedéssel kerül kialakításra. A fűtésről, hűtésről és a meleg vízellátásról, energiatakarékos, hőszivattyús fűtési rendszer (padlófűtés), illetve 3,6kW hűtő fűtő klíma gondoskodik.


Riasztó és napelem előkészítéssel, illetve elektromos garázskapuval. A ház jelenleg építés alatt, befejezése a vevő igényeit figyelembe véve történik. A burkolatokat, szanitereket, belső nyílászárókat, a tulajdonos választhatja a megállapodás szerinti értékhatárig. A vételár kulcsrakész állapotra vonatkozik, amely a konyhabútort nem tartalmazza.


Várom megtisztelő érdeklődését: Keresztes Zoltán 06-30-674-8605

Térkép

A hirdető elérhetősége

Keresztes Zoltán

+36 30 674