Eladó Ház- házrész
Hirdetéskód: 9288293

Dunaharaszti Bocskai utca 10 - OTP Ingatlanpont Iroda

Felújításhoz személyi kölcsönt keres? Kalkuláljon itt! →
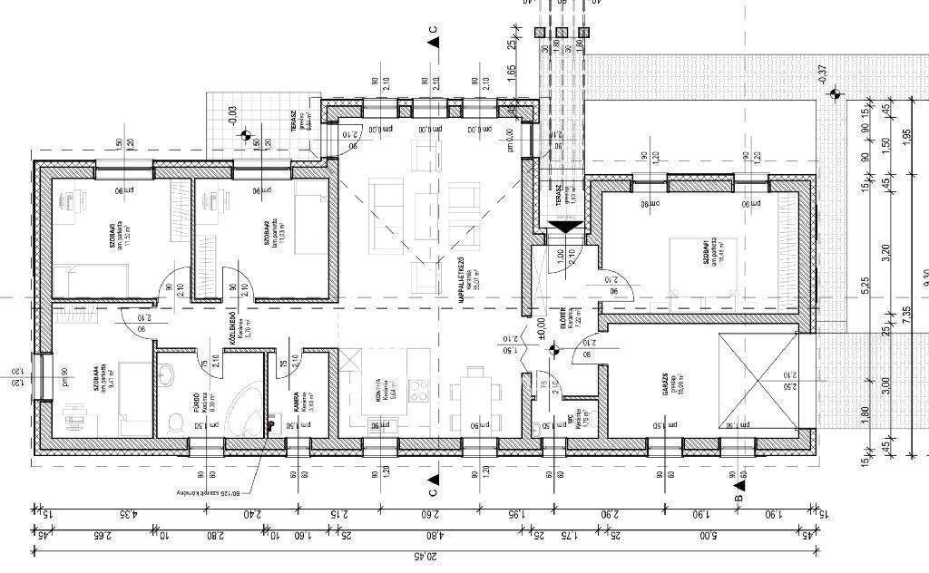
113.00 m2
ALAPTERÜLET
4
SZOBASZÁM
nincs megadva
ÉPÍTÉS
nincs megadva
FŰTÉS
  • CSOK igénybe vehető nem
  • Tetőtér beépíthető nem
  • Építés éve 2024
  • Klíma nem
  • Szigetelt nem
Energetikai besorolás: Nincs meghatározva
A+++
A++
A+
A
B
C
D
E
F
G
H
I

Az MBH Bank személyi kölcsön ajánlata

Fizetett hirdetés
1 millió Ft
6 évre
20 585 Ft/hó
THM: 14.5%
Részletek →
2 millió Ft
6 évre
41 169 Ft/hó
THM: 14.5%
Részletek →
3 millió Ft
6 évre
61 754 Ft/hó
THM: 14.5%
Részletek →

A tájékoztatás nem teljes körű és nem minősül ajánlattételnek.

Az ingatlan leírása

Pest Vármegye, Ráckeve dinamikusan fejlődő részén 113 nm-es önálló családi ház garázzsal eladó. A tégla falazatú ingatlan egy 807 nm-es telken helyezkedik el. A házban található négy szoba, egy amerikai konyhás nappali, fürdőszoba wc-vel, külön wc és egy kamra. Az ingatlan kulcsra készen kerül átadásra. Vevő ügyfeleinket díj mentes hiteltanácsadással és a piaci hiteleknél kedvezőbb hitelekkel lepjük meg. További kérdéssel forduljon hozzám bizalommal.

Térkép

A hirdető elérhetősége

Dunaharaszti Bocskai utca 10 - OTP Ingatlanpont Iroda

Káll László
+36 20 461