Eladó Ház- házrész
Hirdetéskód: 9260607
Fővállalkozó Balla és Balla Kft
Felújításhoz személyi kölcsönt keres? Kalkuláljon itt! →
Ez a hirdetés megfelelhet a FIX 3%-os programnak.
Tudj meg többet a részletekről itt.
125.00 m2
ALAPTERÜLET5
SZOBASZÁMnincs megadva
ÉPÍTÉSnincs megadva
FŰTÉS- CSOK igénybe vehető nem
- Tetőtér beépíthető nem
- Építés éve 2026
- Klíma nem
- Szigetelt nem
A+++
A++
A+
A
B
C
D
E
F
G
H
I
Az ingatlan leírása
ÖNÁLLÓ ENERGIATAKARÉKOS ÚJ ÉPÍTÉSŰ CSALÁDI HÁZ ELADÓ !!!!!
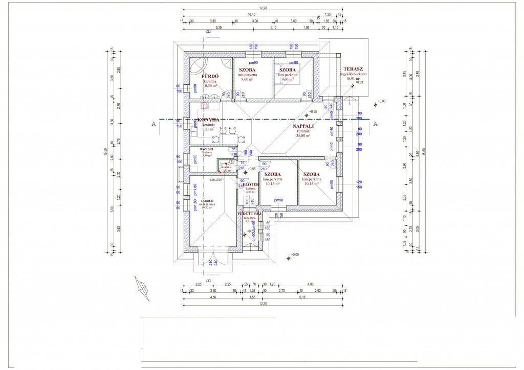
Ráckeve csendes de mégis központi helyén kínálok eladásra egy földszintes , körbejárható, téglaépítésű, benapozott, családi házat terasszal és garázzsal nagy telekkel.
A telek 1200 nm-es és beton kerítéssel körbekerített a kíváncsi szemek elől biztosítva a privát szférát, itt mindennek lesz helye : játszó tér, sütögető, medence, kutya kenel és még konyhakertnek és gyümölcsfáknak is jut elég hely.
Az épület főfalai 30-as Leier téglából épültek 15 cm -es homlokzati szigeteléssel,aljzat szigetelés 14 cm-es,födém szigetelés 20 cm-es, 5 légkamrás, 3 rétegű üvegezésű fehér színű műanyag nyílászárók, beton cserép, energia takarékos hőszívattyús fűtés /padló fűtés minden helyiségben a garázsban is/.Minden helyiség ablakos , átszellőztethető és napfényes.
KEDVEZŐ NM ÁR, 3 %-OS HITEL, CSOK igénybe vehető, 20 % önerővel leköthető, burkolatok, szaniterek, belső ajtók választhatóak, megtekintéskor műszaki leírással tudok szolgálni.
További információkért és megtekintési időpontért kereshet a hét bármely napján, hétvégén is mutatom. Várható átadás 2026 II. n.év
Ráckeve csendes de mégis központi helyén kínálok eladásra egy földszintes , körbejárható, téglaépítésű, benapozott, családi házat terasszal és garázzsal nagy telekkel.
A telek 1200 nm-es és beton kerítéssel körbekerített a kíváncsi szemek elől biztosítva a privát szférát, itt mindennek lesz helye : játszó tér, sütögető, medence, kutya kenel és még konyhakertnek és gyümölcsfáknak is jut elég hely.
Az épület főfalai 30-as Leier téglából épültek 15 cm -es homlokzati szigeteléssel,aljzat szigetelés 14 cm-es,födém szigetelés 20 cm-es, 5 légkamrás, 3 rétegű üvegezésű fehér színű műanyag nyílászárók, beton cserép, energia takarékos hőszívattyús fűtés /padló fűtés minden helyiségben a garázsban is/.Minden helyiség ablakos , átszellőztethető és napfényes.
KEDVEZŐ NM ÁR, 3 %-OS HITEL, CSOK igénybe vehető, 20 % önerővel leköthető, burkolatok, szaniterek, belső ajtók választhatóak, megtekintéskor műszaki leírással tudok szolgálni.
További információkért és megtekintési időpontért kereshet a hét bármely napján, hétvégén is mutatom. Várható átadás 2026 II. n.év