Eladó Ház- házrész
Hirdetéskód: 9315144

-

Felújításhoz személyi kölcsönt keres? Kalkuláljon itt! →
FIX 3% Program

Ez a hirdetés megfelelhet a FIX 3%-os programnak.
Tudj meg többet a részletekről itt.

121.00 m2
ALAPTERÜLET
3
SZOBASZÁM
Tégla
ÉPÍTÉS
Gáz (cirkó)
FŰTÉS
  • CSOK igénybe vehető igen
  • Belső szintek 1
  • Tetőtér beépíthető igen
  • Kilátás Udvari
  • Tájolás Délkelet
  • Ingatlan komfort Összkomfortos
  • Parkolási lehetőség Önálló garázs
  • Építés éve 2026
  • Fűtés Gáz (cirkó)
  • Építőanyag Tégla
  • Erkély, terasz Terasz 21.00m2
  • Klíma nem
  • Szigetelt igen
  • Bútorozott nem
  • Akadálymentesített igen
  • Víz telken belül
  • Csatorna telken belül
  • Gáz telken belül
  • Villany telken belül

Energetikai besorolás: A+

A+++
A++
A+
A
B
C
D
E
F
G
H
I

Az MBH Bank személyi kölcsön ajánlata

Fizetett hirdetés
1 millió Ft
6 évre
20 585 Ft/hó
THM: 14.5%
Részletek →
2 millió Ft
6 évre
41 169 Ft/hó
THM: 14.5%
Részletek →
3 millió Ft
6 évre
61 754 Ft/hó
THM: 14.5%
Részletek →

A tájékoztatás nem teljes körű és nem minősül ajánlattételnek.

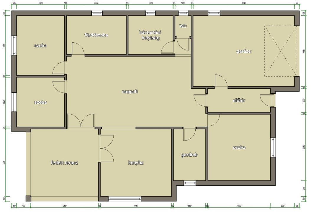
Az ingatlan leírása

Sárvár fürdőváros vonzáskörzetében, Rábapatyon (5 km), új építésű ingatlanok szomszédságában épült a 121 m2-es, 3 szoba, nappali, konyhás, lakóház.


Az 1021 m2-es telken elhelyezkedő, dél-keleti fekvésű épület, szinte teljesen kész, kisebb munkálatok szükségesek a használatba vételi engedély megszerzéséhez. Az ingatlan fűtését egy Bosch kondenzációs gázkazán biztosítja, padlófűtéses hőleadással, a klímák alapszerelése, becsövezése megtörtént. A lakóház keleti oldalán található a 28 m2-es garázs, ami a ház szerves részét képezi, a nyugati oldalon egy 21 m2-es fedett terasz került kialakításra. A tetőtér beépíthető, a közművek kiállásai elkészültek.


A kertben egy 40 m2-es garázs, tároló épület beton alapozása megtörtént, a terület utcafronti kerítése részben elkészült, a szomszédok felöli oldalak drótfonattal határoltak.


A lakóház befejezése már nem igényel komoly anyagi ráfordítást az új tulajdonostól, mivel szinte teljesen készen várja az új lakóit!


További részletekért forduljon hozzám bizalommal.


Kérdéseivel kapcsolatban irodai konzultáció keretében, illetve telefonon állok szíves rendelkezésére.


Teljeskörű Otthon Start Hitel, Csok + Hitel, Piaci Hitel ügyintézéssel! Ne feledje, amennyiben Csok-ot igényel, az ingatlanvásárlása illetékmentes!


Érd.: Molnár Zsolt +36302174888


 


Videó: https://www.youtube.com/watch?v=30Svo6puv8s

Térkép

Ingatlan adásvétel ügyvédi díja
449 550 Ft
a hirdetésben szereplő ár alapján
  • A vételár 0,45%-a
  • Szerződéscsomag teljeskörű képviselettel
  • Ingyenes tulajdoni lap ellenőrzés
  • Az ÁFA-t már tartalmazza
Érdekel az ajánlat →
A tájékoztatás nem teljes körű és nem minősül ajánlattételnek. Minimum díj: 150 000 Ft, maximum díj: 600 000 Ft. A díj kizárólag lakóingatlan adásvételére vonatkozik.

A hirdető elérhetősége

S1Ingatlan

Csuka Milán
+36 30 217