Eladó Ház- házrész
Hirdetéskód: 9267145

Velence Tópart utca 47 - OTP Ingatlanpont Iroda

113.00 m2
ALAPTERÜLET
3
SZOBASZÁM
nincs megadva
ÉPÍTÉS
nincs megadva
FŰTÉS
  • CSOK igénybe vehető nem
  • Tetőtér beépíthető nem
  • Építés éve 1980
  • Klíma nem
  • Szigetelt nem
Energetikai besorolás: Nincs meghatározva
A+++
A++
A+
A
B
C
D
E
F
G
H
I

Az ingatlan leírása

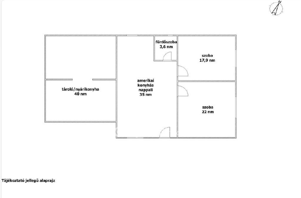
Fejér megye, Pusztaszabolcs 113 nm-es családi ház eladó. A felújított, tégla falazatú lakóingatlan a település központjához közel egy 550 nm-es telken helyezkedik el. A tehermentes családi házban amerikai konyhás nappali, két tágas hálószoba és fürdőszoba található, valamint az ingatlanhoz tartozik egy hozzáépített 40 nm-es tároló(fele beszámítva a hasznos alapterületbe), mely több szoba kialakítására alkalmas, alatta pedig egy 30 nm-es pince található. A belső felújítás során cserélték a víz-és villanyvezetékeket, az összes nyílászárót műanyagra, az összes burkolatot, teljes aljzatcsere és aljzatszigetelés, mennyezetszigetelés, új gépesített konyhabútor. A meghirdetett ár tartalmazza a külső szigetelést is. A fűtésről új kombi gázkazán és új hűtő fűtő klíma gondoskodik. Séta távolságra a vasútállomás, boltok, gyógyszertár, orvosi rendelő, óvoda, iskola, játszótér, polgármesteri hivatal. Teljes körű ügyintézésben segítjük ügyfeleinket díjtalanul: CSOK igénylése, kedvezményes hitel mobil bankári szolgáltatással, adásvétel teljes lebonyolításával.

61900000 Ft

Térkép

A hirdető elérhetősége

Velence Tópart utca 47 - OTP Ingatlanpont Iroda

Lepsényi Kornél
+36 70 884