Eladó Ház- házrész
Hirdetéskód: 9317164

Székesfehérvár Palotai út 8 - OTP Ingatlanpont Iroda

Felújításhoz személyi kölcsönt keres? Kalkuláljon itt! →
FIX 3% Program

Ez a hirdetés megfelelhet a FIX 3%-os programnak.
Tudj meg többet a részletekről itt.

106.00 m2
ALAPTERÜLET
3
SZOBASZÁM
nincs megadva
ÉPÍTÉS
Elektromos
FŰTÉS
  • CSOK igénybe vehető nem
  • Belső szintek 1
  • Tetőtér beépíthető nem
  • Építés éve 2026
  • Fűtés Elektromos
  • Klíma nem
  • Szigetelt nem
Energetikai besorolás: Nincs meghatározva
A+++
A++
A+
A
B
C
D
E
F
G
H
I

Az MBH Bank személyi kölcsön ajánlata

Fizetett hirdetés
1 millió Ft
6 évre
20 585 Ft/hó
THM: 14.5%
Részletek →
2 millió Ft
6 évre
41 169 Ft/hó
THM: 14.5%
Részletek →
3 millió Ft
6 évre
61 754 Ft/hó
THM: 14.5%
Részletek →

A tájékoztatás nem teljes körű és nem minősül ajánlattételnek.

Az ingatlan leírása

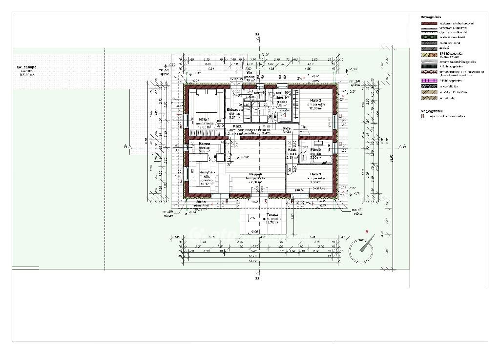
Fejér megye, Pusztaszabolcs 106 nm-es családi ház 460 nm-es saját kerttel eladó. A most épülő, tégla falazatú, szigetelt ingatlan a település központjához közel, mégis csendes környezetben található. A kulcsrakész állapot várható átadása 2026. nyár vége. Az ingatlan hasznos alapterülete 100 nm. Az modern házban nappali, 3 szoba, konyha, kamra, 1 kádas és 1 zuhanyzós fürdőszoba, 1 külön WC található, valamint tartozik hozzá 11,7 nm-es terasz és murvázott kocsibeálló. Az épület B30-as téglából, 15 cm-es homlokzati, 25 cm-es födém szigeteléssel épül. Az összes nyílászáró 3 rétegű műanyag, redőnnyel és szúnyoghálóval felszerelt. Fűtése elektromos padlófűtéssel, elektromos panelekkel és 2 db hűtő fűtő klímával biztosított. Napelemrendszerrel felszerelt. A házban még a beltéri ajtók, minden belső falszín, burkolat színe és mintája választható. A vételár tartalmazza a kulcsrakész állapotot, kerítéssel, murvával, térkövezéssel és tereprendezéssel. A közelben iskola, óvoda, bevásárlási lehetőségek, orvosi rendelő, polgármesteri hivatal, posta, vasútállomás. Jól átgondolt, élhető terekkel megálmodott, a legújabb rendszerek felhasználásával készülő ingatlan megvásárlásával egyszerre teremthet egy igényes, stílusos és barátságos otthont. Teljes körű ügyintézésben segítjük ügyfeleinket díjtalanul: Falusi CSOK, CSOK igénylése, kedvezményes hitel mobil bankári szolgáltatással, adásvétel teljes lebonyolításával. Bővebb információkért, kérem keressen bizalommal.

Térkép

Ingatlan adásvétel ügyvédi díja
449 910 Ft
a hirdetésben szereplő ár alapján
  • A vételár 0,45%-a
  • Szerződéscsomag teljeskörű képviselettel
  • Ingyenes tulajdoni lap ellenőrzés
  • Az ÁFA-t már tartalmazza
Érdekel az ajánlat →
A tájékoztatás nem teljes körű és nem minősül ajánlattételnek. Minimum díj: 150 000 Ft, maximum díj: 600 000 Ft. A díj kizárólag lakóingatlan adásvételére vonatkozik.

A hirdető elérhetősége

Székesfehérvár Palotai út 8 - OTP Ingatlanpont Iroda

Darnai Henrietta
+36 20 487