Eladó Ház- házrész
Hirdetéskód: 9252984
5100 Jászberény Szentháromság tér 2. - OTP Ingatlanpont Iroda
100.00 m2
ALAPTERÜLET2
SZOBASZÁMnincs megadva
ÉPÍTÉSnincs megadva
FŰTÉS- CSOK igénybe vehető nem
- Tetőtér beépíthető nem
- Építés éve 1962
- Klíma nem
- Szigetelt nem
A+++
A++
A+
A
B
C
D
E
F
G
H
I
Az ingatlan leírása
Eladásra kínálunk Hajdú-Bihar vármegyében Püspökladányban1233m2 telken lévő 69m2 családi házat!
Az 1962-ben épült ingatlan kedvező lokációjának köszönhetően minden szolgáltatást nyújtó intézménnyel körül van ölelve .
Főbb paraméterei:
-tégla alapon vályog falazatú
-a tető fa szerkezetű és síkpala héjazatú
-az elektromos és vízhálózat korszerűsítésre vár
-a nyílászáró korhű álapotú
-a padlózat hideg-melegburkolatú
-a víz hőmérsékletét villanybojler szabályozza
-az otthon melegét gázfűtés biztosítja konvektor hőleadó által , illetve cserépkályha
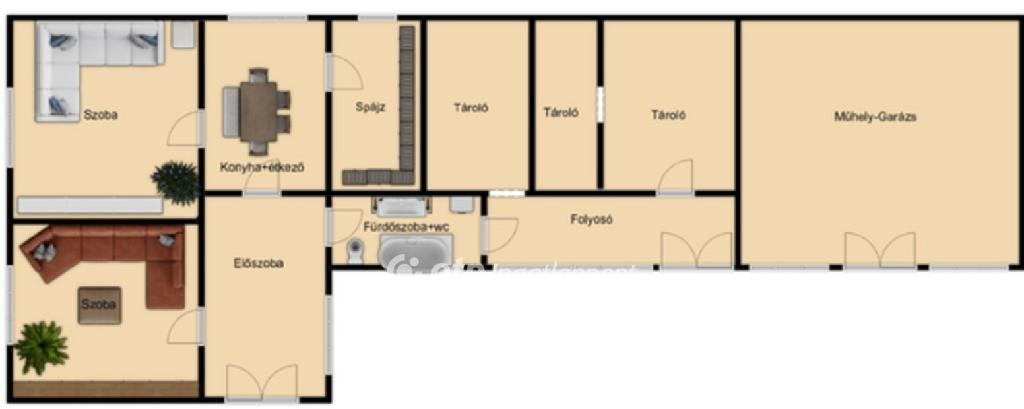
-a belső helyiségben : előszoba , 2 szoba , konyha+étkező , spájz , fürdőszoba +wc található. Alaprajz a képek között.
Az ingatlanból közvetlen átjárási lehetőség van a 31m2 melléképületbe amely szintén tégla alapon vályog falazattal rendelkezik , a tető cserép héjazatú .
Ebben az épületben folyosó és 3 tároló egység lett kialakítva.
Tovább haladva az ingatlan vonulatában 30m2 építménnyel találkozunk , amely műhelyként-garázsként is egyaránt funkcionálhat.
A folyamatosan karbantartott telek hátsó részében fúrt kút , füstölő , illetve 3 fakkos gazdálkodásra , állattartásra is alkalmas épület helyezkedik el.
Az utcafronton , illetve a telekhatárt jelző kerítések mindenfelől tökéletes állapotban vannak!
Per - teher és igénymentes ingatlan , amely azonnal bírtokba vehető !
Kedvezményes kamatozású lakásvásárlási és felújítási hitelek , BABAVÁRÓ ügyintézés az OTP hátterével irodánkban.
További kérdéseire készséggel válaszolok a hét bármely napján keressen bizalommal !
Az 1962-ben épült ingatlan kedvező lokációjának köszönhetően minden szolgáltatást nyújtó intézménnyel körül van ölelve .
Főbb paraméterei:
-tégla alapon vályog falazatú
-a tető fa szerkezetű és síkpala héjazatú
-az elektromos és vízhálózat korszerűsítésre vár
-a nyílászáró korhű álapotú
-a padlózat hideg-melegburkolatú
-a víz hőmérsékletét villanybojler szabályozza
-az otthon melegét gázfűtés biztosítja konvektor hőleadó által , illetve cserépkályha
-a belső helyiségben : előszoba , 2 szoba , konyha+étkező , spájz , fürdőszoba +wc található. Alaprajz a képek között.
Az ingatlanból közvetlen átjárási lehetőség van a 31m2 melléképületbe amely szintén tégla alapon vályog falazattal rendelkezik , a tető cserép héjazatú .
Ebben az épületben folyosó és 3 tároló egység lett kialakítva.
Tovább haladva az ingatlan vonulatában 30m2 építménnyel találkozunk , amely műhelyként-garázsként is egyaránt funkcionálhat.
A folyamatosan karbantartott telek hátsó részében fúrt kút , füstölő , illetve 3 fakkos gazdálkodásra , állattartásra is alkalmas épület helyezkedik el.
Az utcafronton , illetve a telekhatárt jelző kerítések mindenfelől tökéletes állapotban vannak!
Per - teher és igénymentes ingatlan , amely azonnal bírtokba vehető !
Kedvezményes kamatozású lakásvásárlási és felújítási hitelek , BABAVÁRÓ ügyintézés az OTP hátterével irodánkban.
További kérdéseire készséggel válaszolok a hét bármely napján keressen bizalommal !