Eladó Ház- házrész
Hirdetéskód: 9329302

Debrecen Kürtös utca 8 - OTP Ingatlanpont Iroda

Felújításhoz személyi kölcsönt keres? Kalkuláljon itt! →
FIX 3% Program

Ez a hirdetés megfelelhet a FIX 3%-os programnak.
Tudj meg többet a részletekről itt.

80.00 m2
ALAPTERÜLET
3
SZOBASZÁM
nincs megadva
ÉPÍTÉS
Gáz (konvektor)
FŰTÉS
  • CSOK igénybe vehető nem
  • Belső szintek 1
  • Tetőtér beépíthető nem
  • Építés éve 1970
  • Fűtés Gáz (konvektor)
  • Klíma nem
  • Szigetelt nem
Energetikai besorolás: Nincs meghatározva
A+++
A++
A+
A
B
C
D
E
F
G
H
I

Az MBH Bank személyi kölcsön ajánlata

Fizetett hirdetés
1 millió Ft
6 évre
20 585 Ft/hó
THM: 14.5%
Részletek →
2 millió Ft
6 évre
41 169 Ft/hó
THM: 14.5%
Részletek →
3 millió Ft
6 évre
61 754 Ft/hó
THM: 14.5%
Részletek →

A tájékoztatás nem teljes körű és nem minősül ajánlattételnek.

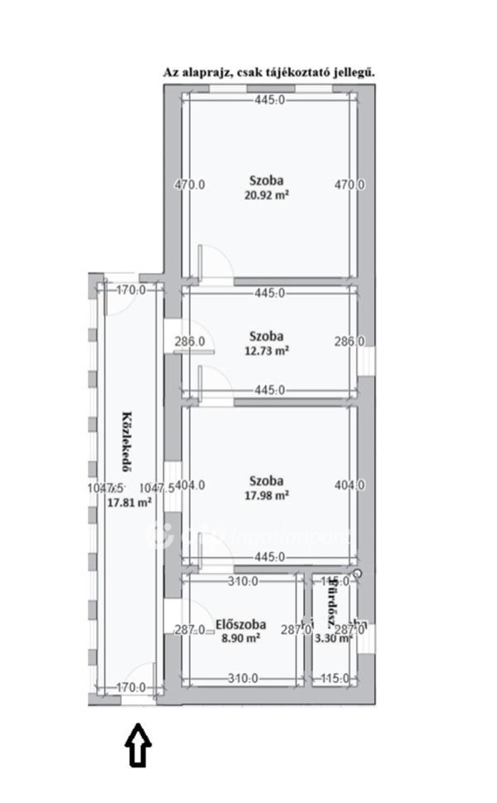
Az ingatlan leírása

Püspökladány egyik nyugodt utcájában, a Jókai utcában kínálunk megvételre egy 80 m2-es, háromszobás családi házat, amely 1218 m2-es telken helyezkedik el. Az ingatlan felújítandó állapotú, így kiváló lehetőség mindazok számára, akik saját elképzelésük szerint szeretnék kialakítani jövőbeli otthonukat.

Főbb paraméterek:
* Telek mérete: 1218 m2
* Lakóterület: 80 m2
* Építés éve: 1970
* Szobák száma: 3
* Falazat: vegyes (tégla és vályog)
* Alap: beton
* Tető: faszerkezet, cserépfedéssel
* Fűtés: gázkonvektor
* Szint: egyszintes
* Állapot: felújítandó

A nagy méretű telek gazdálkodásra, kertészkedésre vagy akár további fejlesztési lehetőségekre is alkalmas. Az ingatlan rendezett, jó szomszédságú környezetben található, a városközpont pedig rövid idő alatt elérhető.

Ha egy jó adottságokkal rendelkező, saját ízlés szerint alakítható családi házat keres nagy telekkel, ez az ingatlan kiváló választás lehet.

Energetikai tanúsítvány egyelőre nem áll rendelkezésre.

További kérdéseire készséggel válaszolok, akár hétvégén is. Kedvezményes kamatozású lakásvásárlási hitelek, valamint Babaváró és CSOK ügyintézése az OTP hátterével irodánkban. ám: M326636

Térkép

Ingatlan adásvétel ügyvédi díja
150 000 Ft
a hirdetésben szereplő ár alapján
  • A vételár 0,45%-a
  • Szerződéscsomag teljeskörű képviselettel
  • Ingyenes tulajdoni lap ellenőrzés
  • Az ÁFA-t már tartalmazza
Érdekel az ajánlat →
A tájékoztatás nem teljes körű és nem minősül ajánlattételnek. Minimum díj: 150 000 Ft, maximum díj: 600 000 Ft. A díj kizárólag lakóingatlan adásvételére vonatkozik.

A hirdető elérhetősége

Debrecen Kürtös utca 8 - OTP Ingatlanpont Iroda

Németi Gréta
+36 20 213