Eladó Ház- házrész
Hirdetéskód: 9285790

Be My Home

Felújításhoz személyi kölcsönt keres? Kalkuláljon itt! →
FIX 3% Program

Ez a hirdetés megfelelhet a FIX 3%-os programnak.
Tudj meg többet a részletekről itt.

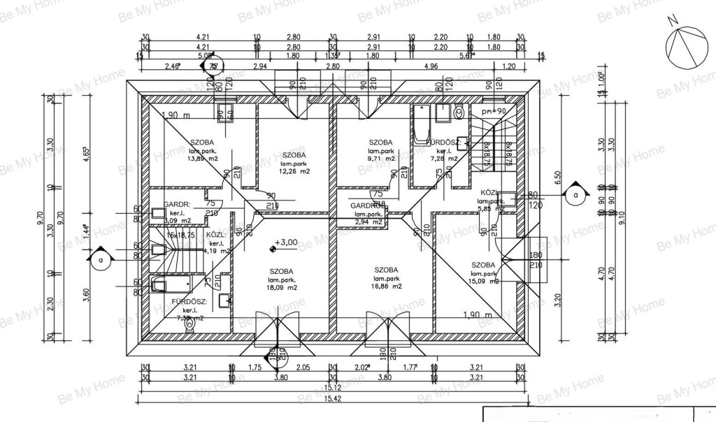
120.00 m2
ALAPTERÜLET
5
SZOBASZÁM
nincs megadva
ÉPÍTÉS
nincs megadva
FŰTÉS
  • Belső szintek 2
  • Építés éve 2026
Energetikai besorolás: Nincs meghatározva
A+++
A++
A+
A
B
C
D
E
F
G
H
I

Az MBH Bank személyi kölcsön ajánlata

Fizetett hirdetés
1 millió Ft
6 évre
20 585 Ft/hó
THM: 14.5%
Részletek →
2 millió Ft
6 évre
41 169 Ft/hó
THM: 14.5%
Részletek →
3 millió Ft
6 évre
61 754 Ft/hó
THM: 14.5%
Részletek →

A tájékoztatás nem teljes körű és nem minősül ajánlattételnek.

Az ingatlan leírása


Átadás 2026 szeptember
Hitel és CSOK igénybevehető rá!
Átadás 2026 szeptember

Az IKERHÁZ mindkét fele praktikus elosztású és eladó!
Nagy terasz(14nm) és 300 nm-es telekrész tartozik hozzá ikerház felenként.
Nettó 121,5 nm/120 nm lakó területtel rendelkeznek!

ELRENDEZÉS SZERINT:
- amerikaikonyhás nappali
- 4 db háló
- 2 db fürdőszoba
- teraszok, erkély

MŰSZAKI TARTALOM:
- 30-as síkra csiszolt Porotherm tégla
- grafitos 12 cm szigetelés
- BOSCH hőszívattyús fűtés és padlófűtés
- Klima Előkészítés
- 3 rétegű 5 légkamrás műanyag nyílászárók
- redőny előkészítés
- riasztó előkészítés
- minőségi burkolatok és szaniterek benne vannak az árban és műszaki tartalom szerint választhatóak
- CSOK és a hozzá tartozó kedvezmények igénybe vehetők

Az IKERHÁZAK magas műszaki tartalommal épülnek, az ár KULCSRAKÉSZ ÁR!
/konyhabútort nem tartalmazza /


Az Ár TARTALMAZZA:
-térkövezett kocsi beállót,
-utcafronti kerítést,
-hátsó támfalat
-motoros kaput
-felsorolt műszaki tartalmat

Amennyiben felkeltettem érdeklődését, várom hívását!

Térkép

A hirdető elérhetősége

Be My Home

Witek Krisztina
+36 20 412