Eladó Ház- házrész
Hirdetéskód: 9300209
OTP Ingatlanpont Siófok
Felújításhoz személyi kölcsönt keres? Kalkuláljon itt! →110.00 m2
ALAPTERÜLET2
SZOBASZÁMnincs megadva
ÉPÍTÉSnincs megadva
FŰTÉS- CSOK igénybe vehető nem
- Tetőtér beépíthető nem
- Építés éve 1960
- Klíma nem
- Szigetelt nem
A+++
A++
A+
A
B
C
D
E
F
G
H
I
Az ingatlan leírása
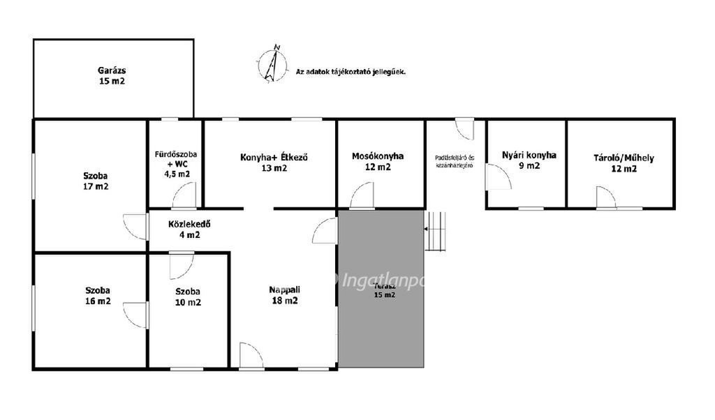
Pincehelyen eladó egy 110 m2-es, téglaépítésű, szépen felújított és kiváló állapotú családi ház, amely egy közel 3000 m2-es telken helyezkedik el. A klasszikus kádárkocka jellegű ingatlant praktikus elrendezésűvé tették: három szoba, nappali,konyha és mosókonyha került kialakításra benne. A ház igényes burkolatokat és festést kapott, a modern, jól felszerelt konyha pedig kényelmes és esztétikus teret biztosít a mindennapokhoz. Az ingatlan gondosan karbantartott, rendezett állapotú, így egy igazán otthonos, azonnal költözhető házról van szó.
Az ingatlan műszaki felújításon is átesett, a villanyvezeték-hálózat teljesen ki lett cserélve, valamint a víz- és szennyvízvezetékek is megújultak. A nyílászárók korszerű műanyag kivitelűek, szúnyoghálóval és redőnnyel felszerelve. A komfortérzetről többféle fűtési lehetőség gondoskodik: gázfűtés, fa tüzelésű központi rendszer, valamint két darab hűtő-fűtő klíma áll rendelkezésre. A padlás szigetelést kapott.
A tágas, 3000 m2-es telek kiváló lehetőséget nyújt kertészkedésre, gazdálkodásra. Az ingatlan állapota valóban kiemelkedően jó, a felújításnak köszönhetően az új tulajdonos számára egy kényelmes, azonnal birtokba vehető otthont kínál. Per- és tehermentes, megfelel az Otthon Start program feltételeinek.
Az ingatlan műszaki felújításon is átesett, a villanyvezeték-hálózat teljesen ki lett cserélve, valamint a víz- és szennyvízvezetékek is megújultak. A nyílászárók korszerű műanyag kivitelűek, szúnyoghálóval és redőnnyel felszerelve. A komfortérzetről többféle fűtési lehetőség gondoskodik: gázfűtés, fa tüzelésű központi rendszer, valamint két darab hűtő-fűtő klíma áll rendelkezésre. A padlás szigetelést kapott.
A tágas, 3000 m2-es telek kiváló lehetőséget nyújt kertészkedésre, gazdálkodásra. Az ingatlan állapota valóban kiemelkedően jó, a felújításnak köszönhetően az új tulajdonos számára egy kényelmes, azonnal birtokba vehető otthont kínál. Per- és tehermentes, megfelel az Otthon Start program feltételeinek.