Eladó Ház- házrész
Hirdetéskód: 9249201

Duna House - Új-Lak Bázis Kft.

FIX 3% Program

Ez a hirdetés megfelelhet a FIX 3%-os programnak.
Tudj meg többet a részletekről itt.

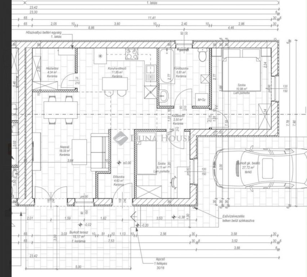
66.00 m2
ALAPTERÜLET
3
SZOBASZÁM
nincs megadva
ÉPÍTÉS
nincs megadva
FŰTÉS
  • CSOK igénybe vehető nem
  • Tetőtér beépíthető nem
  • Építés éve 2027
  • Klíma nem
  • Szigetelt nem
Energetikai besorolás: Nincs meghatározva
A+++
A++
A+
A
B
C
D
E
F
G
H
I

Az ingatlan leírása

ELADÓ ÚJ ÉPÍTÉSŰ 3 szobás 67, m2-es IKERHÁZ Pilisen. OTTHON START HITEL IGÉNYELHETŐ!PILIS LEGJOBB KIVITELEZŐJÉTŐL, ÁLMODD MEG TE IS SAJÁT OTTHONOD!Alapterület 67 m2Terasz:15.17 m2Telek területe: 400 m2Választható hideg és meleg burkolatok 700.000 Ft-ig teljes rétegrendben. Dekorfóliás ajtók 60.000 Ft-ig választhatók.Szaniterek: 250.000 Ft-igKialakítása: 2 szoba, tágas amerikai nappali konyha, háztartási helyiség, előtér, közlekedő, fürdő+wc, nyitott terasz.Több referenciamunka megtekinthető, minőségi munkák, több éves közös együttműködés.Teljes műszaki tartalom a helyszínen megtekinthető.EXTRA:-Barna színű betoncserép fedés, barna színű alumínium ereszcsatorna.-7x3 as térkő kocsibeálló( füst antracit) az árban-utcafronti kerítés és az elektromos kapu az árbanFűtést és a meleg vizet: 8,5 kw-os 1 fázisú hőszivattyú adja, padlófűtés mindenhol. 3,5 kw-os inverteres klíma az árban.Műszaki paraméterek:30 cm-es ytong teherhordó fal, 10 cm-es viablokk válaszfalak, 6 cm Eps homlokzati szigetelés.3 réteg műanyag fehér nyílászárók, több ponton záródó bejárati ajtó.Hőszigetelés:A padlóban 6 cm lépésálló EPS szigetelés készül a csatolt rétegrendek szerint. A pórusbeton falazat külső oldalán 6 cm EPS hőszigetelés kerül elhelyezésre, a vasbeton koszorúk előtt további 10 cm kiegészítő hőszigetelés elhelyezése szükséges, 30 cm fújt hőszigetelés a mennyezetre.Homlokzatképzés:Az épület homlokzati felületképzése törtfehér színű kapart nemesvakolat. A lábazat sötétbarna színű lábazati festék. Az épülettömeg megjelenése illeszkedik az utcaképbe, a színek és megjelenés megválasztásakor figyelembe lettek véve a hatályos helyi településképi rendelet előírásai.Budapest távolsága M4-es autópályán 25 perc, Vonattal 40 perc.CSOK plusz kedvezményes hitel igénybe vehető.Amennyiben felkeltettem érdeklődését, várom megtisztelő hívását.Ügyvédi közreműködés és hitelügyintézés egy helyen.

Térkép

A hirdető elérhetősége

Duna House - Új-Lak Bázis Kft.

Káplár Ildikó
+36 30 468