Eladó Ház- házrész
Hirdetéskód: 9219497
Duna House - Új-Lak Bázis Kft.
Ez a hirdetés megfelelhet a FIX 3%-os programnak.
Tudj meg többet a részletekről itt.
102.00 m2
ALAPTERÜLET3
SZOBASZÁMnincs megadva
ÉPÍTÉSnincs megadva
FŰTÉS- CSOK igénybe vehető nem
- Tetőtér beépíthető nem
- Építés éve 2023
- Klíma nem
- Szigetelt nem
A+++
A++
A+
A
B
C
D
E
F
G
H
I
Az ingatlan leírása
ELADÓ ÚJ ÉPÍTÉSŰ IKERHÁZ PILIS FREKVENTÁLT RÉSZÉN, VASÚTÁLLOMÁS KÖZELÉBEN!
AZ Ingatlan 102 m2 alapterületű egy 900 m2-es telken helyezkedik el. További terasz mérete 20m2. Kiváló lakóközösség zárt Lakóparkban helyezkedik el, új építésű, pár éves ingatlanok szomszédságában.
CSOK, 5%-os áfa, illetékmentesség igénybe vehető.
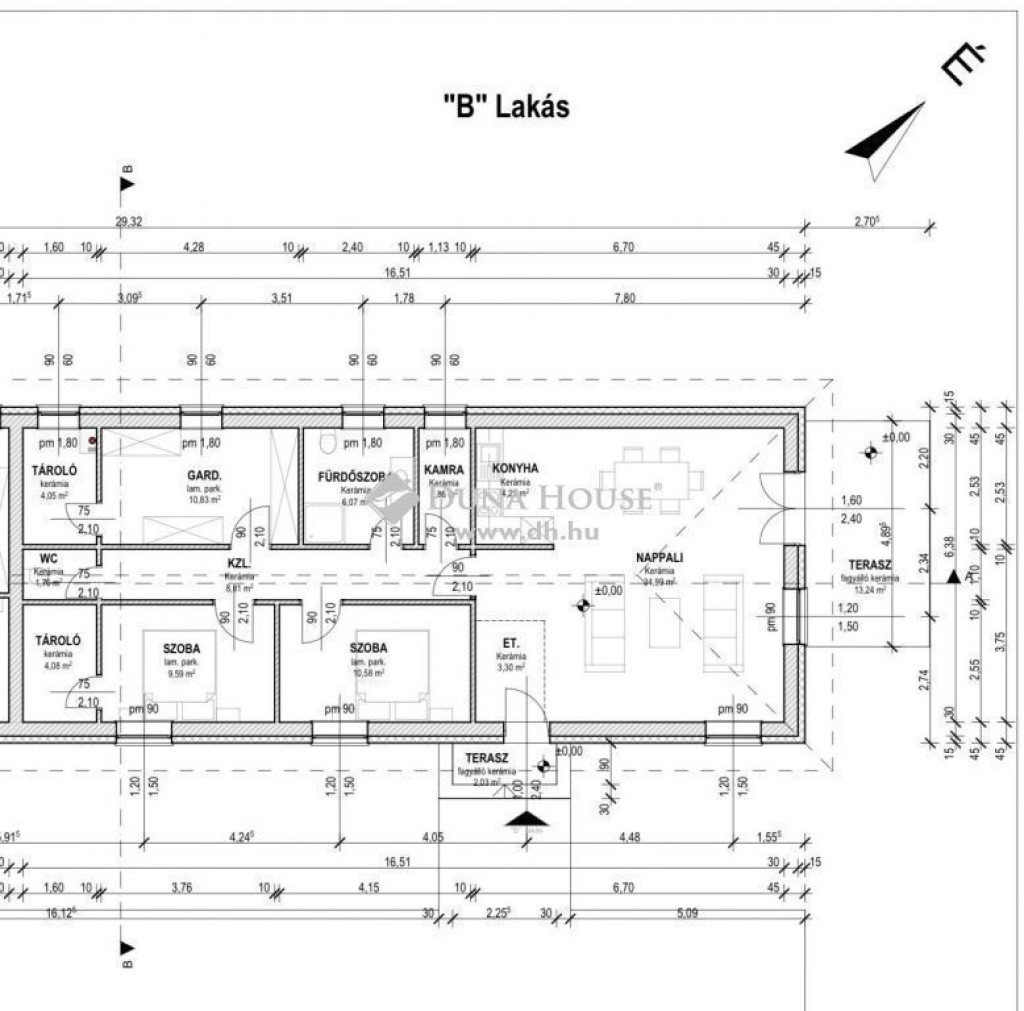
Kialakítása: 2 szoba, tágas 40 m2-es amerikai nappali konyha, kamra, fürdő+wc, külön wc, gardrób, 2 tároló.
Fűtést gázcirkó biztosítja, mindenhol padlófűtés. Nappaliban 3,5 kw-os inverteres klíma.
EXTRA: viacolor beálló, redőny, Geberit márkájú wc a falba süllyesztve.
Választható hideg és meleg burkolatok 900.000 Ft-ig telje réteg rendben. Dekor fóliás ajtók 60.000 Ft-ig választhatók.
Szigetelés 15 cm, tető szigetelés 30 cm. Sok referencia munkát tudok mutatni, nézzük meg együtt a helyszínt és a kész lakóingatlanokat.
Homlokzat: antracit lábazat, fehér falak, antracit tető.
Közelben: pár perc gyalogosan Vasútállomás, Gyógyszertár... bevásárlási lehetőségek, Iskola, Óvoda.
Budapest autóval M4-es autópálya 25 perc, vonattal Budapest Nyugati Pályaudvarig 50 perc.
Átadás: 2024. augusztus Megbízható kivitelező, több éve a piacon.
Amennyiben felkeltettem érdeklődését, várom megtisztelő hívását a hét bármely napján.
AZ Ingatlan 102 m2 alapterületű egy 900 m2-es telken helyezkedik el. További terasz mérete 20m2. Kiváló lakóközösség zárt Lakóparkban helyezkedik el, új építésű, pár éves ingatlanok szomszédságában.
CSOK, 5%-os áfa, illetékmentesség igénybe vehető.
Kialakítása: 2 szoba, tágas 40 m2-es amerikai nappali konyha, kamra, fürdő+wc, külön wc, gardrób, 2 tároló.
Fűtést gázcirkó biztosítja, mindenhol padlófűtés. Nappaliban 3,5 kw-os inverteres klíma.
EXTRA: viacolor beálló, redőny, Geberit márkájú wc a falba süllyesztve.
Választható hideg és meleg burkolatok 900.000 Ft-ig telje réteg rendben. Dekor fóliás ajtók 60.000 Ft-ig választhatók.
Szigetelés 15 cm, tető szigetelés 30 cm. Sok referencia munkát tudok mutatni, nézzük meg együtt a helyszínt és a kész lakóingatlanokat.
Homlokzat: antracit lábazat, fehér falak, antracit tető.
Közelben: pár perc gyalogosan Vasútállomás, Gyógyszertár... bevásárlási lehetőségek, Iskola, Óvoda.
Budapest autóval M4-es autópálya 25 perc, vonattal Budapest Nyugati Pályaudvarig 50 perc.
Átadás: 2024. augusztus Megbízható kivitelező, több éve a piacon.
Amennyiben felkeltettem érdeklődését, várom megtisztelő hívását a hét bármely napján.