Eladó Ház- házrész
Hirdetéskód: 9286920

-

Felújításhoz személyi kölcsönt keres? Kalkuláljon itt! →
FIX 3% Program

Ez a hirdetés megfelelhet a FIX 3%-os programnak.
Tudj meg többet a részletekről itt.

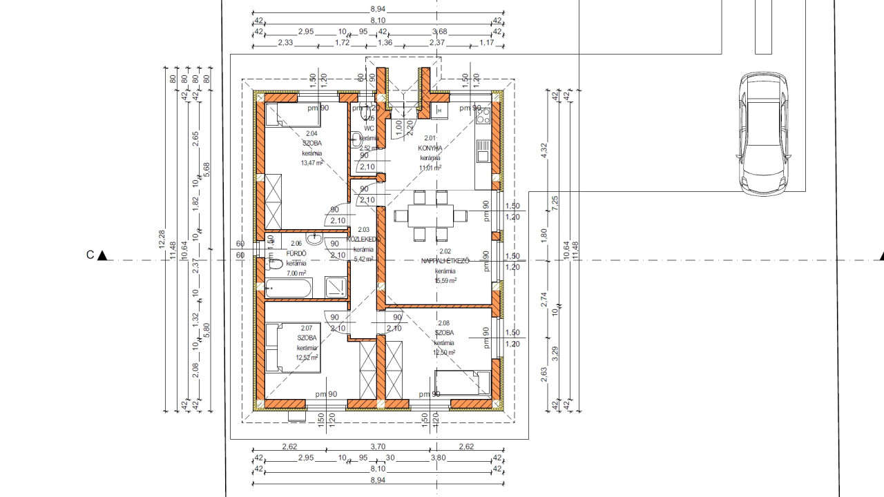
80.00 m2
ALAPTERÜLET
4
SZOBASZÁM
Tégla
ÉPÍTÉS
Hőszivattyú
FŰTÉS
  • Belső szintek 1
  • Kilátás Kertre néző
  • Ingatlan komfort Összkomfortos
  • Parkolási lehetőség Udvari beálló
  • Építés éve 2026
  • Fűtés Hőszivattyú
  • Építőanyag Tégla
  • Szigetelt igen
  • Víz telken belül
  • Csatorna telken belül
  • Gáz telken belül
  • Villany telken belül

Energetikai besorolás: A+

A+++
A++
A+
A
B
C
D
E
F
G
H
I

Az MBH Bank személyi kölcsön ajánlata

Fizetett hirdetés
1 millió Ft
6 évre
20 585 Ft/hó
THM: 14.5%
Részletek →
2 millió Ft
6 évre
41 169 Ft/hó
THM: 14.5%
Részletek →
3 millió Ft
6 évre
61 754 Ft/hó
THM: 14.5%
Részletek →

A tájékoztatás nem teljes körű és nem minősül ajánlattételnek.

Az ingatlan leírása

Perkátán, aszfaltozott utcában, sík ~ 1000 m2-es telekkel rendelkező, 80 m2 hasznos lakóterületű, 3 szoba + nappalis családi ház! A szerződéskötéstől számított 6 hónapon belül költözhető.


A belső nyílászárók, burkolatok, szaniterek választhatók így a belső befejező munkák az új tulajdonos ízlésének megfelelően készülnek majd el.


A külső nyílászárók 3 rétegű üvegezésű ablakok lesznek, a külső falak 30 cm-es hőszigetelő téglából épülnek amit kívülről 12 cm-es szigeteléssel burkolnak be.


A ház fűtése hőszivattyúkészülékről működik majd padlófűtés hőleadással.


Az ingatlan csendes, rendezett környezetben, a község belterületén található, könnyen (végig aszfaltozott úton) megközelíthető a 6-os főút és M6-os autópálya irányából egyaránt 10 perc alatt elérhető.


Perkáta nagyközség Dunaújvárostól 12 km-re, Székesfehérvártól 36 km-re helyezkedik el.


Az ingatlan közvetlen környezet rendezett. Jellemzően életvitel szerűen lakott családi házak határozzák meg az utca képet. Autóbusz megálló a közelben 5 perc séta távolságban megtalálható.


Ha bármilyen kérdésed lenne az ingatlannal kapcsolatban, ne habozz felvenni velünk a kapcsolatot. Ügyfeleink bizalommal fordulhatnak hozzánk, hiszen készséggel állunk rendelkezésükre. Az ingatlan bemutatása mellett a mi célunk az, hogy segítsük megtalálni az ideális otthont. Akár készpénzből akár államilag támogatott vagy szabad piaci hitelt szeretnél felvenni a vásárláshoz, tanácsadó kollégánk díjmentes, banksemleges ügyintézéssel áll rendelkezésre. Igény esetén ügyvédi segítséget is ajánlunk a teljes ügymenet jogi lebonyolításához.

Térkép

Ingatlan adásvétel ügyvédi díja
269 550 Ft
a hirdetésben szereplő ár alapján
  • A vételár 0,45%-a
  • Szerződéscsomag teljeskörű képviselettel
  • Ingyenes tulajdoni lap ellenőrzés
  • Az ÁFA-t már tartalmazza
Érdekel az ajánlat →
A tájékoztatás nem teljes körű és nem minősül ajánlattételnek. Minimum díj: 150 000 Ft, maximum díj: 600 000 Ft. A díj kizárólag lakóingatlan adásvételére vonatkozik.

A hirdető elérhetősége

Érdi Ingatlan Iroda

Verő Ákos
+36 70 679