Eladó Ház- házrész
Hirdetéskód: 9202830

CasaNetWork Balatonalmádi

245 m2
ALAPTERÜLET
0
SZOBASZÁM
nincs megadva
ÉPÍTÉS
nincs megadva
FŰTÉS
  • CSOK igénybe vehető nem
  • Tetőtér beépíthető nem
  • Építés éve 2015
  • Klíma nem
  • Szigetelt nem
Energetikai besorolás: Nincs meghatározva
A+++
A++
A+
A
B
C
D
E
F
G
H
I

Az ingatlan leírása

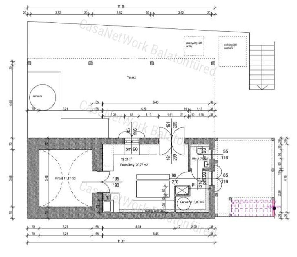
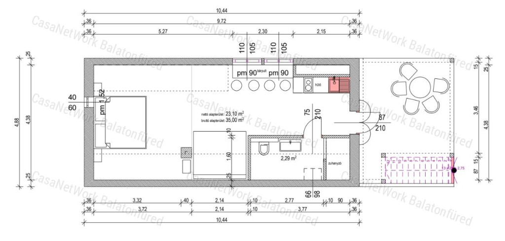
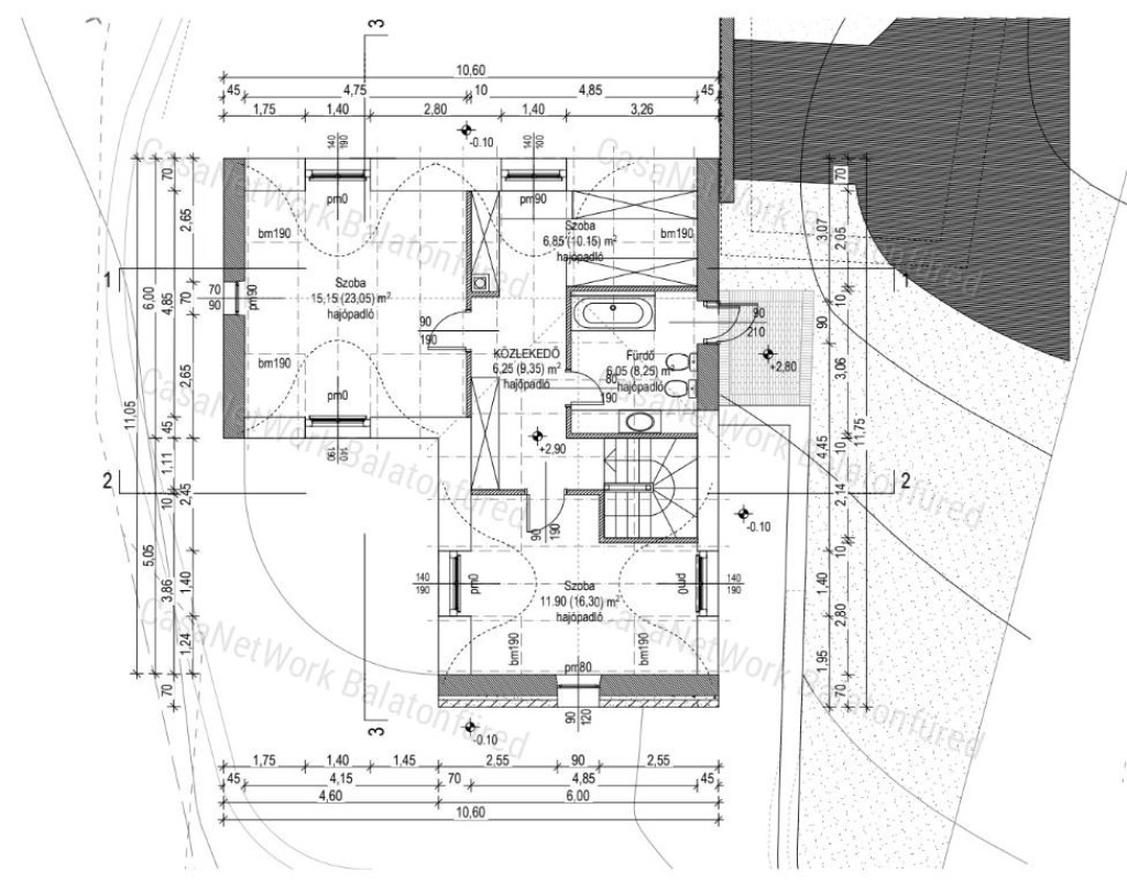
A CASANETWORK BALATONALMÁDI Ingatlaniroda eladásra kínálja a 2697. referenciaszámú családi házát a Balaton-felvidéken!2,4 ha öko-birtok a Balaton-felvidéki Nemzeti Park tetején, teljesen páratlan, lélegzetelállító Balatoni panorámával, közel 400 m tengerszint feletti magasságon, ahonnan a Tihanyi-félszigetet már felülről, madártávlatból látjuk.A hihetetlen panoráma által nyújtott élményt, megdöbbenést tovább fokozza a birtokot körülölelő békés, gazdag, buja természet, érintetlen erdők.A területen 2 db főépület - egy családi ház és egy vendégház - valamint egy szaunaház és egy 40 négyzetméteres fa szerkezetű istálló található.A teljes birtok 3 különálló helyrajzi számú, de egymással szomszédos telekből áll. A birtokot az eladó egy tranzakció keretében szeretné értékesíteni, ugyanakkor természetesen nyitott arra, hogy a különböző helyrajzi számú területek különálló tulajdonosok kezébe kerüljenek. Ez a lehetőség akkor lehet érdekes, ha birtokot például 2 család vagy baráti társaság szeretné megvásárolni.A különálló helyrajzi számú területek főbb jellemzői:1.  6621 m2 terület, nettó 111 m2 családi házzal2.  4413 m2 terület, 80 m2 vendégházzal3. 12611 m2 erdő, legelőIrodánk az ingatlan vásárlással összefüggő teljes körű ügyvédi, ill. díjmentes, banksemleges hitel-ügyintézéssel áll rendelkezésére.CasaNetwork - A civilizált ingatlanértékesítés artériája.Várom megtisztelő érdeklődését!Érdi Gábor

Térkép

A hirdető elérhetősége

CasaNetWork Balatonalmádi

Kelemen Linda
+36 30 180