Eladó Ház- házrész
Hirdetéskód: 9256559
Great Home - Pécs
Ez a hirdetés megfelelhet a FIX 3%-os programnak.
Tudj meg többet a részletekről itt.
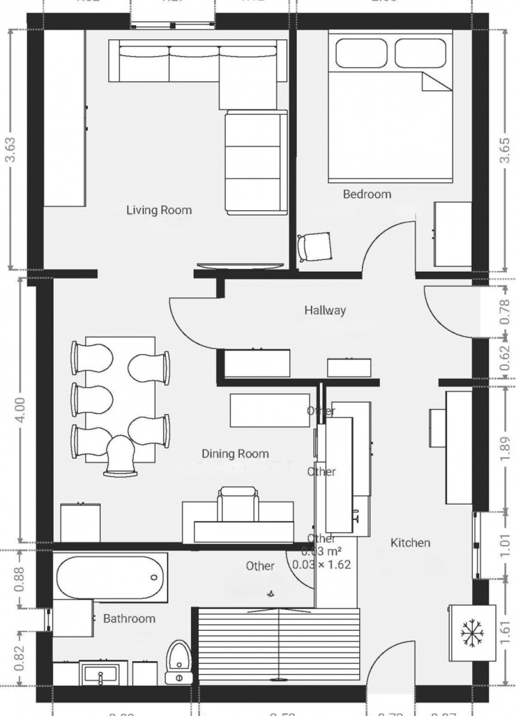
120.00 m2
ALAPTERÜLET4
SZOBASZÁMnincs megadva
ÉPÍTÉSGáz (cirkó)
FŰTÉS- CSOK igénybe vehető nem
- Tetőtér beépíthető nem
- Fűtés Gáz (cirkó)
- Klíma nem
- Szigetelt nem
A+++
A++
A+
A
B
C
D
E
F
G
H
I
Az ingatlan leírása
Pécs- régi kertváros részén, a Siklósi út és a Táncsics Mihály utca közötti részen eladó egy 424 m2- es telken elhelyezkedő, 120 m2- es, 4 szobás, felújított családi ház!
Az elmúlt 5 évben az alábbi felújítások valósultak meg:
- Tető felújítás: teljesen új léc, párazáró fólia és Bramac cserép került fel.
- Bosch 3000 -es, kondenzációs kazán beépítése, mely a fűtésért és melegvízellátásért felel.
- Mindkét fürdőszoba teljes felújításon esett át (víz, szaniterek és burkolatok).
- A földszinti padlóburkolatok teljes cseréje megtörtént, az emeleten részben.
- Az emeleten új ROTO tetőtéri ablakok kerültek beépítésre.
- Mindkét konyhabútor cserélve lett.
- Melléképület szigetelése, szomszéd oldali kerítés és házfal színezése, féltető építése a fedett beállóhoz, stb.
További információk a házról:
- 10 cm-es Homlokzati szigetelés van + tetőtér szigetelés.
- A villamosság is korszerűsített már, réz vezetékek mindenhol.
- Műanyag nyílászárók 10-12 éve.
- Tetőtér beépítés történt 15 éven belül, tetőszerkezet akkor lett felújítva.
- Rendezett, növényekkel beültetett, privát kert.
- A helyiségek elrendezéséből és a két oldali bejárat miatt könnyen kialakítható akár két külön lakrész, vagy lakás is!
Amit még érdemes kiemelni:
- Közelben számtalan bevásárlási lehetőség: Lidl, Interspar, pékség, hentes, stb.
- Buszmegállók elérhető közelségben
- Utcán ingyenes parkolás, udvaron fedett megálló, mely garázzsá alakítható.
- Nagyon kedvező a fűtés díja, havi 12 ezer forintból megoldható!
Amennyiben ebben a szuper ingatlanban meglátta saját otthonát, keressen bizalommal!
Az elmúlt 5 évben az alábbi felújítások valósultak meg:
- Tető felújítás: teljesen új léc, párazáró fólia és Bramac cserép került fel.
- Bosch 3000 -es, kondenzációs kazán beépítése, mely a fűtésért és melegvízellátásért felel.
- Mindkét fürdőszoba teljes felújításon esett át (víz, szaniterek és burkolatok).
- A földszinti padlóburkolatok teljes cseréje megtörtént, az emeleten részben.
- Az emeleten új ROTO tetőtéri ablakok kerültek beépítésre.
- Mindkét konyhabútor cserélve lett.
- Melléképület szigetelése, szomszéd oldali kerítés és házfal színezése, féltető építése a fedett beállóhoz, stb.
További információk a házról:
- 10 cm-es Homlokzati szigetelés van + tetőtér szigetelés.
- A villamosság is korszerűsített már, réz vezetékek mindenhol.
- Műanyag nyílászárók 10-12 éve.
- Tetőtér beépítés történt 15 éven belül, tetőszerkezet akkor lett felújítva.
- Rendezett, növényekkel beültetett, privát kert.
- A helyiségek elrendezéséből és a két oldali bejárat miatt könnyen kialakítható akár két külön lakrész, vagy lakás is!
Amit még érdemes kiemelni:
- Közelben számtalan bevásárlási lehetőség: Lidl, Interspar, pékség, hentes, stb.
- Buszmegállók elérhető közelségben
- Utcán ingyenes parkolás, udvaron fedett megálló, mely garázzsá alakítható.
- Nagyon kedvező a fűtés díja, havi 12 ezer forintból megoldható!
Amennyiben ebben a szuper ingatlanban meglátta saját otthonát, keressen bizalommal!