Eladó Ház- házrész
Hirdetéskód: 9190259
Pécs Rákóczi út 19 - OTP Ingatlanpont Iroda
1376 m2
ALAPTERÜLET12
SZOBASZÁMnincs megadva
ÉPÍTÉSnincs megadva
FŰTÉS- CSOK igénybe vehető nem
- Tetőtér beépíthető nem
- Építés éve 2000
- Klíma nem
- Szigetelt nem
A+++
A++
A+
A
B
C
D
E
F
G
H
I
Az ingatlan leírása
Kiváló befektetési lehetőség Pécsett!
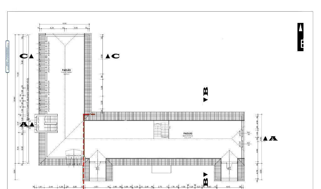
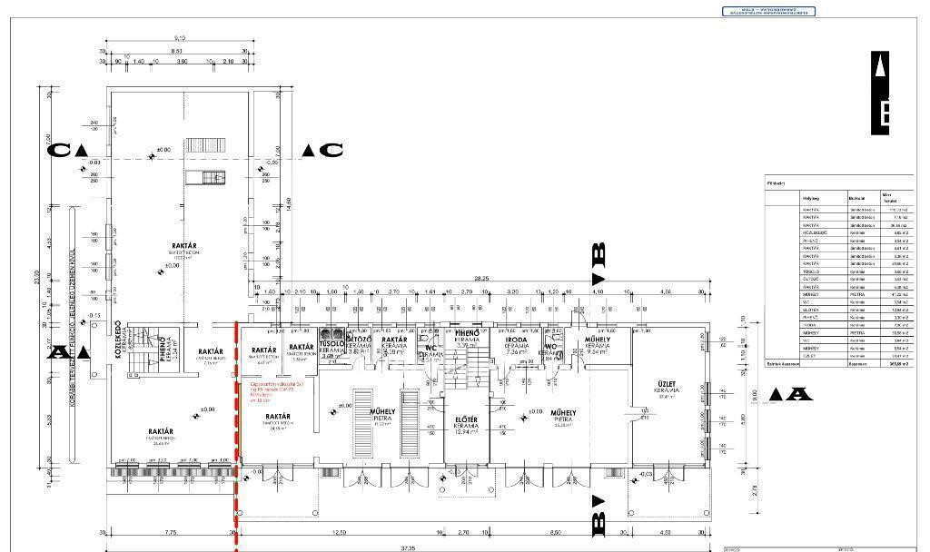
Eladó egy 1.055 m2-es, kétszintes ingatlan az Ürögi városrészen, amely 1.376 m2-es telken helyezkedik el. Az épület számos hasznosítási lehetőséget kínál: lakások, szálláshely, munkásszálló, iroda, kórház vagy egyéb üzleti célú ingatlan is kialakítható belőle.
Eredetileg egy szolgáltató központ épült volna, de a projekt nem valósult meg, így jelenleg műhelyként és raktárként funkcionál.
Az ingatlan jellemzői:
- Alagsor: nagyméretű raktárak
- Földszint: 2 db aknás garázs, iroda, üzlethelyiségek
- Emelet: vizesblokkok, különböző méretű helyiségek
- Tetőtér: igény esetén beépíthető
- Az épület egyik részében már hőszigetelt műanyag nyílászárók is beépítésre kerültek.
A részben szerkezetkész, részben emelt szinten elkészült ingatlan rengeteg lehetőséget kínál a jövőbeli tulajdonos számára.
Ne hagyja ki ezt a kivételes lehetőséget!
További információért keressen bizalommal, és tekintse meg személyesen is!
M294781
Eladó egy 1.055 m2-es, kétszintes ingatlan az Ürögi városrészen, amely 1.376 m2-es telken helyezkedik el. Az épület számos hasznosítási lehetőséget kínál: lakások, szálláshely, munkásszálló, iroda, kórház vagy egyéb üzleti célú ingatlan is kialakítható belőle.
Eredetileg egy szolgáltató központ épült volna, de a projekt nem valósult meg, így jelenleg műhelyként és raktárként funkcionál.
Az ingatlan jellemzői:
- Alagsor: nagyméretű raktárak
- Földszint: 2 db aknás garázs, iroda, üzlethelyiségek
- Emelet: vizesblokkok, különböző méretű helyiségek
- Tetőtér: igény esetén beépíthető
- Az épület egyik részében már hőszigetelt műanyag nyílászárók is beépítésre kerültek.
A részben szerkezetkész, részben emelt szinten elkészült ingatlan rengeteg lehetőséget kínál a jövőbeli tulajdonos számára.
Ne hagyja ki ezt a kivételes lehetőséget!
További információért keressen bizalommal, és tekintse meg személyesen is!
M294781