Eladó Ház- házrész
Hirdetéskód: 9299337
Pécs Király utca 75/5 - OTP Ingatlanpont Iroda
Felújításhoz személyi kölcsönt keres? Kalkuláljon itt! →
Ez a hirdetés megfelelhet a FIX 3%-os programnak.
Tudj meg többet a részletekről itt.
70.00 m2
ALAPTERÜLET2
SZOBASZÁMnincs megadva
ÉPÍTÉSGáz (cirkó)
FŰTÉS- CSOK igénybe vehető nem
- Tetőtér beépíthető nem
- Építés éve 1960
- Fűtés Gáz (cirkó)
- Klíma nem
- Szigetelt nem
A+++
A++
A+
A
B
C
D
E
F
G
H
I
Az ingatlan leírása
LEHETŐSÉG A ZSOLNAY NEGYEDNÉL! ? Saját kert + Garázs!
Eladó egy átlagos állapotú, szerkezetileg stabil, jó adottságokkal rendelkező családi ház Pécsett, a Kiss Ernő utcában (Zsolnay-domb)!
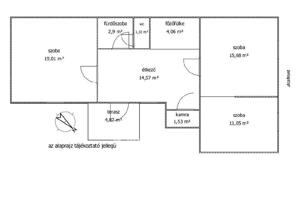
? 70 m? lakótér: 2,5 szoba, konyha, étkező, spájz.
? Dupla fűtés: Gázkazán + vegyestüzelésű kazán (rugalmas rezsi!).
? 480 m?-es kert: Pont akkora, amit még élvezet gondozni.
? 21 m?-es garázs: A kert végében, külön helyrajzi számmal, és villanyórával (benne van az árban!).
? Melléképületek: Tároló és kazánház az udvarban.
jelenleg főzőfülke van a házban. Kisebb átalakítással a kamra mellé lehet telepíteni konyhát.
Az udvar két részre van bontva pl. kutyatartás miatt lehet érdekes. Az első udvarban kisebb pince található.
Buszmegálló: 1 perc gyalog!
Zsolnay negyed: 3 perc séta!
Ideális választás családoknak vagy befektetésnek a kulturális negyed közelsége miatt. Alakítsad saját ízlésedre és varázsolj belőle modern otthont! A ház 1970. előtt épült.
Referenciaszám: M324682
58700000 Ft
Eladó egy átlagos állapotú, szerkezetileg stabil, jó adottságokkal rendelkező családi ház Pécsett, a Kiss Ernő utcában (Zsolnay-domb)!
? 70 m? lakótér: 2,5 szoba, konyha, étkező, spájz.
? Dupla fűtés: Gázkazán + vegyestüzelésű kazán (rugalmas rezsi!).
? 480 m?-es kert: Pont akkora, amit még élvezet gondozni.
? 21 m?-es garázs: A kert végében, külön helyrajzi számmal, és villanyórával (benne van az árban!).
? Melléképületek: Tároló és kazánház az udvarban.
jelenleg főzőfülke van a házban. Kisebb átalakítással a kamra mellé lehet telepíteni konyhát.
Az udvar két részre van bontva pl. kutyatartás miatt lehet érdekes. Az első udvarban kisebb pince található.
Buszmegálló: 1 perc gyalog!
Zsolnay negyed: 3 perc séta!
Ideális választás családoknak vagy befektetésnek a kulturális negyed közelsége miatt. Alakítsad saját ízlésedre és varázsolj belőle modern otthont! A ház 1970. előtt épült.
Referenciaszám: M324682
58700000 Ft