Eladó Ház- házrész
Hirdetéskód: 9204129
Pécs Rákóczi út 19 - OTP Ingatlanpont Iroda
255 m2
ALAPTERÜLET9
SZOBASZÁMnincs megadva
ÉPÍTÉSnincs megadva
FŰTÉS- CSOK igénybe vehető nem
- Tetőtér beépíthető nem
- Építés éve 1956
- Klíma nem
- Szigetelt nem
A+++
A++
A+
A
B
C
D
E
F
G
H
I
Az ingatlan leírása
Eladó ház | Pécs, Mecsekoldal
| Alapterület: 255 négyzetméter | Szobák száma: 9
Igazi különlegesség!
Elegáns, háromszintes villa eladó Pécsen, a patinás Mecsekoldalon. A Pálos rendi Szent Imre templom 400 méterre, a Széchenyi tér 700 méterre található.
Jellemzők:
- Földszint: 52 négyzetméter
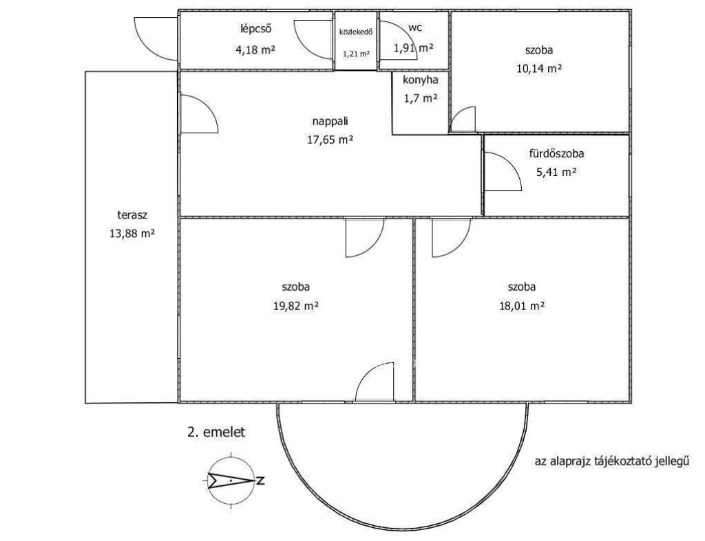
- 1. emelet: 105 négyzetméter
- 2. emelet: 98 négyzetméter (külön bejárat, gáz cirkófűtéssel)
- Összes hasznos lakótér: 255 négyzetméter
- Telek mérete: 728 négyzetméter
- 3 lakószint, mindegyik külön bejárattal
- 3 nagy terasz (kettő 12,30 négyzetméter, egy 14,48 négyzetméter)
- Felújítás: részleges korszerűsítés 2015-ben (műanyag nyílászárók, redőnnyel)
- 4 zárt, utcafronti garázs külön megvásárolható (15 000 000 Ft/db, összesen 60 négyzetméter)
- Utcafronti és hátsó kertkapcsolat
- Kiváló elhelyezkedés: 5 perc sétára a belvárostól, csendes zöldövezetben
- Örök panoráma Pécs városára, a Tenkes hegyre, tiszta időben horvátországi hegyekre is
Főbb jellemzők:
- Három külön lakóegység ? ideális többgenerációs otthonnak, kiadásra vagy vállalkozás számára
- Intim kert, további fejlesztési lehetőségekkel
- Azonnal birtokba vehető
- Kiváló befektetési lehetőség a város egyik legkeresettebb részén
- Hasznosítás: exkluzív családi otthon, vendégház, rövid távú kiadás, céges központ, magánklinika
- Közelben éttermek, kávézók, iskolák, egyetemek, kulturális és történelmi nevezetességek
- Kiváló tömegközlekedés
Kapcsolat & Megtekintés: Az ingatlan azonnal elérhető, megtekintésre a hét bármely napján lehetőség van. További 2 garázs is megvásárolható, melyek a hátsó kertkapunál találhatók.
Kivételes lehetőség azok számára, akik értéket, rugalmasságot és biztos befektetést keresnek prémium elhelyezkedéssel.
Referenciaszám: M316582
________________________________________
For Sale: Villa in Pécs, Mecsekoldal
| Size: 255 m2 | Number of Rooms: 9
A true uniqueness!
An elegant three-storey villa is for sale in the prestigious Mecsek Hills of Pécs. The Pálos Szent Imre Church is 400 meters away, Széchenyi Square is 700 meters away.
Features:
- Ground floor: 52 m2
- 1st floor: 105 m2
- 2nd floor: 98 m?2(separate entrance, gas central heating)
- Total useful living area: 255 m2
- Land size: 728 m2
- Three residential levels, each with a separate entrance
- 3 large terraces (two 12.30 m?, one 14.48 m2)
- Partial modernization in 2015 (plastic-framed windows with shutters)
- 4 closed street-access garages available for separate purchase (15,000,000 HUF/each, 60 m2 total)
- Street and back garden access
- Prime location: 5 minutes? walk from downtown, in a quiet, green area
- Panoramic, unobstructed views over Pécs, the Tenkes hill, and even Croatian mountains on clear days
Key features:
- Three separate residential units 2 ideal for multigenerational living, rental or business
- Intimate garden with further development potential
- Immediately available
- Excellent investment opportunity in one of the most sought-after areas of the city
- Utilization: exclusive family home, guesthouse, short-term rental, company headquarters, private clinic
- Nearby restaurants, cafés, schools, universities, and cultural & historical landmarks
- Excellent public transport connections
Contact & Viewing: The property is immediately available and can be viewed any day of the week. Additional 2 garages can be purchased at the back garden entrance.
An exceptional opportunity for those seeking value, flexibility, and a secure investment with prime location.
Reference number: M316582
329000000 Ft
| Alapterület: 255 négyzetméter | Szobák száma: 9
Igazi különlegesség!
Elegáns, háromszintes villa eladó Pécsen, a patinás Mecsekoldalon. A Pálos rendi Szent Imre templom 400 méterre, a Széchenyi tér 700 méterre található.
Jellemzők:
- Földszint: 52 négyzetméter
- 1. emelet: 105 négyzetméter
- 2. emelet: 98 négyzetméter (külön bejárat, gáz cirkófűtéssel)
- Összes hasznos lakótér: 255 négyzetméter
- Telek mérete: 728 négyzetméter
- 3 lakószint, mindegyik külön bejárattal
- 3 nagy terasz (kettő 12,30 négyzetméter, egy 14,48 négyzetméter)
- Felújítás: részleges korszerűsítés 2015-ben (műanyag nyílászárók, redőnnyel)
- 4 zárt, utcafronti garázs külön megvásárolható (15 000 000 Ft/db, összesen 60 négyzetméter)
- Utcafronti és hátsó kertkapcsolat
- Kiváló elhelyezkedés: 5 perc sétára a belvárostól, csendes zöldövezetben
- Örök panoráma Pécs városára, a Tenkes hegyre, tiszta időben horvátországi hegyekre is
Főbb jellemzők:
- Három külön lakóegység ? ideális többgenerációs otthonnak, kiadásra vagy vállalkozás számára
- Intim kert, további fejlesztési lehetőségekkel
- Azonnal birtokba vehető
- Kiváló befektetési lehetőség a város egyik legkeresettebb részén
- Hasznosítás: exkluzív családi otthon, vendégház, rövid távú kiadás, céges központ, magánklinika
- Közelben éttermek, kávézók, iskolák, egyetemek, kulturális és történelmi nevezetességek
- Kiváló tömegközlekedés
Kapcsolat & Megtekintés: Az ingatlan azonnal elérhető, megtekintésre a hét bármely napján lehetőség van. További 2 garázs is megvásárolható, melyek a hátsó kertkapunál találhatók.
Kivételes lehetőség azok számára, akik értéket, rugalmasságot és biztos befektetést keresnek prémium elhelyezkedéssel.
Referenciaszám: M316582
________________________________________
For Sale: Villa in Pécs, Mecsekoldal
| Size: 255 m2 | Number of Rooms: 9
A true uniqueness!
An elegant three-storey villa is for sale in the prestigious Mecsek Hills of Pécs. The Pálos Szent Imre Church is 400 meters away, Széchenyi Square is 700 meters away.
Features:
- Ground floor: 52 m2
- 1st floor: 105 m2
- 2nd floor: 98 m?2(separate entrance, gas central heating)
- Total useful living area: 255 m2
- Land size: 728 m2
- Three residential levels, each with a separate entrance
- 3 large terraces (two 12.30 m?, one 14.48 m2)
- Partial modernization in 2015 (plastic-framed windows with shutters)
- 4 closed street-access garages available for separate purchase (15,000,000 HUF/each, 60 m2 total)
- Street and back garden access
- Prime location: 5 minutes? walk from downtown, in a quiet, green area
- Panoramic, unobstructed views over Pécs, the Tenkes hill, and even Croatian mountains on clear days
Key features:
- Three separate residential units 2 ideal for multigenerational living, rental or business
- Intimate garden with further development potential
- Immediately available
- Excellent investment opportunity in one of the most sought-after areas of the city
- Utilization: exclusive family home, guesthouse, short-term rental, company headquarters, private clinic
- Nearby restaurants, cafés, schools, universities, and cultural & historical landmarks
- Excellent public transport connections
Contact & Viewing: The property is immediately available and can be viewed any day of the week. Additional 2 garages can be purchased at the back garden entrance.
An exceptional opportunity for those seeking value, flexibility, and a secure investment with prime location.
Reference number: M316582
329000000 Ft