Eladó Ház- házrész
Hirdetéskód: 9182275
Duna House - Új-Lak Bázis Kft.
503 m2
ALAPTERÜLET5
SZOBASZÁMnincs megadva
ÉPÍTÉSnincs megadva
FŰTÉS- CSOK igénybe vehető nem
- Tetőtér beépíthető nem
- Építés éve 2025
- Klíma nem
- Szigetelt nem
A+++
A++
A+
A
B
C
D
E
F
G
H
I
Az ingatlan leírása
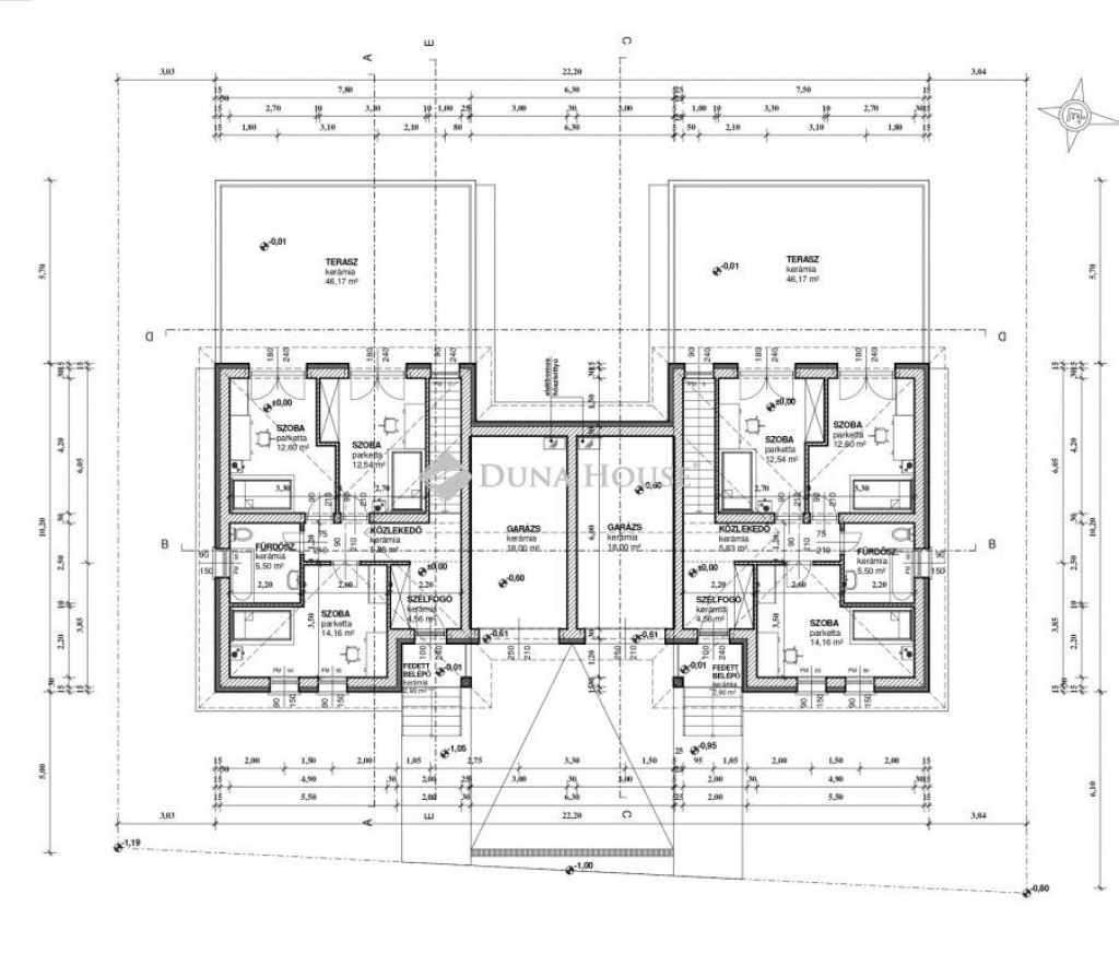
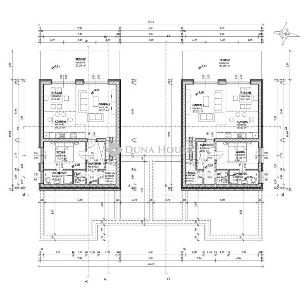
Páskomliget lakóparkban, panorámás, újépítésű, hőszivattyús, 5 szobás otthon garázzsal!
Akit a modern építészeti stílus, a környezettudatos életmód és a természet közelsége vonz, annak ez az otthon tökéletes választás. Fedezze fel a Pécelen található, napfény áradta, panorámás csodát, és tegye meg az első lépést álmai otthona felé.
A biztonságos és exkluzív lakópark ad otthont ennek az ingatlannak, ahol a békés környezet és a magas színvonalú életminőség kéz a kézben jár. A házhoz tartozik egy garázs is, amely kényelmes parkolási lehetőséget biztosít. Az ingatlan 5 szobával rendelkezik, amelyek kiválóan alkalmasak nagy családoknak vagy azok számára, akik szeretik a tágas és jól megtervezett tereket. Amerikai konyhás nappalija elegendő helyet biztosít mind a közös együttléthez, mind a magánéletre, miközben a hatalmas terasz lehetőséget nyújt a környező táj csodálatos panorámájának élvezetére.
Főbb jellemzők:
- elektromos alu redőnyök
- 3 rétegű, 5 légkamrás műanyag nyílászárók
- klíma előkészítés
- 10 cm grafitos homlokzati szigetelés, tetőn 20 cm kőzetgyapot szigetelés
- garázsban is padlófűtés
- vízlágyító-és vízszűrő berendezés
- teraszoknál üvegkorlát
- autóbeállónál és a ház körül körben viacolor
2025 július végére tervezett az átadás, az új tulajdonosa egy modern és energiahatékony otthont kap, melyben a fűtésért a legújabb technológiájú hőszivattyú gondoskodik, padlófűtéssel. DNY-i tájolásának köszönhetően a nap minden szakában világos és napfényes.
További kérdéseivel, megtekintéssel kapcsolatban keressen bizalommal!
Akit a modern építészeti stílus, a környezettudatos életmód és a természet közelsége vonz, annak ez az otthon tökéletes választás. Fedezze fel a Pécelen található, napfény áradta, panorámás csodát, és tegye meg az első lépést álmai otthona felé.
A biztonságos és exkluzív lakópark ad otthont ennek az ingatlannak, ahol a békés környezet és a magas színvonalú életminőség kéz a kézben jár. A házhoz tartozik egy garázs is, amely kényelmes parkolási lehetőséget biztosít. Az ingatlan 5 szobával rendelkezik, amelyek kiválóan alkalmasak nagy családoknak vagy azok számára, akik szeretik a tágas és jól megtervezett tereket. Amerikai konyhás nappalija elegendő helyet biztosít mind a közös együttléthez, mind a magánéletre, miközben a hatalmas terasz lehetőséget nyújt a környező táj csodálatos panorámájának élvezetére.
Főbb jellemzők:
- elektromos alu redőnyök
- 3 rétegű, 5 légkamrás műanyag nyílászárók
- klíma előkészítés
- 10 cm grafitos homlokzati szigetelés, tetőn 20 cm kőzetgyapot szigetelés
- garázsban is padlófűtés
- vízlágyító-és vízszűrő berendezés
- teraszoknál üvegkorlát
- autóbeállónál és a ház körül körben viacolor
2025 július végére tervezett az átadás, az új tulajdonosa egy modern és energiahatékony otthont kap, melyben a fűtésért a legújabb technológiájú hőszivattyú gondoskodik, padlófűtéssel. DNY-i tájolásának köszönhetően a nap minden szakában világos és napfényes.
További kérdéseivel, megtekintéssel kapcsolatban keressen bizalommal!