Eladó Ház- házrész
Hirdetéskód: 9129283
GDN Ingatlanhálózat - Főnix
Ez a hirdetés megfelelhet a FIX 3%-os programnak.
Tudj meg többet a részletekről itt.
101 m2
ALAPTERÜLET3
SZOBASZÁMnincs megadva
ÉPÍTÉSGáz (cirkó)
FŰTÉS- CSOK igénybe vehető nem
- Tetőtér beépíthető nem
- Fűtés Gáz (cirkó)
- Klíma nem
- Szigetelt nem
A+++
A++
A+
A
B
C
D
E
F
G
H
I
Az ingatlan leírása
CSAK NÁLUNK!
Pécel, kedvelt Levendulás lakóparkjában, eladó egy nettó 101,46 m², bruttó 110,56 m² alapterületű, 2 lakásos lakóépület 1-es lakása.
A lakásokat, aszfaltos úton lehet megközelíteni.
Az építkezés, várhatóan 2025 november közepén kezdődik.
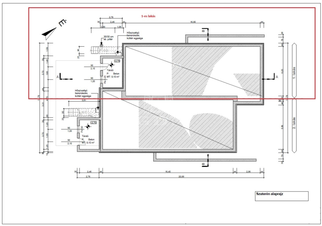
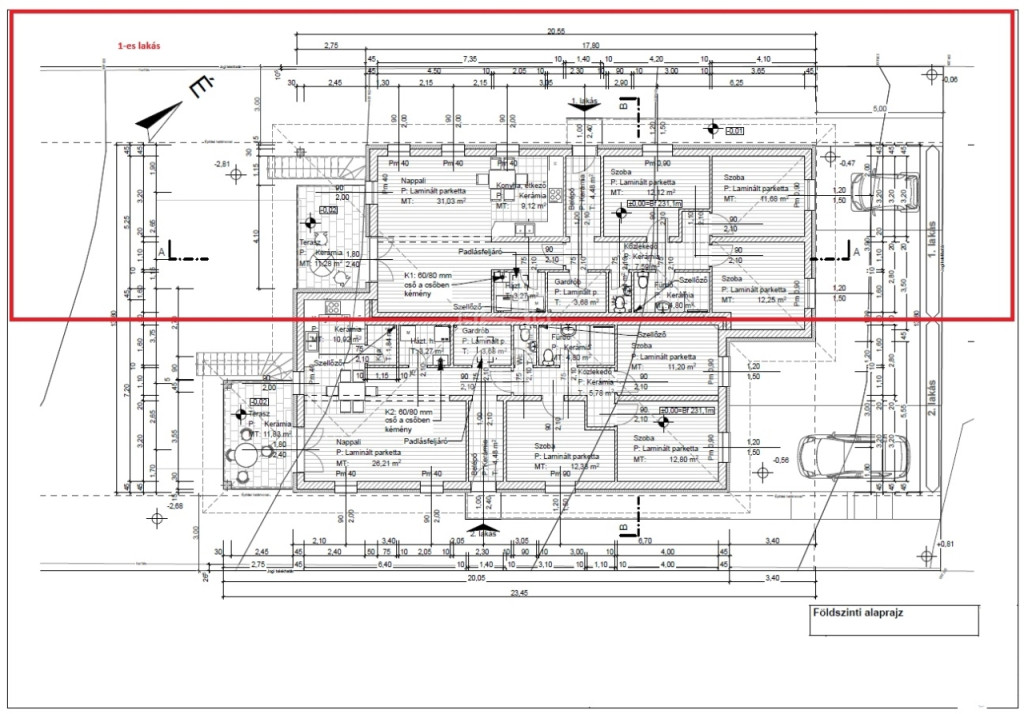
A 101,46 m²-es lakótérben 3 szoba + nappali szoba biztosít kényelmes életteret a jövőbeli lakóknak. A házhoz tartozik egy ~508 m²-es saját kert, ami tökéletes helyszín családi és baráti összejövetelekhez. A 11,28 m²-es teraszról ( alatta 9,1 m²-es tároló) gyönyörű kilátás nyílik a környező tájra.
A lakások szimmetrikus belső elrendezéssel kerültek megtervezésre, földszintes kialakítással, illetve részleges szuterén beépítéssel. A lakások az oldalkerti homlokzatok közepén lévő bejáratokon közelíthetők meg.
Rövid műszaki tartalom:
- Az épület földszinti és emeleti külső határoló falai 30 cm vastag Porotherm 30 X-Therm falazó blokkból, úgynevezett klíma téglából készülnek.
- A külső körítő falak külső oldalai 15 cm grafitos EPS (H 80) hab hőszigetelő vakolatot kapnak.
- A tetőtér hőszigetelése, fújt hőszigetelő hab, kb. 45 cm vastag kőzetgyapotnak fele meg.
- A válaszfalak 10 N+F Porotherm válaszfal lapokból falazott 10 cm vastag falszerkezetek.
- A külső nyílászárók, fehér színben gyártott műanyag 3 rétegű, hőszigetelő üvegezéssel ellátottak (U= 0,9 W/m2K) ablakok lesznek.
- A meleg víz ellátást és a fűtést gáz kondenzációs kazán biztosítja majd, padlófűtés hűleadással.
Az alternatív fűtésről és hűtésről, KLÍMA fog gondoskodni.
A tervezet áram kapacitás 3 x16 A lesz.
Felár ellenében H-tarifás óra kérhető!
Helységlista:
- Földszint:
- 4,48 m² belépő ,
- 7,59 m² közlekedő,
- 12,12 m² szoba I.,
- 11,68 m² szoba II. ,
- 12,25 m² szoba III.,
- 4,80 m² fürdő,
- 1,44 m² WC,
- 3,68 m² gardrób,
- 3,27 m² háztartási helység,
- 31,03 m² nappali,
- 9,12 m² konyha étkező
- -----------------
101,46 m²
Nyitott terasz 11,28 m²
A terasz alatt szuterén tároló 9,10 m² lesz.
A kert durva tereprendezéssel lesz átadva.
Műszaki tartalom:
-Hideg burkolat 6.000 Ft/m²
-Meleg burkolat 5.000 Ft/m²
-Szaniterek 200.000 Ft-ig
-Beltéri ajtók 60.000 Ft, kilinccsel együtt /db
Magasabb árú építőanyag választás esetén a különbözetet a Vevő finanszírozza.
Az ár tartalmazza még:
- H-tarifa óra előkészítését, az órát és a dobozt nem.
- Kapumozgató elektronika előkészítését,
- Riasztó előkészítését.
A berendezések kiépítése opcionálisan, plusz pénzért megrendelhetők.
A belső VÁLASZFALAK, MÉG MÓDOSÍTHATÓK!
A Kivitelező a műszaki tartalom változtatás jogát fenntartja, az előírt energetikai előírások figyelembe vételével.
A Cég számos referenciával rendelkezik. Komoly érdeklődés esetén szívesen mutatunk referenciát!
Ne hagyja ki ezt a lehetőséget, legyen Ön az új ikerház tulajdonosa Pécelen!
Finanszírozás 10 + 10 % önerő.
Várható átadás: 2026 III. -IV. né.
JÖJJÖN el, NÉZZE meg, SZERESSEN bele!
A GV HitelCentrum, KÖTELEZETTSÉG MENTESEN és DÍJMENTESEN, versenyezteti Önért a bankok hitelajánlatait. Ismerje meg a vissza nem térítendő állami támogatásokat!
* Egyedi, bankfiókban nem elérhető kamat- és díjkedvezmények.
* Ingyenes Hitelképesség vizsgálat.
* Idő, energia és pénz megtakarítás.
* Teljes hivatali ügyintézés.
* Babaváró.
* CSOK+
* Hitel.
* Megtakarítás,
* és EGYÉB BANKI tranzakcióban segítségére lehetünk!
• Igény esetén, ÜGYVÉDI segítséget nyújtunk, MEGFIZETHETŐ áron!
Ha az ingatlannal kapcsolatban bővebb felvilágosításra lenne szüksége, hívjon bizalommal, állok rendelkezésére!
F.M. ...TOVÁBBI, TÖBBEZRES INGATLAN KÍNÁLAT: - GDN azonosító: 385226
Pécel, kedvelt Levendulás lakóparkjában, eladó egy nettó 101,46 m², bruttó 110,56 m² alapterületű, 2 lakásos lakóépület 1-es lakása.
A lakásokat, aszfaltos úton lehet megközelíteni.
Az építkezés, várhatóan 2025 november közepén kezdődik.
A 101,46 m²-es lakótérben 3 szoba + nappali szoba biztosít kényelmes életteret a jövőbeli lakóknak. A házhoz tartozik egy ~508 m²-es saját kert, ami tökéletes helyszín családi és baráti összejövetelekhez. A 11,28 m²-es teraszról ( alatta 9,1 m²-es tároló) gyönyörű kilátás nyílik a környező tájra.
A lakások szimmetrikus belső elrendezéssel kerültek megtervezésre, földszintes kialakítással, illetve részleges szuterén beépítéssel. A lakások az oldalkerti homlokzatok közepén lévő bejáratokon közelíthetők meg.
Rövid műszaki tartalom:
- Az épület földszinti és emeleti külső határoló falai 30 cm vastag Porotherm 30 X-Therm falazó blokkból, úgynevezett klíma téglából készülnek.
- A külső körítő falak külső oldalai 15 cm grafitos EPS (H 80) hab hőszigetelő vakolatot kapnak.
- A tetőtér hőszigetelése, fújt hőszigetelő hab, kb. 45 cm vastag kőzetgyapotnak fele meg.
- A válaszfalak 10 N+F Porotherm válaszfal lapokból falazott 10 cm vastag falszerkezetek.
- A külső nyílászárók, fehér színben gyártott műanyag 3 rétegű, hőszigetelő üvegezéssel ellátottak (U= 0,9 W/m2K) ablakok lesznek.
- A meleg víz ellátást és a fűtést gáz kondenzációs kazán biztosítja majd, padlófűtés hűleadással.
Az alternatív fűtésről és hűtésről, KLÍMA fog gondoskodni.
A tervezet áram kapacitás 3 x16 A lesz.
Felár ellenében H-tarifás óra kérhető!
Helységlista:
- Földszint:
- 4,48 m² belépő ,
- 7,59 m² közlekedő,
- 12,12 m² szoba I.,
- 11,68 m² szoba II. ,
- 12,25 m² szoba III.,
- 4,80 m² fürdő,
- 1,44 m² WC,
- 3,68 m² gardrób,
- 3,27 m² háztartási helység,
- 31,03 m² nappali,
- 9,12 m² konyha étkező
- -----------------
101,46 m²
Nyitott terasz 11,28 m²
A terasz alatt szuterén tároló 9,10 m² lesz.
A kert durva tereprendezéssel lesz átadva.
Műszaki tartalom:
-Hideg burkolat 6.000 Ft/m²
-Meleg burkolat 5.000 Ft/m²
-Szaniterek 200.000 Ft-ig
-Beltéri ajtók 60.000 Ft, kilinccsel együtt /db
Magasabb árú építőanyag választás esetén a különbözetet a Vevő finanszírozza.
Az ár tartalmazza még:
- H-tarifa óra előkészítését, az órát és a dobozt nem.
- Kapumozgató elektronika előkészítését,
- Riasztó előkészítését.
A berendezések kiépítése opcionálisan, plusz pénzért megrendelhetők.
A belső VÁLASZFALAK, MÉG MÓDOSÍTHATÓK!
A Kivitelező a műszaki tartalom változtatás jogát fenntartja, az előírt energetikai előírások figyelembe vételével.
A Cég számos referenciával rendelkezik. Komoly érdeklődés esetén szívesen mutatunk referenciát!
Ne hagyja ki ezt a lehetőséget, legyen Ön az új ikerház tulajdonosa Pécelen!
Finanszírozás 10 + 10 % önerő.
Várható átadás: 2026 III. -IV. né.
JÖJJÖN el, NÉZZE meg, SZERESSEN bele!
A GV HitelCentrum, KÖTELEZETTSÉG MENTESEN és DÍJMENTESEN, versenyezteti Önért a bankok hitelajánlatait. Ismerje meg a vissza nem térítendő állami támogatásokat!
* Egyedi, bankfiókban nem elérhető kamat- és díjkedvezmények.
* Ingyenes Hitelképesség vizsgálat.
* Idő, energia és pénz megtakarítás.
* Teljes hivatali ügyintézés.
* Babaváró.
* CSOK+
* Hitel.
* Megtakarítás,
* és EGYÉB BANKI tranzakcióban segítségére lehetünk!
• Igény esetén, ÜGYVÉDI segítséget nyújtunk, MEGFIZETHETŐ áron!
Ha az ingatlannal kapcsolatban bővebb felvilágosításra lenne szüksége, hívjon bizalommal, állok rendelkezésére!
F.M. ...TOVÁBBI, TÖBBEZRES INGATLAN KÍNÁLAT: - GDN azonosító: 385226