Eladó Ház- házrész
Hirdetéskód: 9225772
Körültekintő Ingatlan - hirdetünk ön helyett!
94 m2
ALAPTERÜLET4
SZOBASZÁMnincs megadva
ÉPÍTÉSGáz (cirkó)
FŰTÉS- Belső szintek 1
- Építés éve 2020
- Fűtés Gáz (cirkó)
A+++
A++
A+
A
B
C
D
E
F
G
H
I
Az ingatlan leírása
Az ingatlan közvetlenül a tulajdonostól eladó, elérhetősége: Antal Tamás
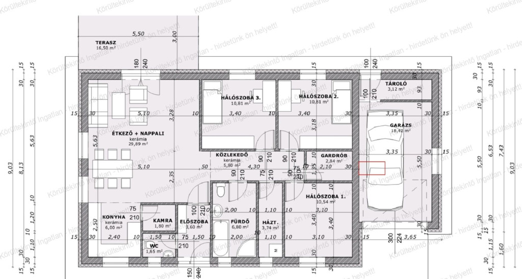
Pécel egyik legkedveltebb, csendes utcájában, a Tompa utcában egy 2020-ban, 30 cm-es porotherm téglából épült, nettó 94, bruttó 115 nm-es egy szintes, nappali + 3 hálószobás önálló családi ház eladó.
A telek mérete 481 m2 a gyönyörűen parkosított kert része kb. 250m2.
Energetika:
- Fűtés: energiatakarékos, cirkó fűtéssel kialakított rendszer, padlófűtés és radiátoros hőleadással.
- Szigetelés: 15 cm vastag grafitos homlokzati- és 20 cmm-es szigetelés a zárófödémen.
- A tetőt Terrán betoncserép fedi.
Helyiségek:
- tágas, amerikai konyhás nappali étkezővel, a konyhabútor modern, beépített inox Whirpool gépekkel felszerelt, és kamra is kapcsolódik hozzá.
- Három önálló bejáratú hálószoba,
- káddal és zuhanyfülkével ellátott fürdő,
- külön vendég mosdó,
- kazánház/mosókonyha a gépészetnek,
- 16 m2-es fedett terasz.
Extrák a házban:
- két különálló wc, egy nagy fürdőszoba,
- 3x16 Amper,
- klíma előkészítés,
- minden ablakon redőny és szúnyogháló,
- beépített gardrób és előszoba bútor,
- minden szobában kialakított tv és internet csatlakozás, az áram és a kábelek földkábelen érkeznek,
- kb. 40 nm padlóval lerakott tárolási felület.
- Kamerás megfigyelő rendszer, riasztó.
Extrák a kertben:
- gyönyörűen gondozott parkosított kert,
- automata öntöző- és csepegtető rendszer, külön locsoló vízmérő órával,
- az esővíz elvezetése szikkasztóval megoldott.
- Motorizált kert- és garázskapu,
- fedett kukatároló.
Parkolás:
- Fűtött 21,5 m2-es garázs és tároló, a garázs előtt a telken belül egy autónak parkolási lehetőség,
- a ház előtt további 3 autó számára kényelmes parkolási lehetőség adott.
Elhelyezkedés:
- A környék rendkívül barátságos, a szomszédok segítőkészek.
- Az iskola és az óvoda is pár száz méterre található, így a gyermekes családok számára ideális.
Az ingatlan 3 hónapon belül költözhető.
Pécel egyik legkedveltebb, csendes utcájában, a Tompa utcában egy 2020-ban, 30 cm-es porotherm téglából épült, nettó 94, bruttó 115 nm-es egy szintes, nappali + 3 hálószobás önálló családi ház eladó.
A telek mérete 481 m2 a gyönyörűen parkosított kert része kb. 250m2.
Energetika:
- Fűtés: energiatakarékos, cirkó fűtéssel kialakított rendszer, padlófűtés és radiátoros hőleadással.
- Szigetelés: 15 cm vastag grafitos homlokzati- és 20 cmm-es szigetelés a zárófödémen.
- A tetőt Terrán betoncserép fedi.
Helyiségek:
- tágas, amerikai konyhás nappali étkezővel, a konyhabútor modern, beépített inox Whirpool gépekkel felszerelt, és kamra is kapcsolódik hozzá.
- Három önálló bejáratú hálószoba,
- káddal és zuhanyfülkével ellátott fürdő,
- külön vendég mosdó,
- kazánház/mosókonyha a gépészetnek,
- 16 m2-es fedett terasz.
Extrák a házban:
- két különálló wc, egy nagy fürdőszoba,
- 3x16 Amper,
- klíma előkészítés,
- minden ablakon redőny és szúnyogháló,
- beépített gardrób és előszoba bútor,
- minden szobában kialakított tv és internet csatlakozás, az áram és a kábelek földkábelen érkeznek,
- kb. 40 nm padlóval lerakott tárolási felület.
- Kamerás megfigyelő rendszer, riasztó.
Extrák a kertben:
- gyönyörűen gondozott parkosított kert,
- automata öntöző- és csepegtető rendszer, külön locsoló vízmérő órával,
- az esővíz elvezetése szikkasztóval megoldott.
- Motorizált kert- és garázskapu,
- fedett kukatároló.
Parkolás:
- Fűtött 21,5 m2-es garázs és tároló, a garázs előtt a telken belül egy autónak parkolási lehetőség,
- a ház előtt további 3 autó számára kényelmes parkolási lehetőség adott.
Elhelyezkedés:
- A környék rendkívül barátságos, a szomszédok segítőkészek.
- Az iskola és az óvoda is pár száz méterre található, így a gyermekes családok számára ideális.
Az ingatlan 3 hónapon belül költözhető.