Eladó Ház- házrész
Hirdetéskód: 9320881
Fővállalkozó Balla és Balla Kft
Felújításhoz személyi kölcsönt keres? Kalkuláljon itt! →
Ez a hirdetés megfelelhet a FIX 3%-os programnak.
Tudj meg többet a részletekről itt.
100.00 m2
ALAPTERÜLET3
SZOBASZÁMnincs megadva
ÉPÍTÉSnincs megadva
FŰTÉS- CSOK igénybe vehető nem
- Tetőtér beépíthető nem
- Építés éve 1980
- Klíma nem
- Szigetelt nem
A+++
A++
A+
A
B
C
D
E
F
G
H
I
Az ingatlan leírása
Pázmándon (mindentől egy karnyújtásnyira) eladó egy 100 m²-es, háromszobás családi ház 619 m²-es telken beépíthető tetőtérrel (+ 60 m2), garázzsal, pincével, melléképülettel (+35m2) központi, de csendes helyen.
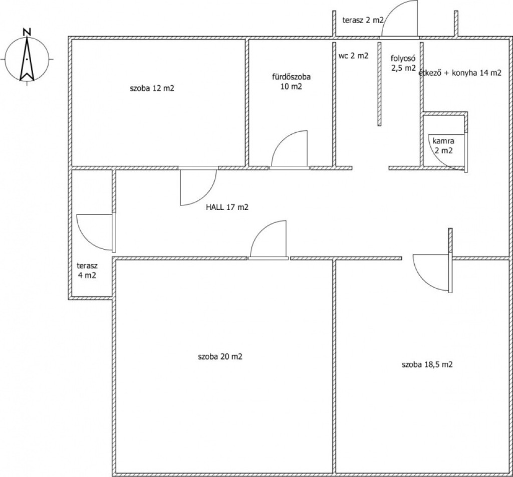
Tágas, világos terek, családbarát elrendezés:
• Szobák: 12, 18,5 és 20 m², minden családtagnak privát életteret biztosít
• 17 m²-es tágas közlekedő, ahonnan nyílnak a szobák, a konyha, nagy ablakkal, étkezővel és kis spejzzel
• Fürdőszoba káddal és zuhanyzóval, külön WC
• Padlástéri kis terasz, ideális a reggeli kávéhoz vagy az esti pihenéshez
• Zárt feljáró a beépíthető padlástérhez, további lehetőséget adva a bővítéshez
Műszaki adottságok és lehetőségek:
• Teljesen alápincézett, 5 helyiséggel
• Garázs 1 autó részére
• 35 m² melléképület
• Fűtés gáz- és vegyes kazánok
• Tető szigetelt, részben műanyag nyílászárók és bejárati ajtó, 5 cm külső szigetelés
Ideális választás azoknak, akik szeretnék ötvözni a vidéki nyugalmat a mindennapi kényelemmel. A település minden fontos pontja – iskola, óvoda, bolt, posta, virágbolt – mindössze 5 perc sétára van, így a reggeli rohanás stresszmentes. A buszmegálló is 5 perc sétára, így a tömegközlekedéssel történő utazás kényelmes.
Autóval a környék könnyen elérhető: Budapest 40 perc, Székesfehérvár 20 perc, a Velencei-tó pedig pár percre, ami tökéletes nyári kikapcsolódást biztosít a családnak. A település környéke ideális kirándulásokhoz, biciklizéshez, vagy egyszerűen a nyugalom élvezetéhez.
Ez az ingatlan több, mint ház: lehetőség a saját stílus kialakítására, a tetőtér beépítésére, vagy akár befektetésként is. A kert, a padlástéri kis terasz együtt egy harmonikus, otthonos vidéki élet színterét adják, ide minden nap öröm hazatérni.
Tágas, világos terek, családbarát elrendezés:
• Szobák: 12, 18,5 és 20 m², minden családtagnak privát életteret biztosít
• 17 m²-es tágas közlekedő, ahonnan nyílnak a szobák, a konyha, nagy ablakkal, étkezővel és kis spejzzel
• Fürdőszoba káddal és zuhanyzóval, külön WC
• Padlástéri kis terasz, ideális a reggeli kávéhoz vagy az esti pihenéshez
• Zárt feljáró a beépíthető padlástérhez, további lehetőséget adva a bővítéshez
Műszaki adottságok és lehetőségek:
• Teljesen alápincézett, 5 helyiséggel
• Garázs 1 autó részére
• 35 m² melléképület
• Fűtés gáz- és vegyes kazánok
• Tető szigetelt, részben műanyag nyílászárók és bejárati ajtó, 5 cm külső szigetelés
Ideális választás azoknak, akik szeretnék ötvözni a vidéki nyugalmat a mindennapi kényelemmel. A település minden fontos pontja – iskola, óvoda, bolt, posta, virágbolt – mindössze 5 perc sétára van, így a reggeli rohanás stresszmentes. A buszmegálló is 5 perc sétára, így a tömegközlekedéssel történő utazás kényelmes.
Autóval a környék könnyen elérhető: Budapest 40 perc, Székesfehérvár 20 perc, a Velencei-tó pedig pár percre, ami tökéletes nyári kikapcsolódást biztosít a családnak. A település környéke ideális kirándulásokhoz, biciklizéshez, vagy egyszerűen a nyugalom élvezetéhez.
Ez az ingatlan több, mint ház: lehetőség a saját stílus kialakítására, a tetőtér beépítésére, vagy akár befektetésként is. A kert, a padlástéri kis terasz együtt egy harmonikus, otthonos vidéki élet színterét adják, ide minden nap öröm hazatérni.