Eladó Ház- házrész
Hirdetéskód: 9256260

Székesfehérvár Palotai út 8 - OTP Ingatlanpont Iroda

Felújításhoz személyi kölcsönt keres? Kalkuláljon itt! →
94.00 m2
ALAPTERÜLET
2
SZOBASZÁM
nincs megadva
ÉPÍTÉS
Gáz (konvektor)
FŰTÉS
  • CSOK igénybe vehető nem
  • Belső szintek 1
  • Tetőtér beépíthető nem
  • Építés éve 1960
  • Fűtés Gáz (konvektor)
  • Klíma nem
  • Szigetelt nem
Energetikai besorolás: Nincs meghatározva
A+++
A++
A+
A
B
C
D
E
F
G
H
I

Az MBH Bank személyi kölcsön ajánlata

Fizetett hirdetés
1 millió Ft
6 évre
20 585 Ft/hó
THM: 14.5%
Részletek →
2 millió Ft
6 évre
41 169 Ft/hó
THM: 14.5%
Részletek →
3 millió Ft
6 évre
61 754 Ft/hó
THM: 14.5%
Részletek →

A tájékoztatás nem teljes körű és nem minősül ajánlattételnek.

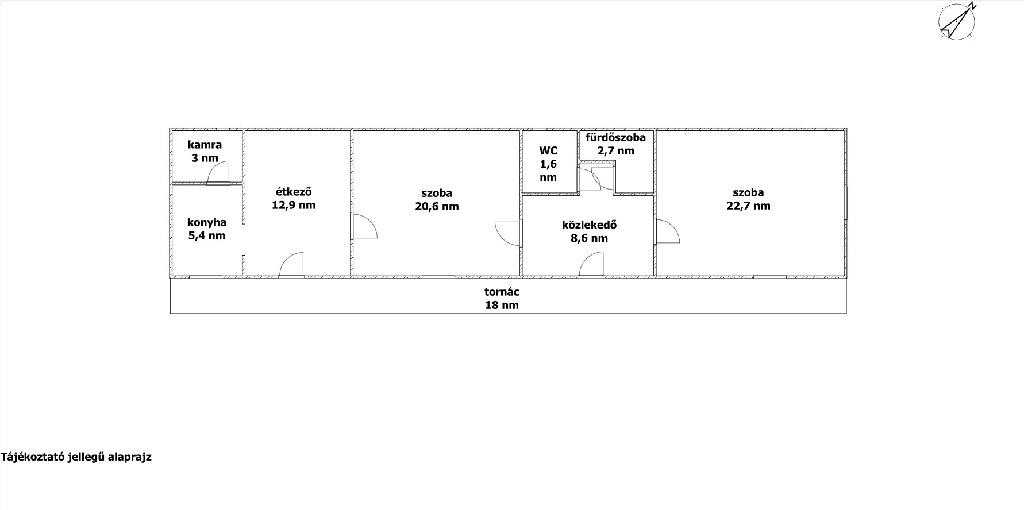
Az ingatlan leírása

Fejér megye, Pázmánd 94,5 nm-es családi ház eladó. A vályog falazatú, felújítandó ingatlan egy 1787 nm-es telken helyezkedik el közel a település központjához. A telek két utcára nyílik, beépíthetősége 30 %. A tehermentes házban 2 szoba, konyha, étkező, kamra, fürdőszoba, külön WC található, valamint tartozik hozzá tornác, garázs, pince, szaletli, kerti sütögető és melléképületek. A fűtésről gázkonvektorok és egy hangulatos cserépkályha gondoskodik. Az összes közmű az ingatlanba bevezetve. Megvásárlásában rengeteg lehetőség rejlik, melyben ráfordítással és fantáziával egy hangulatos otthon alakíthat ki békés környezetben. Teljes körű ügyintézésben segítjük ügyfeleinket díjtalanul: kedvezményes hitel mobil bankári szolgáltatással, adásvétel teljes lebonyolításával.

Térkép

A hirdető elérhetősége

Székesfehérvár Palotai út 8 - OTP Ingatlanpont Iroda

Darnai Henrietta
+36 20 487