Eladó Ház- házrész
Hirdetéskód: 9274443
Dunaharaszti, Dózsa György út 45. (OTPIP)
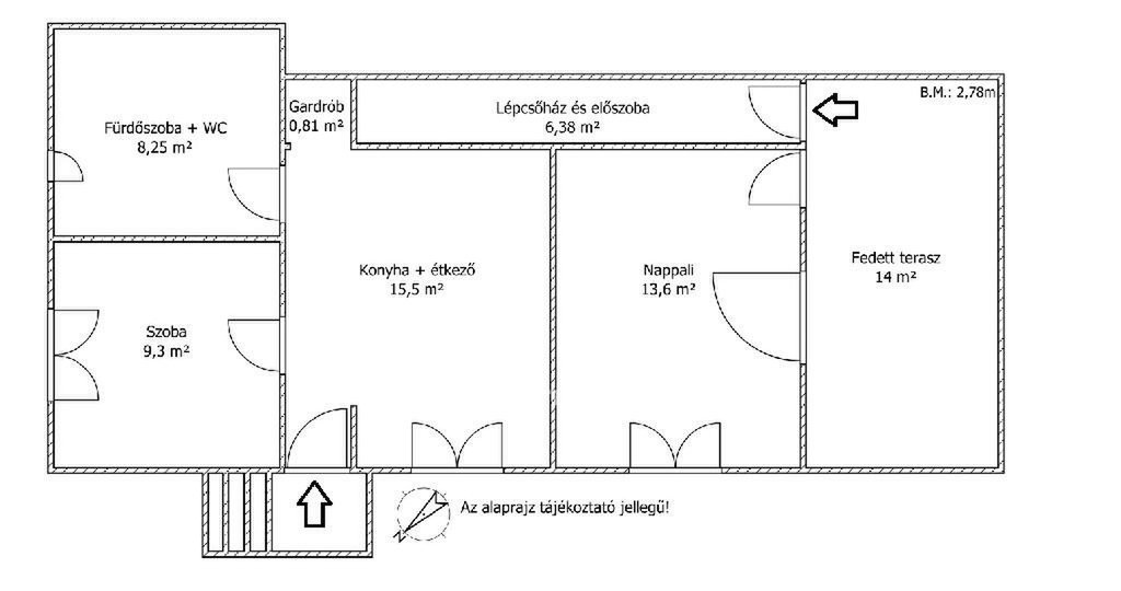
Felújításhoz személyi kölcsönt keres? Kalkuláljon itt! →115.00 m2
ALAPTERÜLET2
SZOBASZÁMnincs megadva
ÉPÍTÉSnincs megadva
FŰTÉS- CSOK igénybe vehető nem
- Tetőtér beépíthető nem
- Építés éve 1990
- Klíma nem
- Szigetelt nem
A+++
A++
A+
A
B
C
D
E
F
G
H
I
Az ingatlan leírása
Eladó tégla építésű 115 négyzetméter hasznos alapterületű ikerházfél Pátyon jó környéken. Jelenleg a földszinten egy hálószoba van és az emeleten kettő hálószoba került kialakításra így családosoknak illetve több generáció összeköltözése esetén kifejezetten ajánlom. Mindkét emeleten van fürdőszoba és konyha is, a földszinti konyha teljesen gépesített. Fűtése gázkazánnal történik radiátoros hőleadással, a fűtés 13000 forint/hó éves átalánnyal. Meleg vizet B-tarifás bojler készít. A két szint most külön bejáratú de nagyon egyszerűen összenyitható úgy már akár az államilag támogatott programoknak is megfelelhet. Az ingatlan osztatlan közös tulajdon ami ügyvéd által ellenjegyzett használati megosztási szerződéssel rendelkezik, minden mérőóra egyedi. Az épület alatt 52 négyzetméteres külön bejárató pince található ahol a gépészet és egy kis műhely kapott helyet. A díszkertet a fedett teraszról egész évben élvezhetjük, a gondosan kiválasztott fajtáknak köszönhetően ápolása egyszerű. Jöjjön el és tekintse meg ezt a remek lehetőséget! Amennyiben felkeltettem érdeklődését, hívjon bizalommal! Kérdéseire az esti órákban és hétvégén is szívesen válaszolok! Ha az új ingatlana megvásárlásához a jelenlegi ingatlanát el kell adnia, abban is szívesen segítünk.
Az OTP Ingatlanpont, mint egyetlen közvetlen banki hátterű ingatlanközvetítő társaság teljes körű ügyintézéssel áll az eladók és a vevők rendelkezésére! A kínálatunkból választott ingatlan finanszírozásához minősített fogyasztóbarát, piaci és kedvezményes hitel- és lízingkonstrukciókat kínálunk (lakásvásárlási hitel, szabad felhasználású hitel, babaváró hitel, CSOK Plusz-intézés, Otthonfelújítási Támogatás, egyéb felújítási hitelek). Az adásvételi szerződés megkötéséhez igény szerint megbízható ügyvédi közreműködést biztosítunk, és segítséget nyújtunk az adásvételhez kapcsolódó egyéb ügyek intézéséhez.
Az OTP Ingatlanpont, mint egyetlen közvetlen banki hátterű ingatlanközvetítő társaság teljes körű ügyintézéssel áll az eladók és a vevők rendelkezésére! A kínálatunkból választott ingatlan finanszírozásához minősített fogyasztóbarát, piaci és kedvezményes hitel- és lízingkonstrukciókat kínálunk (lakásvásárlási hitel, szabad felhasználású hitel, babaváró hitel, CSOK Plusz-intézés, Otthonfelújítási Támogatás, egyéb felújítási hitelek). Az adásvételi szerződés megkötéséhez igény szerint megbízható ügyvédi közreműködést biztosítunk, és segítséget nyújtunk az adásvételhez kapcsolódó egyéb ügyek intézéséhez.