Eladó Ház- házrész
Hirdetéskód: 9283794
Gyöngyös Kossuth Lajos utca 22 - OTP Ingatlanpont Iroda
Felújításhoz személyi kölcsönt keres? Kalkuláljon itt! →427.00 m2
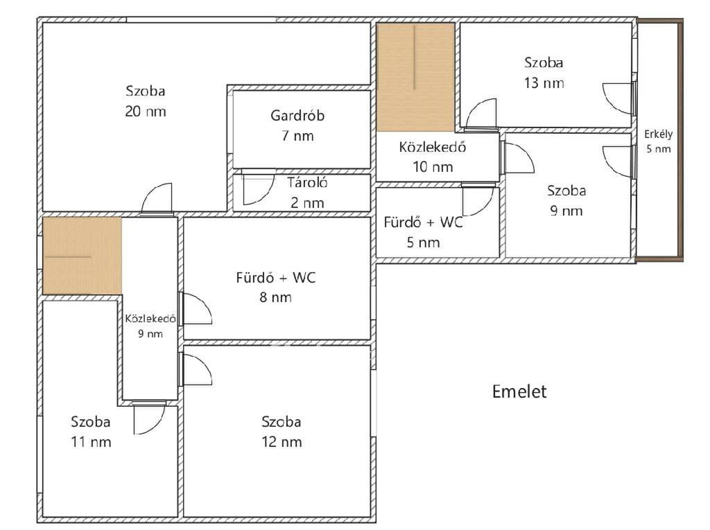
ALAPTERÜLET10
SZOBASZÁMnincs megadva
ÉPÍTÉSnincs megadva
FŰTÉS- CSOK igénybe vehető nem
- Tetőtér beépíthető nem
- Építés éve 1981
- Klíma nem
- Szigetelt nem
A+++
A++
A+
A
B
C
D
E
F
G
H
I
Az ingatlan leírása
Eladó gyönyörű, tágas családi ház Parádfürdő legkedveltebb részén ? 427 nm-es élettér egy 1300 nm-es telken!
Keresi új otthonát egy csendes, mégis jól megközelíthető környezetben?
Itt a lehetőség, hogy valami igazán különlegeset találjon!
Főbb jellemzők:
Többgenerációs családi ház, összesen 10 szoba, ideális nagycsaládnak vagy több funkciós otthonnak.
Tágas, 427 nm-es lakóterület, amely rengeteg lehetőséget rejt magában
1300 nm-es saját telek ? kert, pihenőhely és szabadtéri programok helyszíne
Önálló garázs és több fedett autóbeálló ? kényelmes parkolás
Duplakomfortos kialakítás és jó állapot ? azonnal költözhető
Modern komfortok, légkondicionálóval felszerelt
Elhelyezkedés:
Parád ? festői környezetben, a Mátra lábánál, ahol a természet közelsége, a nyugalom és a friss levegő mindennapos életérzést ad!
Miért érdemes meglátogatni ezt az ingatlant?
Ez nem egy átlagos ház: tágas terekkel, sok funkciós helyiségekkel, és egy olyan telekkel rendelkezik, ahol bőven van hely akár családi programokra, kertészkedésre, vagy vendéglátásra egyaránt. A több szint és a külön bejáratok akár apartmanházzá vagy vendégházzá való átalakítást is lehetővé tesz.
Ne maradjon le!
Ez a ritka lehetőség akár otthonnak, akár befektetésnek is tökéletes választás. Hívjon még ma, hogy időpontot egyeztessünk!
Keresi új otthonát egy csendes, mégis jól megközelíthető környezetben?
Itt a lehetőség, hogy valami igazán különlegeset találjon!
Főbb jellemzők:
Többgenerációs családi ház, összesen 10 szoba, ideális nagycsaládnak vagy több funkciós otthonnak.
Tágas, 427 nm-es lakóterület, amely rengeteg lehetőséget rejt magában
1300 nm-es saját telek ? kert, pihenőhely és szabadtéri programok helyszíne
Önálló garázs és több fedett autóbeálló ? kényelmes parkolás
Duplakomfortos kialakítás és jó állapot ? azonnal költözhető
Modern komfortok, légkondicionálóval felszerelt
Elhelyezkedés:
Parád ? festői környezetben, a Mátra lábánál, ahol a természet közelsége, a nyugalom és a friss levegő mindennapos életérzést ad!
Miért érdemes meglátogatni ezt az ingatlant?
Ez nem egy átlagos ház: tágas terekkel, sok funkciós helyiségekkel, és egy olyan telekkel rendelkezik, ahol bőven van hely akár családi programokra, kertészkedésre, vagy vendéglátásra egyaránt. A több szint és a külön bejáratok akár apartmanházzá vagy vendégházzá való átalakítást is lehetővé tesz.
Ne maradjon le!
Ez a ritka lehetőség akár otthonnak, akár befektetésnek is tökéletes választás. Hívjon még ma, hogy időpontot egyeztessünk!