Eladó Ház- házrész
Hirdetéskód: 9308324

CsornaIngatlan

Felújításhoz személyi kölcsönt keres? Kalkuláljon itt! →
FIX 3% Program

Ez a hirdetés megfelelhet a FIX 3%-os programnak.
Tudj meg többet a részletekről itt.

90.00 m2
ALAPTERÜLET
3
SZOBASZÁM
Tégla
ÉPÍTÉS
Központi fűtés
FŰTÉS
  • Belső szintek 1
  • Kilátás Utcai
  • Ingatlan komfort Összkomfortos
  • Parkolási lehetőség Önálló garázs
  • Építés éve 1970
  • Fűtés Központi fűtés
  • Építőanyag Tégla
  • Klíma igen
  • Víz telken belül
  • Csatorna telken belül
  • Gáz telken belül
  • Villany telken belül
Energetikai besorolás: Nincs meghatározva
A+++
A++
A+
A
B
C
D
E
F
G
H
I

Az MBH Bank személyi kölcsön ajánlata

Fizetett hirdetés
1 millió Ft
6 évre
20 585 Ft/hó
THM: 14.5%
Részletek →
2 millió Ft
6 évre
41 169 Ft/hó
THM: 14.5%
Részletek →
3 millió Ft
6 évre
61 754 Ft/hó
THM: 14.5%
Részletek →

A tájékoztatás nem teljes körű és nem minősül ajánlattételnek.

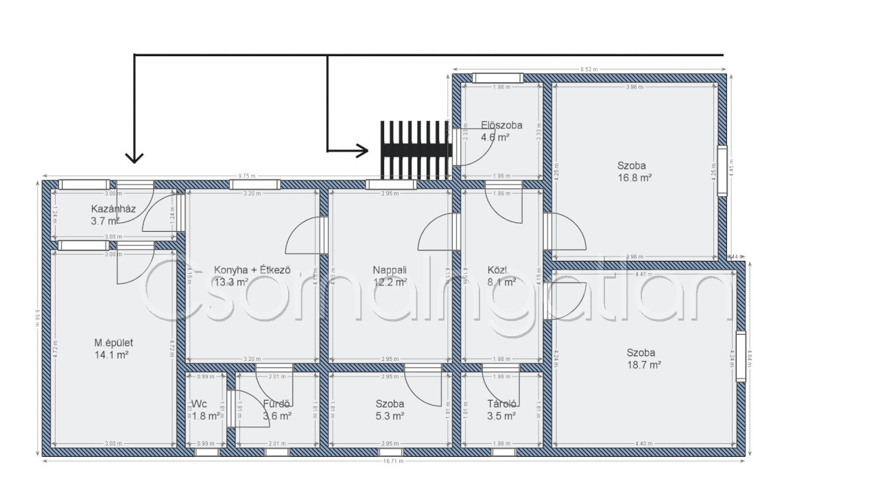
Az ingatlan leírása

Páli – 3 szoba nappalis falusi csok-ra alkalmas ház eladó


 


Páliban 90 m2-es összkomfortos családi ház 2600 m2-es telken eladó


 


HELYISÉGEK:


- 3 külön bejáratú szoba


- nappali


- konyha + étkező


- fürdő


- tároló


 


MŰSZAKI JELLEMZŐK:


- 1970-ben épült téglaház


- magas beton alap


- beton födém


- új műanyag ablakok redőnnyel felszerelve


- gáz-, és vegyes központi kazán


- hűtő-fűtő klíma


- meleg víz gázbojler által


- éjszakai és nappali áram


- 2 bejárat


 


MELLÉKÉPÜLETEK:


- tároló


- kazánház


- pajta


- garázs


 


TELEK:


- 2600 m2-es


- az udvar rész körbekerített


- ásott kút


 


FONTOS LEHET:


- falusi CSOK-ra alkalmas


- azonnal birtokba vehető


- tehermentes


 


PÁLI


A kb. 420 fős település Beledtől 7 km-re fekszik, s ezáltal a M86-os gyorsforgalmi úttól is


- a Rábától kb. 4 km-re helyezkedik el


- óvoda


- falusi CSOK a településen igényelhető

Térkép

Ingatlan adásvétel ügyvédi díja
157 455 Ft
a hirdetésben szereplő ár alapján
  • A vételár 0,45%-a
  • Szerződéscsomag teljeskörű képviselettel
  • Ingyenes tulajdoni lap ellenőrzés
  • Az ÁFA-t már tartalmazza
Érdekel az ajánlat →
A tájékoztatás nem teljes körű és nem minősül ajánlattételnek. Minimum díj: 150 000 Ft, maximum díj: 600 000 Ft. A díj kizárólag lakóingatlan adásvételére vonatkozik.

A hirdető elérhetősége

CsornaIngatlan

Katrinecz Julia
+36 20 501