Eladó Ház- házrész
Hirdetéskód: 9206961

-

Felújításhoz személyi kölcsönt keres? Kalkuláljon itt! →
FIX 3% Program

Ez a hirdetés megfelelhet a FIX 3%-os programnak.
Tudj meg többet a részletekről itt.

139.00 m2
ALAPTERÜLET
4
SZOBASZÁM
Tégla
ÉPÍTÉS
Hőszivattyú
FŰTÉS
  • Belső szintek 2
  • Ingatlan komfort Duplakomfortos
  • Építés éve 2026
  • Fűtés Hőszivattyú
  • Építőanyag Tégla
  • Erkély, terasz Terasz 36.00m2
  • Szigetelt igen
Energetikai besorolás: Nincs meghatározva
A+++
A++
A+
A
B
C
D
E
F
G
H
I

Az MBH Bank személyi kölcsön ajánlata

Fizetett hirdetés
1 millió Ft
6 évre
20 585 Ft/hó
THM: 14.5%
Részletek →
2 millió Ft
6 évre
41 169 Ft/hó
THM: 14.5%
Részletek →
3 millió Ft
6 évre
61 754 Ft/hó
THM: 14.5%
Részletek →

A tájékoztatás nem teljes körű és nem minősül ajánlattételnek.

Az ingatlan leírása

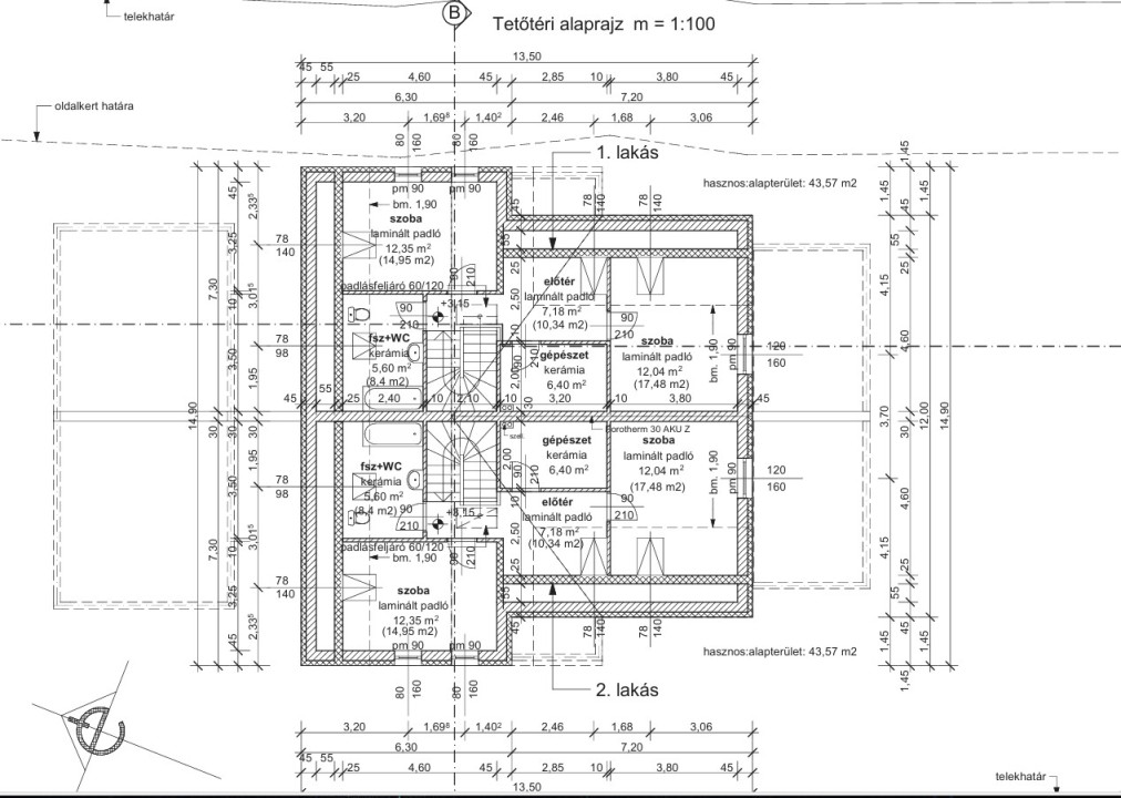
Pákozdon új építésű ikerházak eladók. Budai úton kerül megépítésre két darab egymás melletti ikerház,    kizárólagos használatú 750 nm-es telekrésszel.


A földszint lakható alapterülete 62 nm melyben egy előszoba, amerikai konyha étkező nappali, 1 hálószoba, fürdő, Wc, spájz,+  egy 36 nm-es terasz és + egy 30 nm-es autóbeállási lehetőség kerül megépítésre


Emelet: hasznos alapterülete: 44 nm (bruttó 57 nm), 2 hálószoba, fürdő, Wc, előtér kerül kialakításra.


A két ingatlan dupla falszerkezettel, téglából, betonfödémmel, tégla válaszfalakkal adják át, hőszivattyús fűtés rendszerrel, klíma hűtéssel. A külső falszerkezeten 15 cm szigetelést tesznek.


A vevők választhatnak burkolatot, csempét, (a nagy lapok letétele feláras!)  világos falszínt, szanitereket, belső válaszfalajtókat.


Az ingatlanok konyhaszekrény, beépített szekrények nélkül kulcsrakészen kerülnek átadásra.


Kivitelezőnek több referencia munkája is van


A házak várható átadása a szerződéskötést követően 8 hónap. A házak falai, belsőválaszfalai (kivéve tetőtér) már állnak megtekintés, bejárás lehetséges. A burkolatok még választhatóak.


Energetikai besorolás: A+


 


Csok+, zöldhitel felvehető.


 


 

Térkép

Ingatlan adásvétel ügyvédi díja
583 335 Ft
a hirdetésben szereplő ár alapján
  • A vételár 0,45%-a
  • Szerződéscsomag teljeskörű képviselettel
  • Ingyenes tulajdoni lap ellenőrzés
  • Az ÁFA-t már tartalmazza
Érdekel az ajánlat →
A tájékoztatás nem teljes körű és nem minősül ajánlattételnek. Minimum díj: 150 000 Ft, maximum díj: 600 000 Ft. A díj kizárólag lakóingatlan adásvételére vonatkozik.

A hirdető elérhetősége

Beropex Consulting Ingatlaniroda

+36 70 331