Eladó Ház- házrész
Hirdetéskód: 9243760
Gyöngyös Kossuth Lajos utca 22 - OTP Ingatlanpont Iroda
Ez a hirdetés megfelelhet a FIX 3%-os programnak.
Tudj meg többet a részletekről itt.
96.00 m2
ALAPTERÜLET3
SZOBASZÁMnincs megadva
ÉPÍTÉSnincs megadva
FŰTÉS- CSOK igénybe vehető nem
- Tetőtér beépíthető nem
- Építés éve 2023
- Klíma nem
- Szigetelt nem
A+++
A++
A+
A
B
C
D
E
F
G
H
I
Az ingatlan leírása
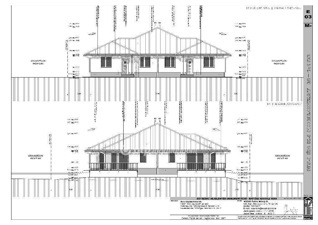
OSTOROSON A TÓPART LAKÓPARKBAN ÚJ ÉPÍTÉSÚ 2 LAKÁSOS TÁRSASHÁZBAN CSALÁDI IKERHÁZ JELLEGŰ LAKÁS ELADÓ!!!! EBBEN AZ ÉVBEN MÉG IGÉNYELHETŐ
CSOK, CSOK + ÁLLAMILAG KAMATTÁMOGATOTT KEDVEZMÉNYES HITEL ÉS ILLETÉKKEDVEZMÉNY!!!!!!
Eladásra kínálunk Ostoroson a TÓPART Lakóparkban új építésű családi ikerház jellegű két lakásos társasház lakását ! A lakás földszintes, Netto: 96,89 m2 alapterületű, hozzá tartozik egy 34 m2-es Terasz. A lakás helyiségei: nappali + étkező , konyha, 3 egész szoba, fürdőszoba, zuhanyzó wc, gardrob helyiség, előtér közlekedő, kamra.
A lakás építése a Wienerberger mesterház minőségi elemeiből készül. Így az elkészült lakás AA épületenergetika minősítésű lesz. A társasházhoz tartozó külön önálló udvarrész tereprendezéssel, térkő burkolattal kerül átadásra. A lakás magas minőségű Wienerberger építőelemekből készül. Tégla falazattal, hőszigetelés + nemesvakolattal, kerámia
tetőcseréppel, műanyag hőszigetelt külső nyílászárókkal, a belső nyílászárók borovitip fenyő beltéri ajtókkal. A lakás fűtése központi lapradiátoros melynek működésér SaunierDuval SemiatekCondens 24 kombikondenzációs gázkazán biztosítja. A fürdőszobai beépített szaniterek szintén magas minőségű Mofém elemekből állnak. Ha felkeltettem érdeklődését a Műszaki leírásról és a Wienerberger mesterház építőelemeiről részletes műszaki leírást és tájékoztatást adunk! A lakás várható átadása 2024. augusztus 31. ÚJ építésű Ingatlanvásárláshoz kapcsolódó CSOK, CSOK + HITEL, Illetékkedvezmény még az idén 2023-ban igénybe vehető! Ha felkeltettem érdeklődését kérem hívjon bizalommal!!!
CSOK, CSOK + ÁLLAMILAG KAMATTÁMOGATOTT KEDVEZMÉNYES HITEL ÉS ILLETÉKKEDVEZMÉNY!!!!!!
Eladásra kínálunk Ostoroson a TÓPART Lakóparkban új építésű családi ikerház jellegű két lakásos társasház lakását ! A lakás földszintes, Netto: 96,89 m2 alapterületű, hozzá tartozik egy 34 m2-es Terasz. A lakás helyiségei: nappali + étkező , konyha, 3 egész szoba, fürdőszoba, zuhanyzó wc, gardrob helyiség, előtér közlekedő, kamra.
A lakás építése a Wienerberger mesterház minőségi elemeiből készül. Így az elkészült lakás AA épületenergetika minősítésű lesz. A társasházhoz tartozó külön önálló udvarrész tereprendezéssel, térkő burkolattal kerül átadásra. A lakás magas minőségű Wienerberger építőelemekből készül. Tégla falazattal, hőszigetelés + nemesvakolattal, kerámia
tetőcseréppel, műanyag hőszigetelt külső nyílászárókkal, a belső nyílászárók borovitip fenyő beltéri ajtókkal. A lakás fűtése központi lapradiátoros melynek működésér SaunierDuval SemiatekCondens 24 kombikondenzációs gázkazán biztosítja. A fürdőszobai beépített szaniterek szintén magas minőségű Mofém elemekből állnak. Ha felkeltettem érdeklődését a Műszaki leírásról és a Wienerberger mesterház építőelemeiről részletes műszaki leírást és tájékoztatást adunk! A lakás várható átadása 2024. augusztus 31. ÚJ építésű Ingatlanvásárláshoz kapcsolódó CSOK, CSOK + HITEL, Illetékkedvezmény még az idén 2023-ban igénybe vehető! Ha felkeltettem érdeklődését kérem hívjon bizalommal!!!