Eladó Ház- házrész
Hirdetéskód: 9236342
Eger Kertész utca 25 - OTP Ingatlanpont Iroda
Ez a hirdetés megfelelhet a FIX 3%-os programnak.
Tudj meg többet a részletekről itt.
103.00 m2
ALAPTERÜLET3
SZOBASZÁMnincs megadva
ÉPÍTÉSnincs megadva
FŰTÉS- CSOK igénybe vehető nem
- Tetőtér beépíthető nem
- Építés éve 2025
- Klíma nem
- Szigetelt nem
A+++
A++
A+
A
B
C
D
E
F
G
H
I
Az ingatlan leírása
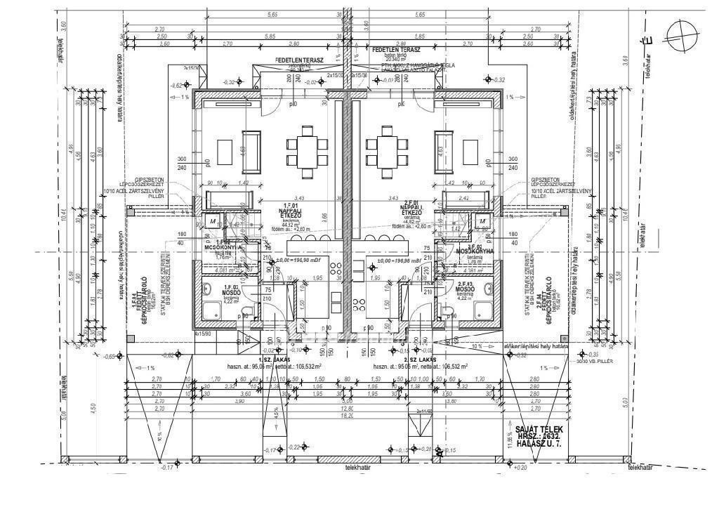
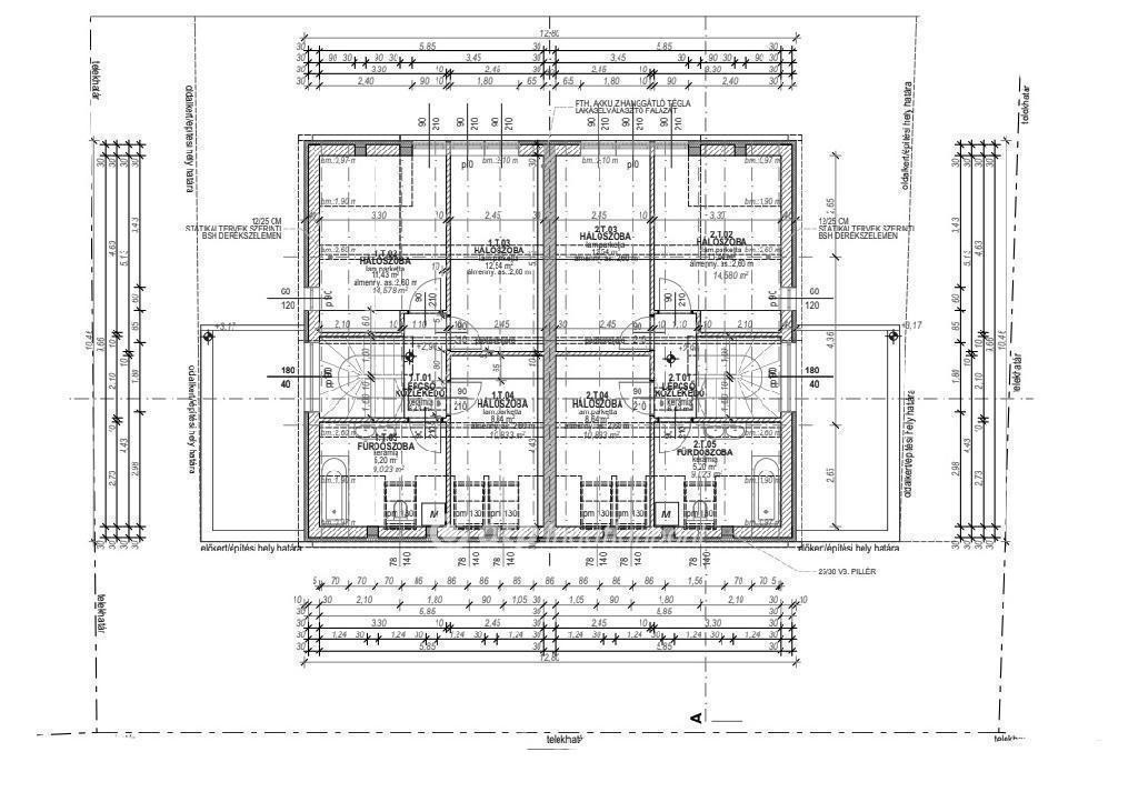
Heves vármegye, Ostoros lakóparkban eladó egy 103 m2-es, modern, újépítésű ikerház, 350 m2-es telken. A település csendes, rendezett részén található, kiváló választás családoknak vagy befektetésnek is. Az ingatlan praktikus elrendezésű, világos terekkel és korszerű műszaki megoldásokkal rendelkezik. Minőségi anyaghasználat, energiatakarékos megoldások és modern stílus jellemzi. Az ingatlan helyiségei: amerikai konyhás nappali, 3 szoba, 2 fürdőszoba, mosókonyha, 20 m2-es terasz, 16 m2-es kocsibeálló, 350 m2-es, saját használatú kert. Fűtés rendszer: gáz cirkó radiátoros fűtés, földszinten padlófűtéssel. Konyhabútor és konyhai gépek: bruttó 1,5 M Ft értékben a lakás ára tartalmazza.
Átadás: 2026 június.
További információért hívjon bizalommal, akár hétvégén is. Ügyfeleink számára igény esetén kedvező hitellehetőséget, megbízható ügyvédi közreműködést és irodai hátteret biztosítunk a szerződéskötéshez. Kérem, érdeklődéskor hivatkozzon az M319236 számra.
Átadás: 2026 június.
További információért hívjon bizalommal, akár hétvégén is. Ügyfeleink számára igény esetén kedvező hitellehetőséget, megbízható ügyvédi közreműködést és irodai hátteret biztosítunk a szerződéskötéshez. Kérem, érdeklődéskor hivatkozzon az M319236 számra.