Eladó Ház- házrész
Hirdetéskód: 9312457

OTP Ingatlanpont Csongrád

Felújításhoz személyi kölcsönt keres? Kalkuláljon itt! →
FIX 3% Program

Ez a hirdetés megfelelhet a FIX 3%-os programnak.
Tudj meg többet a részletekről itt.

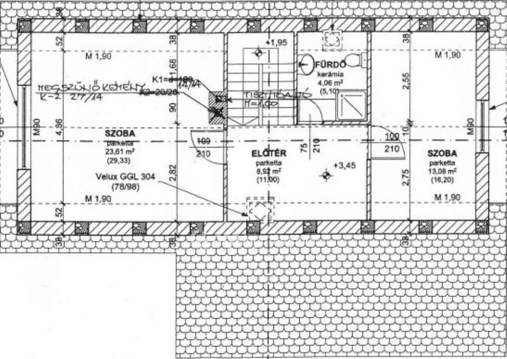
115.00 m2
ALAPTERÜLET
3
SZOBASZÁM
nincs megadva
ÉPÍTÉS
Házközponti
FŰTÉS
  • CSOK igénybe vehető nem
  • Tetőtér beépíthető nem
  • Építés éve 2010
  • Fűtés Házközponti
  • Klíma nem
  • Szigetelt nem
Energetikai besorolás: Nincs meghatározva
A+++
A++
A+
A
B
C
D
E
F
G
H
I

Az MBH Bank személyi kölcsön ajánlata

Fizetett hirdetés
1 millió Ft
6 évre
20 585 Ft/hó
THM: 14.5%
Részletek →
2 millió Ft
6 évre
41 169 Ft/hó
THM: 14.5%
Részletek →
3 millió Ft
6 évre
61 754 Ft/hó
THM: 14.5%
Részletek →

A tájékoztatás nem teljes körű és nem minősül ajánlattételnek.

Az ingatlan leírása

Csendre,nyugalomra vágyik??Mégis komfortosan töltené hétköznapjait??----Megtalálta!!!----- Békés megyében, Orosházán, Gyopáros-fürdőhöz közel, Rákóczitelepen, Fő út mellett családi ház eladó. Rákóczitelep központi belterület része, amely része Orosháza város területének, 5 percre a Gyopárosfürdő Gyógy-, Park- és Élményfürdőtől. Az ingatlan dupla, sarki telken helyezkedik el, mind a két telek beépíthető és külön-külön közművesített, és több irányból megközelíthető. A gáz csonk telken belül, de nem volt rá szükség az egyéb szolgáltatások kiépítése miatt. Az ipari áram, az ivóvíz,csatorna bekötve, valamint külön minősített fúrt kút,hidroforral is szolgáltatja a vizet, mely a több mint 30m3-es medence töltését is gazdaságosabbá teszi. Az ingatlan fűtése is fejlett megoldásokkal lett kialakítva, hőszivattyús rendszer, mely szintenkénti körökkel, padlófűtéssel kombinált, a kültéri, fedett medence vízfűtése is megoldott. A pincében még, ahol a gépészet kapott helyet, olajkazán is van a hálózatra kötve, de a nappaliban egy kandalló is be tudja fűteni a légteret. A melegvíz előállításában napkollektorok segítenek be, külön hőtárolós tartályokkal és boylerrel. A beépített tetőtér légtere, nem lett álmennyezettel csökkentve, stílusosan látható ,minőségi szarufák hálózzák a szoba légterét. Ha még sem elegendő a hűvös levegő, klímák segítik a lehűlést. A fából készült, hőszigetelt ablakokat elektromosan vezérelt, alumínium redőnyök védik, mely a napszakoknak megfelelően engedik be a napfényt. A családi ház 40cm-es hőszigetelt téglából épült, a kovácsoltvas kapubejáró mögött, könnyűszerkezetes, fából készült garázs található, műhellyel egyben. A kertet gondozott gyümölcsfák, sövények és egyéb kerti növények díszítik, melynek öntözése is kialakított. Az ingatlan a benne lévő összes berendezéssel, bútorokkal, a kert műveléséhez szükséges szerszámokkal,eszközökkel együtt eladó.
A ház kitűnően alkalmas önfenntartásra,gazdálkodásra is, elhelyezkedését tekintve, akár további beépítésre is.
Amennyiben az ingatlan felkeltette érdeklődését, kérem forduljon bizalommal hozzám! Az Ön igényeinek leginkább megfelelő finanszírozási megoldás megtalálásában magánszemélyként és vállalkozóként is - az OTP Pénzügyi Pont Zrt-n keresztül - díjmentesen, gyorsított ügyintézéssel, személyesen, igény esetén az ön otthonában és a banki nyitvatartáson túl is rendelkezésre állunk.

Térkép

Ingatlan adásvétel ügyvédi díja
359 550 Ft
a hirdetésben szereplő ár alapján
  • A vételár 0,45%-a
  • Szerződéscsomag teljeskörű képviselettel
  • Ingyenes tulajdoni lap ellenőrzés
  • Az ÁFA-t már tartalmazza
Érdekel az ajánlat →
A tájékoztatás nem teljes körű és nem minősül ajánlattételnek. Minimum díj: 150 000 Ft, maximum díj: 600 000 Ft. A díj kizárólag lakóingatlan adásvételére vonatkozik.

A hirdető elérhetősége

OTP Ingatlanpont Csongrád

Cseh-Szabó Szilvia
+36 30 202