Eladó Ház- házrész
Hirdetéskód: 9329104
OTP Ingatlanpont Csongrád
Felújításhoz személyi kölcsönt keres? Kalkuláljon itt! →
Ez a hirdetés megfelelhet a FIX 3%-os programnak.
Tudj meg többet a részletekről itt.
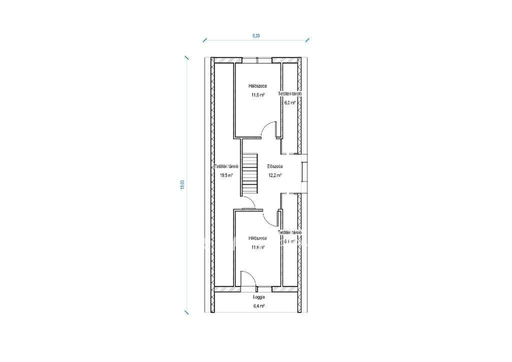
100.00 m2
ALAPTERÜLET4
SZOBASZÁMnincs megadva
ÉPÍTÉSHázközponti fűtés egyedi méréssel
FŰTÉS- CSOK igénybe vehető nem
- Tetőtér beépíthető nem
- Építés éve 1989
- Fűtés Házközponti fűtés egyedi méréssel
- Klíma nem
- Szigetelt nem
A+++
A++
A+
A
B
C
D
E
F
G
H
I
Az ingatlan leírása
Nyugalom, tér és lehetőség: otthon a Szőlőben!
Eladó egy kivételes adottságokkal rendelkező családi ház Orosháza Szőlő városrészében, ahol a csendes, zöld környezet és a város közelsége tökéletes egyensúlyban van. A 100 m2-es padlásteres családi ház 712 m2 teleken helyezkedik el. Két utcáról is megközelíthető. Extra 40 m2 melléképület + gazdasági épületek tartoznak még a házhoz. Ez az ingatlan nem csak otthon, hanem lehetőség is: ideális családoknak, kertészkedőknek, de akár vállalkozás vagy műhely kialakítására is. Miért különleges? Minden igényt kielégít, mert van benne: 4 tágas szoba, padlófűtés + gáz- és vegyes-tüzelésű kazán, hangulatos csempekályha, külön fürdő és WC, garázs, gazdálkodásra vagy műhelynek is alkalmas melléképületek művelhető kert. Csendes, családbarát környék. Iskola, óvoda, bolt, játszótér a közelben Főtér mindössze 2,5 km Az ingatlan folyamatosan karbantartott, ugyanakkor lehetőséget ad arra, hogy saját ízlésére formálja, ráadásul a jelenlegi támogatások is igénybe vehetők!
Az Otthon Start Hitelprogram keretében az OTP Bankcsoport teljes körű ügyintézéssel áll az eladók és a vevők rendelkezésére. A kínálatunkból választott ingatlan finanszírozásához kedvezményes hitelkonstrukciókat biztosítunk, valamint lehetőséget kínálunk az OTP Bank által közvetített Babaváró, CSOK PLUSZ, Falusi CSOK és egyéb kölcsönök ügyintézésére is. Igény esetén megbízható ügyvédi közreműködést biztosítunk az adásvételi szerződés megkötéséhez, és segítséget nyújtunk az adásvételhez kapcsolódó további ügyek intézésében. Irodáink Szentesen a Petőfi utca 12. szám alatt (a buszmegálló felől), valamint Orosházán, Tass utca 22. szám alatt várják a személyes érdeklődőket. Akár hétvégén is hívható vagyok, és amennyiben kényelmesebb, SMS-ben is elér, készséggel visszahívom.
Az energetikai tanúsítvány készítése folyamatban van, amint rendelkezésre áll, úgy azzal a hirdetés frissítésre kerül.
Eladó egy kivételes adottságokkal rendelkező családi ház Orosháza Szőlő városrészében, ahol a csendes, zöld környezet és a város közelsége tökéletes egyensúlyban van. A 100 m2-es padlásteres családi ház 712 m2 teleken helyezkedik el. Két utcáról is megközelíthető. Extra 40 m2 melléképület + gazdasági épületek tartoznak még a házhoz. Ez az ingatlan nem csak otthon, hanem lehetőség is: ideális családoknak, kertészkedőknek, de akár vállalkozás vagy műhely kialakítására is. Miért különleges? Minden igényt kielégít, mert van benne: 4 tágas szoba, padlófűtés + gáz- és vegyes-tüzelésű kazán, hangulatos csempekályha, külön fürdő és WC, garázs, gazdálkodásra vagy műhelynek is alkalmas melléképületek művelhető kert. Csendes, családbarát környék. Iskola, óvoda, bolt, játszótér a közelben Főtér mindössze 2,5 km Az ingatlan folyamatosan karbantartott, ugyanakkor lehetőséget ad arra, hogy saját ízlésére formálja, ráadásul a jelenlegi támogatások is igénybe vehetők!
Az Otthon Start Hitelprogram keretében az OTP Bankcsoport teljes körű ügyintézéssel áll az eladók és a vevők rendelkezésére. A kínálatunkból választott ingatlan finanszírozásához kedvezményes hitelkonstrukciókat biztosítunk, valamint lehetőséget kínálunk az OTP Bank által közvetített Babaváró, CSOK PLUSZ, Falusi CSOK és egyéb kölcsönök ügyintézésére is. Igény esetén megbízható ügyvédi közreműködést biztosítunk az adásvételi szerződés megkötéséhez, és segítséget nyújtunk az adásvételhez kapcsolódó további ügyek intézésében. Irodáink Szentesen a Petőfi utca 12. szám alatt (a buszmegálló felől), valamint Orosházán, Tass utca 22. szám alatt várják a személyes érdeklődőket. Akár hétvégén is hívható vagyok, és amennyiben kényelmesebb, SMS-ben is elér, készséggel visszahívom.
Az energetikai tanúsítvány készítése folyamatban van, amint rendelkezésre áll, úgy azzal a hirdetés frissítésre kerül.