Eladó Ház- házrész
Hirdetéskód: 9242696
H &K Ingatlaniroda
Ez a hirdetés megfelelhet a FIX 3%-os programnak.
Tudj meg többet a részletekről itt.
141.00 m2
ALAPTERÜLET5
SZOBASZÁMnincs megadva
ÉPÍTÉSnincs megadva
FŰTÉS- Építés éve 2026
A+++
A++
A+
A
B
C
D
E
F
G
H
I
Az ingatlan leírása
Garázsos, dupla-komfortos ikerház mindkét fele eladó Őrbottyánban!
A ház 1350 nm-es telekre, központ közeli, mégis csendes utcában épül, a lakások belső elrendezése megegyezik.
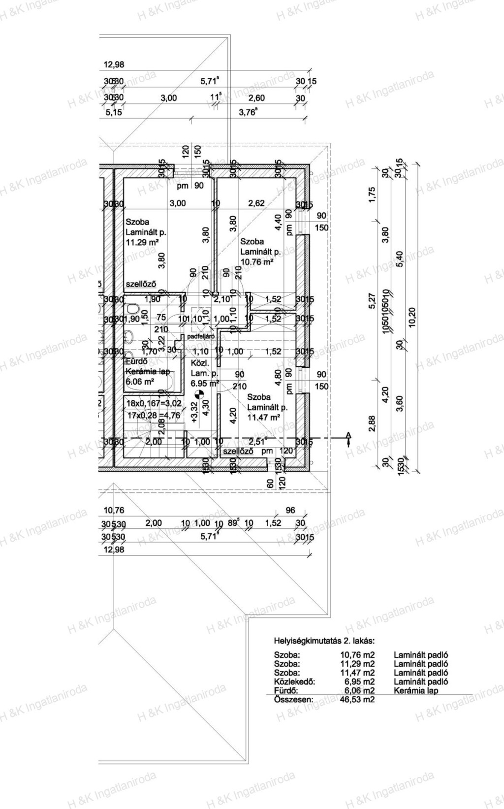
Amerikai konyhás nappali + 4 szobás elrendezésű, 113 nm hasznos lakóterületű (+ 18 nm garázs + 15 nm teraszok + kerti tároló), dupla-komfortos kb. 675 nm-es saját telekkel lakásonként.
A földszinten a nappali, konyha, étkező, szoba, lakáskapcsolatos garázs, kamra, háztartási helyiség, előszoba, zuhanyzó, kamra, külön WC kerül kialakításra.
Az emeleten 3 szoba, fürdőszoba, közlekedő kiépítése szerepel a terveken.
Portfóliónkban számos, különböző paraméterekkel rendelkező új építésű ingatlan megtalálható Őrbottyán területén és környékén, keressen bizalommal.
CÉGES ÉPÍTKEZÉS, a 2024-től aktuális állami támogatások valamint kedvezményes, kamattámogatott hitelek felvehetőek.
Az építő munkájára jellemző a megbízhatóság és igényesség, leinformálható, referencia házai megtekinthetők.
Rövid műszaki tartalom:
Az ikerházat a környéken több referenciával rendelkező kivitelező cég építi 30-as Porotherm téglából, külső homlokzati hőszigeteléssel.
A tetőre Bramac betoncserép fedés kerül.
Az ablakok fehér színű, műanyag szerkezetű, háromrétegű, hőszigetelő üvegezéssel ellátottak.
A ház fűtése modern hőszivattyús fűtés rendszerrel kerül kialakításra, a hő leadás padlófűtéssel történik.
A vételár részét képezik: riasztó és kamerarendszer előkészítés, klíma kiállás. térkövezett járda és gépkocsi beálló, hőszigetelt, elektromosan nyitható garázskapu
Burkolatok, szaniterek választhatók, a belső műszaki tartalomban feltüntetett összegig a vételár részét képezve.
Ára kulcsrakész állapotra vonatkozik konyhabútor nélkül.
Köszönjük, hogy megtisztel bizalmával, és irodánkat választja új otthona kiválasztására. Tapasztalt és felkészült kollégáink segítenek Önnek akár a hétvégén is.
Ha esetleg még nem sikerült eladni ingatlanát, kedvezményes feltételekkel vállaljuk annak értékesítését!
Ára: 98.000.000.- Ft
Azonosító: 4629
A ház 1350 nm-es telekre, központ közeli, mégis csendes utcában épül, a lakások belső elrendezése megegyezik.
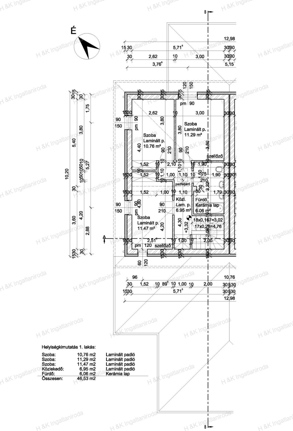
Amerikai konyhás nappali + 4 szobás elrendezésű, 113 nm hasznos lakóterületű (+ 18 nm garázs + 15 nm teraszok + kerti tároló), dupla-komfortos kb. 675 nm-es saját telekkel lakásonként.
A földszinten a nappali, konyha, étkező, szoba, lakáskapcsolatos garázs, kamra, háztartási helyiség, előszoba, zuhanyzó, kamra, külön WC kerül kialakításra.
Az emeleten 3 szoba, fürdőszoba, közlekedő kiépítése szerepel a terveken.
Portfóliónkban számos, különböző paraméterekkel rendelkező új építésű ingatlan megtalálható Őrbottyán területén és környékén, keressen bizalommal.
CÉGES ÉPÍTKEZÉS, a 2024-től aktuális állami támogatások valamint kedvezményes, kamattámogatott hitelek felvehetőek.
Az építő munkájára jellemző a megbízhatóság és igényesség, leinformálható, referencia házai megtekinthetők.
Rövid műszaki tartalom:
Az ikerházat a környéken több referenciával rendelkező kivitelező cég építi 30-as Porotherm téglából, külső homlokzati hőszigeteléssel.
A tetőre Bramac betoncserép fedés kerül.
Az ablakok fehér színű, műanyag szerkezetű, háromrétegű, hőszigetelő üvegezéssel ellátottak.
A ház fűtése modern hőszivattyús fűtés rendszerrel kerül kialakításra, a hő leadás padlófűtéssel történik.
A vételár részét képezik: riasztó és kamerarendszer előkészítés, klíma kiállás. térkövezett járda és gépkocsi beálló, hőszigetelt, elektromosan nyitható garázskapu
Burkolatok, szaniterek választhatók, a belső műszaki tartalomban feltüntetett összegig a vételár részét képezve.
Ára kulcsrakész állapotra vonatkozik konyhabútor nélkül.
Köszönjük, hogy megtisztel bizalmával, és irodánkat választja új otthona kiválasztására. Tapasztalt és felkészült kollégáink segítenek Önnek akár a hétvégén is.
Ha esetleg még nem sikerült eladni ingatlanát, kedvezményes feltételekkel vállaljuk annak értékesítését!
Ára: 98.000.000.- Ft
Azonosító: 4629