Eladó Ház- házrész
Hirdetéskód: 9312704

GDN Ingatlanhálózat - Best Sellers

Felújításhoz személyi kölcsönt keres? Kalkuláljon itt! →
FIX 3% Program

Ez a hirdetés megfelelhet a FIX 3%-os programnak.
Tudj meg többet a részletekről itt.

91.00 m2
ALAPTERÜLET
4
SZOBASZÁM
nincs megadva
ÉPÍTÉS
nincs megadva
FŰTÉS
  • CSOK igénybe vehető nem
  • Tetőtér beépíthető nem
  • Klíma nem
  • Szigetelt nem
Energetikai besorolás: Nincs meghatározva
A+++
A++
A+
A
B
C
D
E
F
G
H
I

Az MBH Bank személyi kölcsön ajánlata

Fizetett hirdetés
1 millió Ft
6 évre
20 585 Ft/hó
THM: 14.5%
Részletek →
2 millió Ft
6 évre
41 169 Ft/hó
THM: 14.5%
Részletek →
3 millió Ft
6 évre
61 754 Ft/hó
THM: 14.5%
Részletek →

A tájékoztatás nem teljes körű és nem minősül ajánlattételnek.

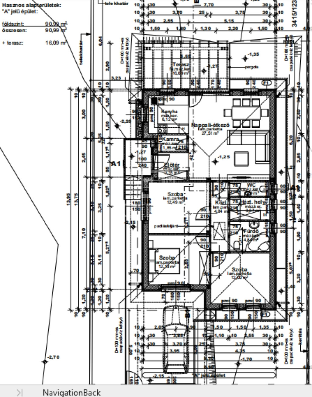
Az ingatlan leírása

Eladásra kínálunk egy új építésű családi házat Őrbottyánban, a Kálvária dombon.
A ház alapterülete 91 négyzetméter, melyhez egy 360 négyzetméteres kert is tartozik.
A házban összesen 4 szoba található, ideális választás lehet nagyobb családok számára is.
A fűtésről modern hőszivattyús rendszer gondoskodik, ami környezetbarát és gazdaságos megoldás.
A 16 négyzetméteres teraszról gyönyörű kilátás nyílik a kertre, ami kertvárosi hangulatot áraszt.
A környék csendes és nyugodt, tökéletes hely a mindennapi pihenéshez és kikapcsolódáshoz.

Tervezett átadás legkésőbb 2026. augusztus
Hitel, CSOK Plusz, OSP felvehető, állunk rendelkezésére.
ID:391574 ...TOVÁBBI, TÖBBEZRES INGATLAN KÍNÁLAT: - GDN azonosító: 394058

Térkép

Ingatlan adásvétel ügyvédi díja
474 750 Ft
a hirdetésben szereplő ár alapján
  • A vételár 0,45%-a
  • Szerződéscsomag teljeskörű képviselettel
  • Ingyenes tulajdoni lap ellenőrzés
  • Az ÁFA-t már tartalmazza
Érdekel az ajánlat →
A tájékoztatás nem teljes körű és nem minősül ajánlattételnek. Minimum díj: 150 000 Ft, maximum díj: 600 000 Ft. A díj kizárólag lakóingatlan adásvételére vonatkozik.

A hirdető elérhetősége

GDN Ingatlanhálózat - Best Sellers

Ludas Judit
+36 30 960