Eladó Ház- házrész
Hirdetéskód: 9248688
GDN Ingatlanhálózat - Örs Vezér tér
Ez a hirdetés megfelelhet a FIX 3%-os programnak.
Tudj meg többet a részletekről itt.
120.00 m2
ALAPTERÜLET6
SZOBASZÁMnincs megadva
ÉPÍTÉSElektromos
FŰTÉS- CSOK igénybe vehető nem
- Tetőtér beépíthető nem
- Fűtés Elektromos
- Klíma nem
- Szigetelt nem
A+++
A++
A+
A
B
C
D
E
F
G
H
I
Az ingatlan leírása
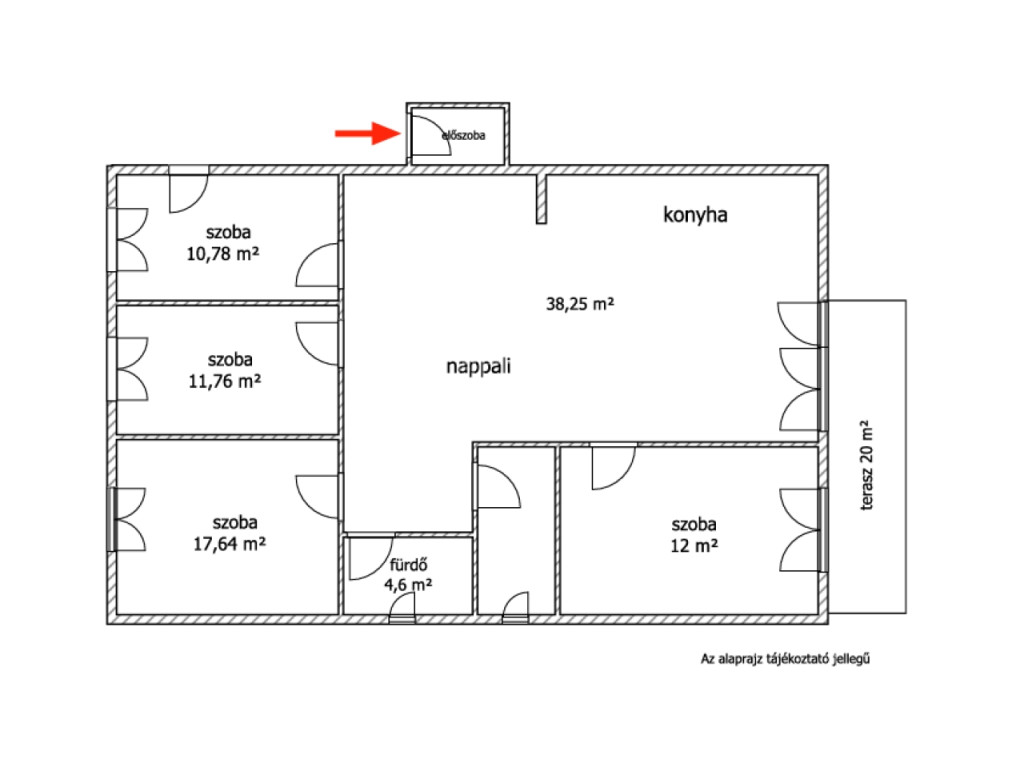
Eladásra kínálok Őrbottyán csendes, kertvárosias részén, egy felújított családi házat, amely mellett az udvarban egy különálló összkomfortos egy szobás ház is van.
Főház: 4 hálószoba, amerikai konyhás nappali, 2 fürőszoba, előtér, 20 nm fedett terasz.
Melléképület: hálószobaszoba, amerikai konyhás nappali, fürdőszoba, 10 nm terasz.
Telek méret: 1371 nm.
A kert rendezett, növényzettel beültetett.
Fűtés: hőszívattyús, H tarifa kiépítve, hűtő fűtő klímák felszerelve.
Napelem 8 kw, így alacsony rezsi biztosítva.
Műanyag 3 rétegű nyílászárók.
Manuális nagykapu.
A főházban az eredeti belmagasság 3 méter, amely álmennyezettel jelenleg 276 cm-re van lehozva.
A melléképületben a belmagasság 220 cm.
Főépületben száraz, tárolásra használt pince van, amely 30 nm alapterületű.
Hívjon bizalommal, tekintsük meg együtt! ...TOVÁBBI, TÖBBEZRES INGATLAN KÍNÁLAT: - GDN azonosító: 391606
Főház: 4 hálószoba, amerikai konyhás nappali, 2 fürőszoba, előtér, 20 nm fedett terasz.
Melléképület: hálószobaszoba, amerikai konyhás nappali, fürdőszoba, 10 nm terasz.
Telek méret: 1371 nm.
A kert rendezett, növényzettel beültetett.
Fűtés: hőszívattyús, H tarifa kiépítve, hűtő fűtő klímák felszerelve.
Napelem 8 kw, így alacsony rezsi biztosítva.
Műanyag 3 rétegű nyílászárók.
Manuális nagykapu.
A főházban az eredeti belmagasság 3 méter, amely álmennyezettel jelenleg 276 cm-re van lehozva.
A melléképületben a belmagasság 220 cm.
Főépületben száraz, tárolásra használt pince van, amely 30 nm alapterületű.
Hívjon bizalommal, tekintsük meg együtt! ...TOVÁBBI, TÖBBEZRES INGATLAN KÍNÁLAT: - GDN azonosító: 391606