Eladó Ház- házrész
Hirdetéskód: 9291934
Nyíregyháza Dózsa György út 32-34 - OTP Ingatlanpont Iroda
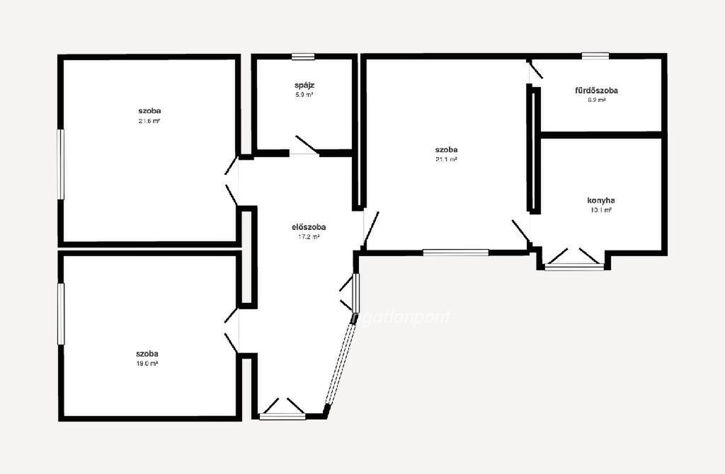
Felújításhoz személyi kölcsönt keres? Kalkuláljon itt! →101.00 m2
ALAPTERÜLET3
SZOBASZÁMnincs megadva
ÉPÍTÉSnincs megadva
FŰTÉS- CSOK igénybe vehető nem
- Tetőtér beépíthető nem
- Építés éve 1960
- Klíma nem
- Szigetelt nem
A+++
A++
A+
A
B
C
D
E
F
G
H
I
Az ingatlan leírása
Mátészalka közelében, Ópályi nyugodt, csendes környezetében várja új tulajdonosát ez a lehetőségekkel teli otthon.
ELADÁSRA KÍNÁLUNK EGY BŐ 100nm es CSALÁDI HÁZAT ÓPÁLYI CSENDES UTCÁJÁBAN
Ez a tágas, háromszobás családi ház nem csupán falak és helyiségek összessége ? hanem egy új kezdet ígérete. Vastag vályog falai biztonságot és természetes, kiegyensúlyozott klímát adnak. A konvektor és a kályha melege meghitt, otthonos hangulatot teremt, ahol a mindennapok lelassulnak, és valódi életté szelídülnek.
A belső terek tágasak és jól alakíthatók. Az új tulajdonos falbontással, helyiségek egybenyitásával vagy a terek nagyobbításával saját elképzelései szerint formálhatja az ingatlant. Itt nem egy kész koncepcióhoz kell alkalmazkodni ? itt Ön teremtheti meg azt az otthont, amely valóban Önre szabott.
A 7400 négyzetméteres telek igazi ritkaság. Ez már nem egyszerű udvar, hanem szabadság és lehetőség. Gazdálkodás, állattartás, kertészet, telephely kialakítása vagy vállalkozás indítása ? a tér adott, a jövő az Ön kezében van.
Ekkora terület már komoly lehetőségeket rejt magában, ahol a munka és az otthon harmonikusan megfér egymás mellett.
Az udvar rendezett, gondozott, ami azonnal érezhetővé teszi a törődést és a rendszeretetet
Az ingatlanhoz tartozik egy nagyon szép, jól kihasználható pince is, amely sokoldalúan hasznosítható. Kiváló lehet termények tárolására, gazdálkodáshoz kapcsolódó eszközök elhelyezésére, borospincének, raktárnak, vagy bármilyen egyéb tárolási célra. Egy olyan plusz érték, amely a mindennapokban és vállalkozás esetén is komoly előnyt jelent.
Mindez vidéki nyugalomban, mégis Mátészalka gyors elérhetőségével.
Kinek ajánljuk?
? Családoknak, akik tágas életteret és nagy udvart keresnek.
? Gazdálkodóknak, akik saját földön szeretnének dolgozni.
? Vállalkozóknak, akik a hatalmas telekben és a pince adta lehetőségekben üzleti potenciált látnak.
? Mindazoknak, akik nem csupán házat, hanem lehetőséget és jövőt keresnek.
Ez az ingatlan nem csak egy cím a térképen.
Ez tér az álmaihoz, alap a terveihez, és lehetőség arra, hogy valami igazán sajátot hozzon létre.
A gyönyörűen gondozott udvar és kert zöld ölelésében minden nap egy kicsit lassabban telik.itt van idő megállni, fellélegezni, együtt lenni.
A melléképületben kialakított helyiségekben lehet tárolni akár a kertészkedéshez szükséges eszközöket , akár a hobbihoz valókat.itt minden értéknek megvan a maga helye.
Amikor az utcáról belépünk, az első pillanatban érezzük: megérkeztünk.
Ez a ház több mint egy ingatlan egy hely, ahol a család minden tagja megtalálja a saját terét, ahol a mindennapok nyugalomban telnek, és ahol igazán jó hazatérni.
Ha olyan otthont keres, amely egyszerre kínál kényelmet, biztonságot és élményeket, akkor itt megtalálta. Várom megtisztelő megkeresését.
Ha egy tágas, jól elrendezett, családi házat keres amelyet saját izlésének megfelelően alakíthat Ópályi csendes, de mégis központi részén, akkor ezt az ingatlant érdemes személyesen is megtekinteni!
Ne maradjon le róla hívjon bizalommal!
Amennyiben hitelre van szüksége, ingyenes előbírálatot készítek, soron kívül, rugalmas időbeosztással, az Ön időbeosztásához igazodva!
Ne hagyja ki ezt a remek lehetőséget keressen bizalommal további információért vagy időpont egyeztetésért!
OTP Banki hátterünknek köszönhetően finanszírozási igényekben (pl. Otthon Start Hitelprogram, Babaváró, Lakáshitel, Személyi kölcsön stb.), díjmentesen, soron kívüli ügyintézéssel segítem ügyfeleim!
Referenciaszám: M322328
ELADÁSRA KÍNÁLUNK EGY BŐ 100nm es CSALÁDI HÁZAT ÓPÁLYI CSENDES UTCÁJÁBAN
Ez a tágas, háromszobás családi ház nem csupán falak és helyiségek összessége ? hanem egy új kezdet ígérete. Vastag vályog falai biztonságot és természetes, kiegyensúlyozott klímát adnak. A konvektor és a kályha melege meghitt, otthonos hangulatot teremt, ahol a mindennapok lelassulnak, és valódi életté szelídülnek.
A belső terek tágasak és jól alakíthatók. Az új tulajdonos falbontással, helyiségek egybenyitásával vagy a terek nagyobbításával saját elképzelései szerint formálhatja az ingatlant. Itt nem egy kész koncepcióhoz kell alkalmazkodni ? itt Ön teremtheti meg azt az otthont, amely valóban Önre szabott.
A 7400 négyzetméteres telek igazi ritkaság. Ez már nem egyszerű udvar, hanem szabadság és lehetőség. Gazdálkodás, állattartás, kertészet, telephely kialakítása vagy vállalkozás indítása ? a tér adott, a jövő az Ön kezében van.
Ekkora terület már komoly lehetőségeket rejt magában, ahol a munka és az otthon harmonikusan megfér egymás mellett.
Az udvar rendezett, gondozott, ami azonnal érezhetővé teszi a törődést és a rendszeretetet
Az ingatlanhoz tartozik egy nagyon szép, jól kihasználható pince is, amely sokoldalúan hasznosítható. Kiváló lehet termények tárolására, gazdálkodáshoz kapcsolódó eszközök elhelyezésére, borospincének, raktárnak, vagy bármilyen egyéb tárolási célra. Egy olyan plusz érték, amely a mindennapokban és vállalkozás esetén is komoly előnyt jelent.
Mindez vidéki nyugalomban, mégis Mátészalka gyors elérhetőségével.
Kinek ajánljuk?
? Családoknak, akik tágas életteret és nagy udvart keresnek.
? Gazdálkodóknak, akik saját földön szeretnének dolgozni.
? Vállalkozóknak, akik a hatalmas telekben és a pince adta lehetőségekben üzleti potenciált látnak.
? Mindazoknak, akik nem csupán házat, hanem lehetőséget és jövőt keresnek.
Ez az ingatlan nem csak egy cím a térképen.
Ez tér az álmaihoz, alap a terveihez, és lehetőség arra, hogy valami igazán sajátot hozzon létre.
A gyönyörűen gondozott udvar és kert zöld ölelésében minden nap egy kicsit lassabban telik.itt van idő megállni, fellélegezni, együtt lenni.
A melléképületben kialakított helyiségekben lehet tárolni akár a kertészkedéshez szükséges eszközöket , akár a hobbihoz valókat.itt minden értéknek megvan a maga helye.
Amikor az utcáról belépünk, az első pillanatban érezzük: megérkeztünk.
Ez a ház több mint egy ingatlan egy hely, ahol a család minden tagja megtalálja a saját terét, ahol a mindennapok nyugalomban telnek, és ahol igazán jó hazatérni.
Ha olyan otthont keres, amely egyszerre kínál kényelmet, biztonságot és élményeket, akkor itt megtalálta. Várom megtisztelő megkeresését.
Ha egy tágas, jól elrendezett, családi házat keres amelyet saját izlésének megfelelően alakíthat Ópályi csendes, de mégis központi részén, akkor ezt az ingatlant érdemes személyesen is megtekinteni!
Ne maradjon le róla hívjon bizalommal!
Amennyiben hitelre van szüksége, ingyenes előbírálatot készítek, soron kívül, rugalmas időbeosztással, az Ön időbeosztásához igazodva!
Ne hagyja ki ezt a remek lehetőséget keressen bizalommal további információért vagy időpont egyeztetésért!
OTP Banki hátterünknek köszönhetően finanszírozási igényekben (pl. Otthon Start Hitelprogram, Babaváró, Lakáshitel, Személyi kölcsön stb.), díjmentesen, soron kívüli ügyintézéssel segítem ügyfeleim!
Referenciaszám: M322328