Eladó Ház- házrész
Hirdetéskód: 9279149
Express ingatlan Kerek Edina Mária irodája
Felújításhoz személyi kölcsönt keres? Kalkuláljon itt! →
Ez a hirdetés megfelelhet a FIX 3%-os programnak.
Tudj meg többet a részletekről itt.
120.00 m2
ALAPTERÜLET4
SZOBASZÁMnincs megadva
ÉPÍTÉSnincs megadva
FŰTÉS- CSOK igénybe vehető nem
- Tetőtér beépíthető nem
- Építés éve 1989
- Klíma nem
- Szigetelt nem
A+++
A++
A+
A
B
C
D
E
F
G
H
I
Az ingatlan leírása
Miskolc közelében Ongán, a Dózsa György utcában, újszerű tetőtér beépítéses családi ház eladó.
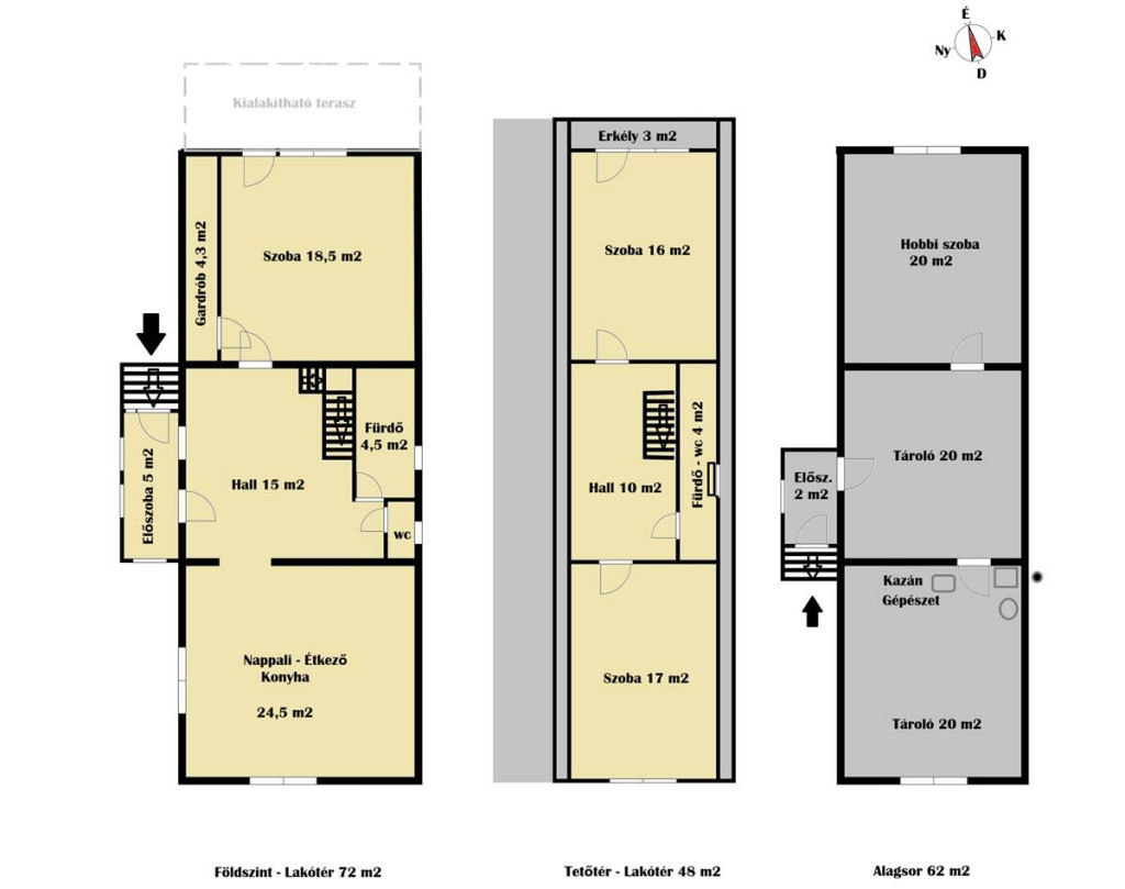
Az ingatlan amerikai konyhás nappalival, 3 szobával, 2 fürdőszobával,120 m2-es fűtött lakótérrel rendelkezik. Az alagsorban 62 m2-es, 3 helyiségből álló tárolóval, gépészettel, és hobbiszobával, és az udvaron garázzsal várja új tulajdonosát.
A stabil tégla falazatú ház, cserép fedéssel. 1989-ban készült, és az elmúlt években teljes felújítást követően nyerte el mai modern formáját.
Nagyméretű,857 m2-es saroktelken kialakított pihenőkerttel, játszótérrel.
Említést érdemlő extrák:
-Az ingatlan ára igény szerint tartalmazza a teljes berendezést.
-Felújított, hangulatos modern épület.
-Hőszigetelt 3 rétegű műanyag nyílászárók.
-Alu távirányítású redőnyök, üvegszálas szúnyoghálók minden ablakon.
-Beépített, gépesített egyedi konyhabútor, étkezővel.
-Vegyes tüzelésű TJK gyártmányú 30 Kw-os kazán. (Pár éves készülék).
-Modern gáz központi fűtés 150l hőtárolóval. (24 Kw-os Vaillant kombi kondenzációs kazán).
-Amerikai konyhás nappali, étkezővel. 3 db tágas szobával, gardróbbal, erkéllyel.
-A tetőtéri fürdőszoba befejezésével 2 db fürdő, és wc.
-Hőszigetelt Porotherm 30 cm-es falazat, és alagsor (Lakótér 15 cm- Alagsor 12cm XPS szigetelés).
-Pár éve komplett cserélt tető. Cserép, esőcsatornák, és tetőtéri ablak is cserélve.
-Hőszigetelt tető. (25 cm kőzetgyapot szigetelés).
-Természetesen vasbeton födém, Tégla tetőtéri falazat, Szigetelt padlás,
-Hangulatos saroktelek, remek parkolási lehetőségekkel.
-Garázs, játszótér, szalonnasütő. Már elkezdett parkosítással.
-3 db MIDEA Hűtő-fűtő klímaberendezés.
-Villamos hálózat teljesen cserélve, modernizálva. Érintésvédelmi relével.
-Kamerarendszer.
- Víz, és szennyvíz vezetékek teljes mértékben cserélve.
- Hideg és meleg burkolatok, csempék minden helyiségben cserélve.
-Statikailag, és szerkezetileg kifogástalan állapot. (Kőműves volt a tulaj).
-Minimális rezsivel fenntartható épület.
- Fúrt kút. (Medencéhez, autómosáshoz, és a kert locsolására).
-Utcafronti terasz kialakítására van lehetőség.
-Remek tájolás, egyedi hangulatú, világos, tágas lakótér.
Remek környék, Jó tömegközlekedés, szimpatikus szomszédok. A település központja, iskola, óvoda, orvosi rendelő, élelmiszerbolt pár perc alatt elérhető.
Nagyon kedvelt környék a kedvező ingatlan árak miatt fiatalok körében. Valamint Miskolc közelsége, és a dinamikusan fejlődő település magával ragadó hangulata miatt.
Így várhatóan, rövid ideig lesz elérhető a ház, az ingatlanpiacon.
Kizárólag a mi kínálatunkban szerepel!
Rugalmas megtekintés!
Az ingatlan per, és tehermentes, szinte azonnal birtokba vehető.
További információért keressen bizalommal!
Irodánkban bank független hitellehetőségekkel, ingyenes Csok, Csok +, Otthon start (Fix 3%-os) hitel, és Babaváró ügyintézéssel várjuk. Teljes körű ügyintézés!
Az ingatlan amerikai konyhás nappalival, 3 szobával, 2 fürdőszobával,120 m2-es fűtött lakótérrel rendelkezik. Az alagsorban 62 m2-es, 3 helyiségből álló tárolóval, gépészettel, és hobbiszobával, és az udvaron garázzsal várja új tulajdonosát.
A stabil tégla falazatú ház, cserép fedéssel. 1989-ban készült, és az elmúlt években teljes felújítást követően nyerte el mai modern formáját.
Nagyméretű,857 m2-es saroktelken kialakított pihenőkerttel, játszótérrel.
Említést érdemlő extrák:
-Az ingatlan ára igény szerint tartalmazza a teljes berendezést.
-Felújított, hangulatos modern épület.
-Hőszigetelt 3 rétegű műanyag nyílászárók.
-Alu távirányítású redőnyök, üvegszálas szúnyoghálók minden ablakon.
-Beépített, gépesített egyedi konyhabútor, étkezővel.
-Vegyes tüzelésű TJK gyártmányú 30 Kw-os kazán. (Pár éves készülék).
-Modern gáz központi fűtés 150l hőtárolóval. (24 Kw-os Vaillant kombi kondenzációs kazán).
-Amerikai konyhás nappali, étkezővel. 3 db tágas szobával, gardróbbal, erkéllyel.
-A tetőtéri fürdőszoba befejezésével 2 db fürdő, és wc.
-Hőszigetelt Porotherm 30 cm-es falazat, és alagsor (Lakótér 15 cm- Alagsor 12cm XPS szigetelés).
-Pár éve komplett cserélt tető. Cserép, esőcsatornák, és tetőtéri ablak is cserélve.
-Hőszigetelt tető. (25 cm kőzetgyapot szigetelés).
-Természetesen vasbeton födém, Tégla tetőtéri falazat, Szigetelt padlás,
-Hangulatos saroktelek, remek parkolási lehetőségekkel.
-Garázs, játszótér, szalonnasütő. Már elkezdett parkosítással.
-3 db MIDEA Hűtő-fűtő klímaberendezés.
-Villamos hálózat teljesen cserélve, modernizálva. Érintésvédelmi relével.
-Kamerarendszer.
- Víz, és szennyvíz vezetékek teljes mértékben cserélve.
- Hideg és meleg burkolatok, csempék minden helyiségben cserélve.
-Statikailag, és szerkezetileg kifogástalan állapot. (Kőműves volt a tulaj).
-Minimális rezsivel fenntartható épület.
- Fúrt kút. (Medencéhez, autómosáshoz, és a kert locsolására).
-Utcafronti terasz kialakítására van lehetőség.
-Remek tájolás, egyedi hangulatú, világos, tágas lakótér.
Remek környék, Jó tömegközlekedés, szimpatikus szomszédok. A település központja, iskola, óvoda, orvosi rendelő, élelmiszerbolt pár perc alatt elérhető.
Nagyon kedvelt környék a kedvező ingatlan árak miatt fiatalok körében. Valamint Miskolc közelsége, és a dinamikusan fejlődő település magával ragadó hangulata miatt.
Így várhatóan, rövid ideig lesz elérhető a ház, az ingatlanpiacon.
Kizárólag a mi kínálatunkban szerepel!
Rugalmas megtekintés!
Az ingatlan per, és tehermentes, szinte azonnal birtokba vehető.
További információért keressen bizalommal!
Irodánkban bank független hitellehetőségekkel, ingyenes Csok, Csok +, Otthon start (Fix 3%-os) hitel, és Babaváró ügyintézéssel várjuk. Teljes körű ügyintézés!