Eladó Ház- házrész
Hirdetéskód: 9223635
Győr Bajcsy-Zsilinszky út 27 - OTP Ingatlanpont Iroda
143 m2
ALAPTERÜLET4
SZOBASZÁMnincs megadva
ÉPÍTÉSnincs megadva
FŰTÉS- CSOK igénybe vehető nem
- Tetőtér beépíthető nem
- Építés éve 2005
- Klíma nem
- Szigetelt nem
A+++
A++
A+
A
B
C
D
E
F
G
H
I
Az ingatlan leírása
Igazi minőség és nyugalom Nyúl központjában. Eladó egy csendes kis zsákutca utolsó háza. Óvoda és az iskola a közelben.
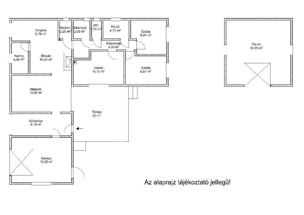
A ház 2005-ben épült, jól átgondolt egyedi igények alapján, kiváló minőségű anyagokból. A tulajdonosok nagy figyelmet fordítottak az energiatakarékosságra így napelem rendszert építettek ki. Bár a házat 44-es porotherm téglából építették, kapott még 5 cm szigetelést, a tökéletes hőmegtartás érdekében. Van fúrt kút, szivattyúval. A házban 3 hálószoba, nappali, két fürdőszoba és konditerem szolgálja a benne lakók kényelmét. A konyhában gondosan megtervezett helytakarékos, igényes egyedi konyhabútor, minden extrával ellátva. A nappaliban és a szobákban egyedi méretre készült bútorok vannak, rengeteg tárolási lehetőséggel. A fűtést gázkazán biztosítja, illetve egy szép cserépkályha, ami igazán hangulatossá teszi a hideg téli estéket és önállóan is befűti az egész házat. Az emeleti tetőtér jelenleg részlegesen van beépítve, előtér és konditerem van fent. A tetőtér többi része, kb. 70 m2-es terület még igény szerint kialakítható. A házban van garázs, amiből rögtön az előszobába vezető ajtón tudunk a hideg és az eső elől elzártan, kényelmesen kipakolni az autóból. A nagy 35 m2-es hangulatos pergolás terasz biztosítja, hogy egy hosszú nap után megpihenhessünk és gyönyörködhessünk az udvarban virágzó bokrok, gyümölcsfák között, vagy ha kedvünk van kicsit kertészkedhetünk is a konyhakertben. Az udvaron továbbá van még egy kedves kis 30 m2-es melléképület, ami kis átalakítás után akár vendégházként is funkcionálhat.
Amennyiben az ingatlan felkeltette az érdeklődését, kérem keressen bizalommal.
Referencia szám: M316857
A ház 2005-ben épült, jól átgondolt egyedi igények alapján, kiváló minőségű anyagokból. A tulajdonosok nagy figyelmet fordítottak az energiatakarékosságra így napelem rendszert építettek ki. Bár a házat 44-es porotherm téglából építették, kapott még 5 cm szigetelést, a tökéletes hőmegtartás érdekében. Van fúrt kút, szivattyúval. A házban 3 hálószoba, nappali, két fürdőszoba és konditerem szolgálja a benne lakók kényelmét. A konyhában gondosan megtervezett helytakarékos, igényes egyedi konyhabútor, minden extrával ellátva. A nappaliban és a szobákban egyedi méretre készült bútorok vannak, rengeteg tárolási lehetőséggel. A fűtést gázkazán biztosítja, illetve egy szép cserépkályha, ami igazán hangulatossá teszi a hideg téli estéket és önállóan is befűti az egész házat. Az emeleti tetőtér jelenleg részlegesen van beépítve, előtér és konditerem van fent. A tetőtér többi része, kb. 70 m2-es terület még igény szerint kialakítható. A házban van garázs, amiből rögtön az előszobába vezető ajtón tudunk a hideg és az eső elől elzártan, kényelmesen kipakolni az autóból. A nagy 35 m2-es hangulatos pergolás terasz biztosítja, hogy egy hosszú nap után megpihenhessünk és gyönyörködhessünk az udvarban virágzó bokrok, gyümölcsfák között, vagy ha kedvünk van kicsit kertészkedhetünk is a konyhakertben. Az udvaron továbbá van még egy kedves kis 30 m2-es melléképület, ami kis átalakítás után akár vendégházként is funkcionálhat.
Amennyiben az ingatlan felkeltette az érdeklődését, kérem keressen bizalommal.
Referencia szám: M316857