Eladó Ház- házrész
Hirdetéskód: 9302284
Győr Bajcsy-Zsilinszky út 27 - OTP Ingatlanpont Iroda
Felújításhoz személyi kölcsönt keres? Kalkuláljon itt! →
Ez a hirdetés megfelelhet a FIX 3%-os programnak.
Tudj meg többet a részletekről itt.
96.00 m2
ALAPTERÜLET5
SZOBASZÁMnincs megadva
ÉPÍTÉSnincs megadva
FŰTÉS- CSOK igénybe vehető nem
- Tetőtér beépíthető nem
- Építés éve 2026
- Klíma nem
- Szigetelt nem
A+++
A++
A+
A
B
C
D
E
F
G
H
I
Az ingatlan leírása
Eladó ÚJ építésű családi ház NYÚL zöldövezeti részén !
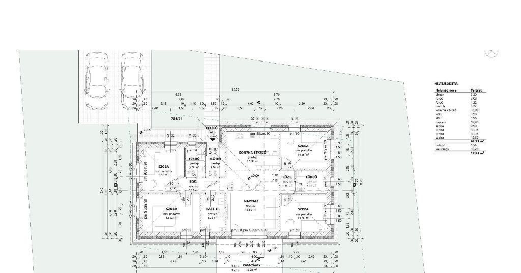
Eladó Nyúl új kialakítású utcájában egy 602 m2-s telken, 96 m2-s tégla ház 20 m2 -s fedett terasszal.
Helyiségek: amerikai konyhás nappali + 4 szoba, 2 fürdő helyiség és közlekedő. Átadás: 2026 december 31.
Az ár emelt színtű fűtés kész állapotra vonatkozik, telekkel együtt. Igény esetén kulcsrakész befejezésre is van lehetőség.
Szívesen segítek azonnali hitelügyintézésben, banki nyitva tartási időn túl is! Otthon start, Csok, jelzálog hitelek, babaváró szabad felhasználású hitelek. OTP Pénzügy Pont segít a legkedvezőbb pénzügyi megoldásokat is megkeresni, hogy megtalálja álmai otthonát! Kérésével forduljon hozzám bizalommal!
Eladó Nyúl új kialakítású utcájában egy 602 m2-s telken, 96 m2-s tégla ház 20 m2 -s fedett terasszal.
Helyiségek: amerikai konyhás nappali + 4 szoba, 2 fürdő helyiség és közlekedő. Átadás: 2026 december 31.
Az ár emelt színtű fűtés kész állapotra vonatkozik, telekkel együtt. Igény esetén kulcsrakész befejezésre is van lehetőség.
Szívesen segítek azonnali hitelügyintézésben, banki nyitva tartási időn túl is! Otthon start, Csok, jelzálog hitelek, babaváró szabad felhasználású hitelek. OTP Pénzügy Pont segít a legkedvezőbb pénzügyi megoldásokat is megkeresni, hogy megtalálja álmai otthonát! Kérésével forduljon hozzám bizalommal!